楼盘详情:武汉【武汉山海观】售楼处电话→首页热搜【武汉山海观】24小时电话→最新房价→楼盘百科详情→营销中心最新发布@售楼处中心
扫描到手机,新闻随时看
扫一扫,用手机看文章
更加方便分享给朋友
武汉山海观
☎☎售楼处电话:400-8787-098转接5999【售楼中心】
★彡提-前-来-电-预-约-登-记—售楼处1v1销售专业讲解〢一对一热情服务〢
★彡温馨提示:网上售楼中心〢预约可享内部优惠〢匠心钜制恭迎品鉴〢
【项目简介】
总建筑面积:约4万㎡
物业类别:联排别墅
容积率:0.55
在售面积:约270㎡
层高:地上1F-3F,3.6m、3.3m、3m;地下,总高5.4m
产权性质:70年
交付标准:毛坯
交房时间:2021年12月
物业公司:绿城物业
物业费:4元/㎡/月
总户数:195
停车位:每户赠送地下双车位
【核心价值点】
1.地段:盘龙城别墅聚集区核心位置,享双地铁及机场高速立体交通出行便利。
2.资源:背靠约150亩露甲山、面朝约2000亩汤仁海湖,藏风纳气,享三公园环绕。
3.文化:紧邻盘龙城遗址公园,厚载盘龙城3500年人文底蕴。
4.景观:欧式风情园林,国际知名景观设计公司贝尔高林倾心打造。
5.建筑:大师手笔,全干挂石材外墙、天幕庭院、270度全景露台,集萃法式设计精华。
6.产品:70年产权,最高200%赠送率,创新双首层,稀缺城墅作品。
7.物业:豪宅管家绿城物业,2020 年中国物业服务百强企业第二名,连续 12 年全国物业满意度第一名。
【区位】
占据副城中心,坐享双城红利
未来三环北扩,澜山墅占据重要副城中心,坐享武汉空港国际商务新城及汉口北国家级商贸中心双城发展红利。居澜山墅,享30分钟城心繁华生活圈。

文脉之根,贵脉重地
项目东面紧邻盘龙城遗址公园,这里曾以此为中心,代表着古代城市文明的制高点,现在也被称之为武汉城市之根,3500年的历史传承,赋予整个板块深厚的历史沉淀及价值。
城市绿心,三公园环伺
项目位于城市绿心,三公园环伺。除盘龙城遗址公园外,西侧3公里内还配套有754公顷府河湿地公园及143公顷新漖湖党建主题湿地公园。

背山面水,城市稀缺,极致占有
项目背靠约150亩露甲山,南面约2000亩汤仁海湖 ,半岛之上,观270 °山海全景 。
【项目配套】
「外部配套」
交通:地铁2号线盘龙城站、7号线汤云海站,另外规划有地铁13号线、17号线、18号线及高铁天河北站。
教育:盘龙城第二幼儿园、美凯思美式幼儿园、盘龙一小、盘龙三小、华师附小、盘龙外国语小学、黄陂一中分校、盘龙一中、临空港第一学校、武汉盘龙城实验学校、七一育才学校会展城分校
医院:黄陂人民医院盘龙城院区、武汉市第一医院盘龙城分院
商业:5分钟生活圈,巢立方24500㎡ 特色风情商业街、云海城5000㎡ 地下超市;15分钟生活圈,奥特莱斯、万达广场、金银潭永旺;30分钟生活圈,享汉口武广等城心商圈繁华。
「内部配套」
自建18班双语国际幼儿园,及7300㎡风情商业街,规划打造起云台山体花园、法式草坪广场及滨湖运动天地三大园林体系 ,沿湖有1.7KM滨湖绿道。
【产品】
1.欧式风情园林:全球知名景观设计公司贝尔高林打造。
2.全干挂石材外墙:美学建筑立面,极具现代感,日久弥新。
3.前庭后院:前有入户花园,后有下沉式庭院,私享高纯自然空间。

4.创新双首层:下沉式庭院,引入阳光清风,极大改善地下空间舒适度。
5.地下双车位:赠送双车位,尊崇回家礼遇。
6.豪华双套房:二楼阔绰套房,三楼全景套房,极致奢豪。
7.超高赠送率:地下室、花园、露台、天井、阳台等多重空间赠送,赠送率最高达200%。
8.全景星空露台:270度广角露台,日月星辰尽收眼底。
9.情境天井:将生活场景演绎到极致,一楼餐厅、二楼挑空、三楼阳光房,更多功能,自由想象。
10.豪宅物业:别墅区单独组团,按豪宅物业服务标准单独管理。
【服务】
绿城物业
2020年物业服务企业综合实力500强排名第2名,中国高端物业服务十强企业。

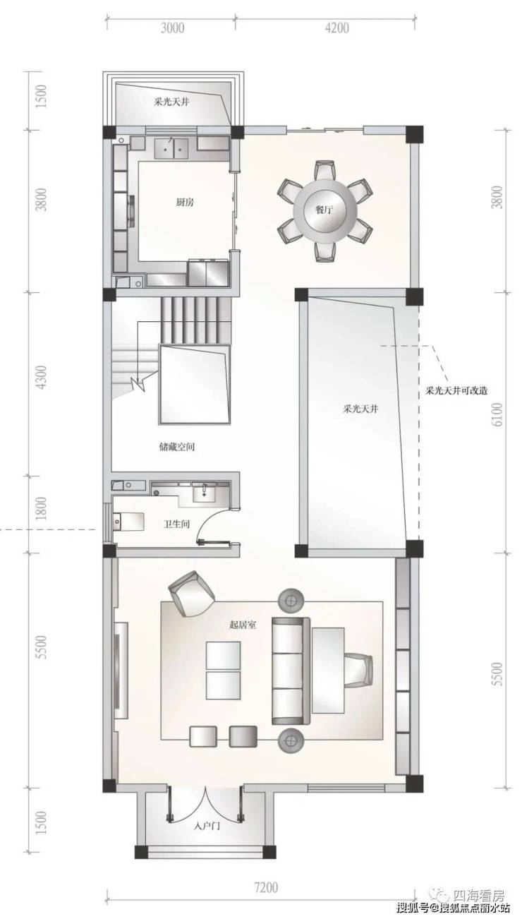
【户型】
建筑面积约270㎡
双餐厅、双套房奢豪设计、赠送总高5.4m地下层
「一层平面及样板装修实景」
「二层平面及样板装修实景」
「三层平面及样板装修实景」
武汉山海观
☎☎售楼处电话:400-8787-098转接5999【售楼中心】
★彡提-前-来-电-预-约-登-记—售楼处1v1销售专业讲解〢一对一热情服务〢
★彡温馨提示:网上售楼中心〢预约可享内部优惠〢匠心钜制恭迎品鉴〢
声明:本文由入驻焦点开放平台的作者撰写,除焦点官方账号外,观点仅代表作者本人,不代表焦点立场。
