"未来云著"售楼处-2025年太原【金地·未来云著】在售房源-电话/房价/户型
扫描到手机,新闻随时看
扫一扫,用手机看文章
更加方便分享给朋友

西中环,八千多,准现房,有配套,刚改首选,太原金地未来云著
金地未来云著小区,位于太原西中环和兴华街交汇处,目前实景准现房状态,最近将陆续交房,户型从88平到140平,八千多一平,户型设计还不错。实景园林已经开放,小区绿化环境设计很好,地理位置优越,交通出行便捷。
金地未来云著,小区一共八栋高层住宅楼,开发商实力挺强,施工基本全部完成了,已达到交付标准了。小区周边交通,生活配套齐全,有对口的小学和中学。而且门槛比较低,性价比很高。
金地未来云著项目定位刚需和刚改家庭,考虑西中环沿线,有小学中学对口。离漪汾街的吾悦广场,开车十分钟内。离和平北路的奥特莱斯,开车也是十分钟内。

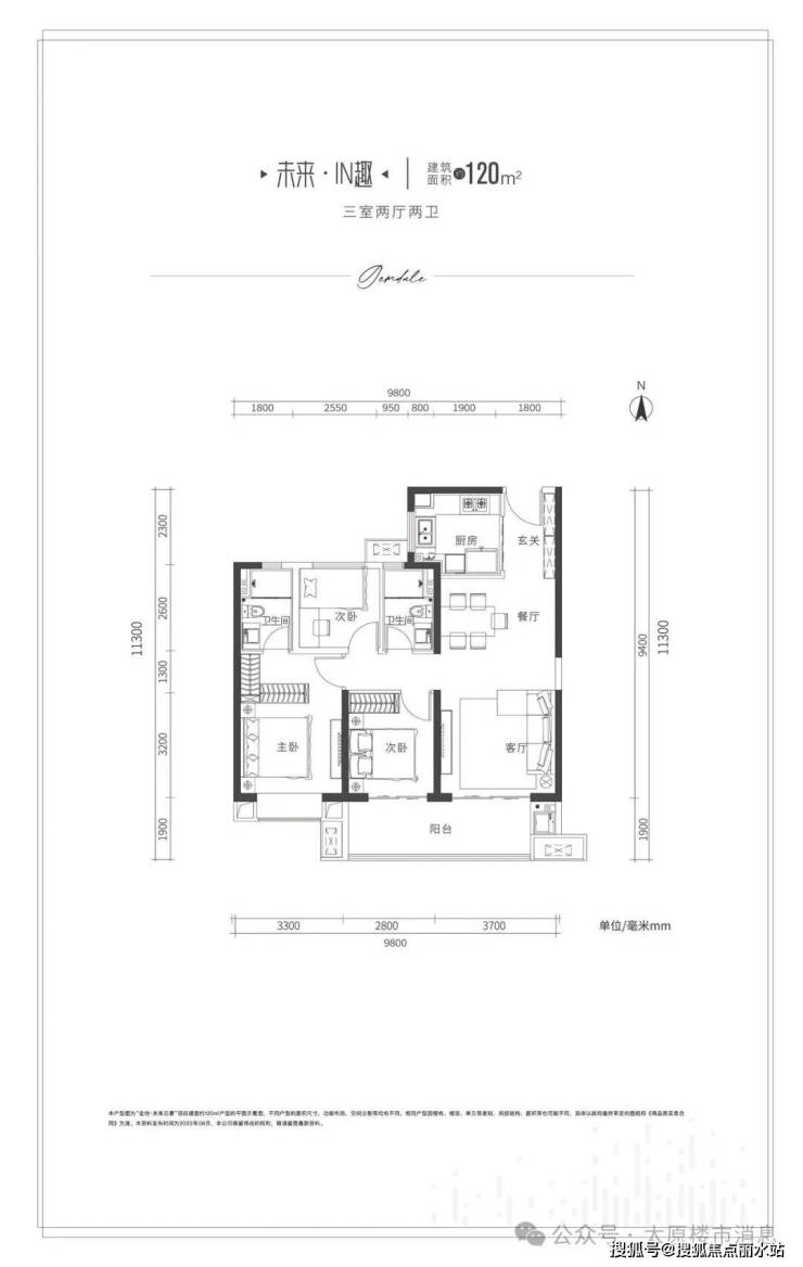
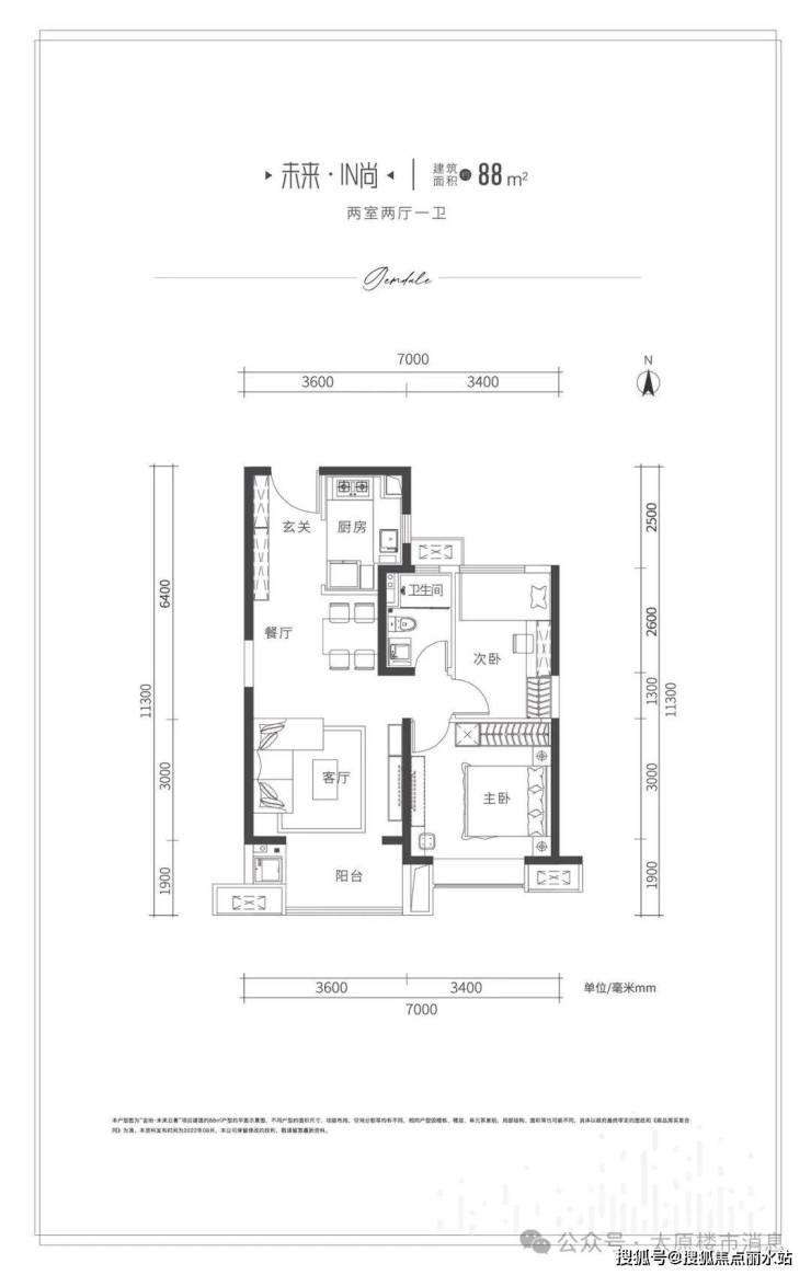
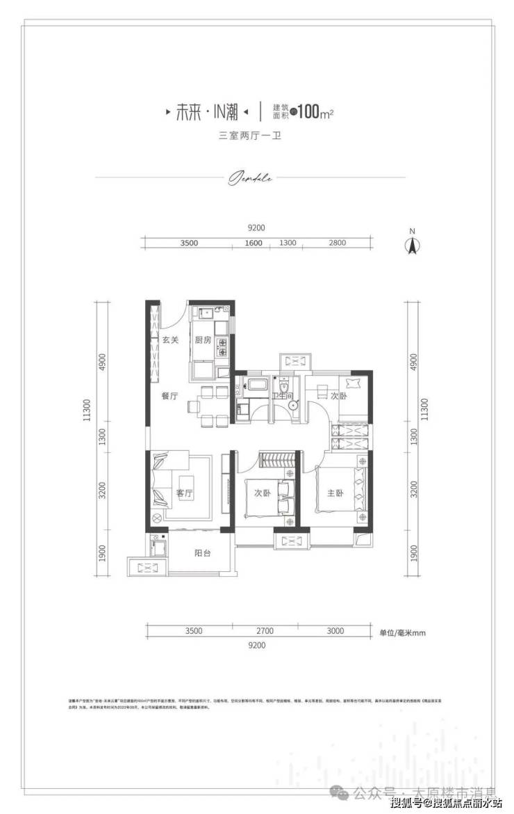
目前,金地未来云著,两居88平,三居100平和123平,部分楼层还可以选。毛坯房源多一些,精装修房源不多了。性价比很高,八千多,交通方便,配套完善,还是很不错的项目。
金地未来云著户型设计很不错,两居三居都是南北通透,100平和120平三居,户型方正,采光面大。120平,有通体大阳台设计。还有四居户型,面价是140平,南北大通透,三个卧室朝南,采光面大,特别那个主卧室,很多人看了都喜欢上了。
金地未来云著,容积率4.2,绿化率25%,总户数1400多户。小区体量中等,物业金地物业管理,小区周边生活配套已经成熟了,即将交付,性价比还是很高的。旁边有小学和中学对口。

1、品牌:品牌央企,(国资背景),施工质量好,进度快,即将交付了,实景呈现。
2、物业:金地物业,一级物业资质,(首批火神山物业),业主们口碑好。
3、交通:西中环与兴华西街,紧邻绕城高速,纵享畅达全城,有几条公交线路,未来有地铁线路规划。
4、商业:接壤兴华商圈,漪汾商圈,下元商圈,一站式全优配套,还享受奥莱和吾悦广场。
5、楼间距:平均楼间距75米,采光好,入住舒适度很高。
声明:本文由入驻焦点开放平台的作者撰写,除焦点官方账号外,观点仅代表作者本人,不代表焦点立场。
