金茂泮湖满庭 (售楼处) 首页 - 金茂泮湖满庭销售中心 - 金茂泮湖满庭价格 - 地址 - 楼盘详情 - 配套 - 电话 - 交房时间 - 配套 - 电话 - 交房时间
扫描到手机,新闻随时看
扫一扫,用手机看文章
更加方便分享给朋友
🌈金茂泮湖满庭售楼处电话☎️400-8787-098转接8999(营销中心)
🌈金茂泮湖满庭营销中心电话:☎️400-8787-098转8999【营销中心】
🌈温馨提示:拨打400电话,听到嘀声后,输入分机号8999即可!金茂·泮湖满庭是T字型地块,T字两边是老社区。
虽然外部有泮湖公园这样的景观资源,北侧靠水;但内部的T字形态其实是有劣势的,金茂尽量扭转这方面的劣势,如在宣传中说是T台秀。
因为T字形态是长和扁,实际设计过程中很难在楼与楼之间做出大组团,所以金茂通过高差递减、北高南低来化解这一尴尬,形成有山地感的立体景观格局。
主入口开在了北侧,一路之隔就是规划的泮湖公园,拥有约1.6万㎡的湖泊。
进入大门后是归家大堂+业主会所,会所预设功能较齐全,涵盖了运动、健身、会客、甚至私宴厅。布局如下:

02
整个小区共规划556户,小高层+洋房,带精装修;
北侧一排4栋18F到顶的小高层,其中中户100㎡和边户120㎡;
其他11栋楼是7-11F到顶洋房,产品104-143㎡。

户型分配比例如下:

03
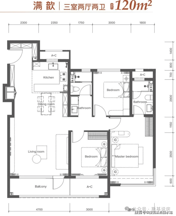
小高层100和120㎡ 三室两厅两卫
只讲下创新点的地方,小高层户型中户和边户S墙体设计,客厅预留了放置冰箱的空间;
入户厨房位置对客厅的墙体可以做成中式岛台,与客厅联动;
客厅延伸出去的阳台相当于连接了次卧的设备间赠送,演变成一个大阳台,像100㎡户型阳台就可以做到6.6米;120㎡就是7.7米。


04
洋房130㎡三室两厅两卫
看到130㎡户型,其实就会想到旁边格调的128㎡,还是有接近的地方,难怪会让人纠结选谁。
130㎡洋房也是贯通梯设计,相当于有私家电梯厅入户,这应该是大平米改善的标配了吧,让感觉上回归1T1户,有私家厅,管道井放在楼梯走道里。
南向次卧在入户玄关右侧开门,保持客厅的完整性;格调的户型是在客厅侧开门;
客餐厨+阳台一体化空间,可能厨和餐略小一点,餐厅放四人座;
南向主卧套间,开间4米,主卧大转角窗不错,视野开阔。

洋房143㎡三室/四室两厅两卫
先说三室两厅两卫,相当于130㎡的尺度升级;
依然LDKB设计,餐厅+厨房5米大面宽,客厅面宽6.8米,阳台连接次卧近10米的阳台。
主卧套间+飘窗改造,开间达到了4.4米。

四室两厅两卫,变化主要体现在客餐厨的变化,
厨房旁改造了一个小型的居住空间(户型图位置标注为书房),然后客厅尺度更加开阔,做到了7.1米的宽厅设计,餐厅摆放至客厅部分,分隔成两个功能空间;
其实书房空间在后期使用时也可以完全变成一个独立餐厅空间;
如果主人有待客需求的,餐厅和客厅是两个完全独立的空间,互不干扰。
但这种需求,完全是根据自身需求来,仁者见仁智者见智。

🌈金茂泮湖满庭售楼处电话☎️400-8787-098转接8999(营销中心)
🌈金茂泮湖满庭营销中心电话:☎️400-8787-098转8999【营销中心】
🌈温馨提示:拨打400电话,听到嘀声后,输入分机号8999即可
声明:本文由入驻焦点开放平台的作者撰写,除焦点官方账号外,观点仅代表作者本人,不代表焦点立场。
