苏州鸿湖上售楼处电话→苏州鸿湖上24小时电话→苏州鸿湖上2025最新房价→苏州鸿湖上楼盘百科详情
扫描到手机,新闻随时看
扫一扫,用手机看文章
更加方便分享给朋友
🌈苏州鸿湖上售楼处电话☎️400-8787-098转接4444(专人接听)
🌈苏州鸿湖上营销中心电话:☎️400-8787-098转4444【营销中心】
🌈温馨提示:拨打400电话,听到嘀声后,输入分机号4444即可!
旭辉澹台湖别墅——鸿湖上自拿地起,便深受吴中&姑苏老钱的关注!
本周一(8月4日),项目位于吴文化博物馆的城市展厅终于开放,吸引了大批客户到访!
🌈苏州鸿湖上售楼处电话☎️400-8787-098转接4444(专人接听)
🌈苏州鸿湖上营销中心电话:☎️400-8787-098转4444【营销中心】
大量产品细节也随之曝光——
容积率1.02,拟建23幢3F合院、联排以及6幢9F四代洋房,全盘仅196套。
其中洋房约180-300m²,合院、联排约240-380㎡,不论业态、产品还是圈层,皆刷新吴中主城住宅标准!
当然最关键的还是它的地段,位于在澹台湖公园内,是真正意义上的独享湖,是苏州的湖墅孤本。

🌈苏州鸿湖上售楼处电话☎️400-8787-098转接4444(专人接听)
🌈苏州鸿湖上营销中心电话:☎️400-8787-098转4444【营销中心】
示范区预计会在8月底9月初公开,放风价千万起步,提前关注起来!
鸿湖上的地段有多金贵?土拍数据早已给出答案。
2024年10月11日,当21698元/㎡的楼面价落槌时,整个吴中楼市都为之侧目:
区域3年多来第一宗溢价成交地、区域近4年最高地价、吴中近10年最低容积率地块…
市场从不说谎,鸿湖上的价值,从一开始就刻在了土地里。
而从公示的产品规划来看,旭辉也显然读懂了这块 “宝地” 的价值——
23栋3F合院、联排,以3层的亲地尺度,藏纳独门独院的私密与尊崇;
6栋9F四代宅洋房,以迭代形态重构洋房标准,带来空中庭院般的阔境体验,更有罕见的一线湖居资源。

🌈苏州鸿湖上售楼处电话☎️400-8787-098转接4444(专人接听)
🌈苏州鸿湖上营销中心电话:☎️400-8787-098转4444【营销中心】
其中,联排、合院以清雅宋风为笔,勾勒出 “天工巧匠、简素留白” 的东方意境,成为区域内首个宋风墅区,一开即定调高端美学标杆!
🌈苏州鸿湖上售楼处电话☎️400-8787-098转接4444(专人接听)
🌈苏州鸿湖上营销中心电话:☎️400-8787-098转4444【营销中心】
洋房的惊艳,藏在 “第四代住宅” 的细节里:奇偶错层+空中露台+客厅挑高设计,让空间生长出更多可能性。
目前苏州不缺四代宅,但把四代宅的创新装进洋房里,再安放在一线湖岸,这样的房子,真的不多见。
除此之外,洋房公区留有架空层设计,实现观景走廊、花艺展示空间、下午茶沙发区、户外休息区等4大活动空间。
洋房楼栋大堂都设计了双大堂、首层礼仪大堂、地下光厅大堂,营造酒店式归家体验。
🌈苏州鸿湖上售楼处电话☎️400-8787-098转接4444(专人接听)
🌈苏州鸿湖上营销中心电话:☎️400-8787-098转4444【营销中心】
整个社区在空间规划上更是独具匠心,采用南北分区造园的格局,北翼规划为静谧洋房,南翼则布局私密合院,既保证了不同业态的纯粹性,又通过景观脉络实现有机联动。
园林营造上,深谙人文与自然的共生之道,以姑苏书院的文脉为魂,借鉴苏式造园手法,以三进礼仪构建归家序列,重现东方世家的尊崇仪轨。
酒店式入户门庭,奢石入户铺装,专属定制千道龙纹鎏金屏风,彰显尊崇的冷翡翠玉石家族幕墙,打造独具东方特色的精致感。


🌈苏州鸿湖上售楼处电话☎️400-8787-098转接4444(专人接听)
🌈苏州鸿湖上营销中心电话:☎️400-8787-098转4444【营销中心】
九曲游廊,取意明代吴门画派领袖沈周的《吴中山水画卷》打造步移景异的“九曲连廊”,每一步都踏在宋元画卷的留白处。
沧浪茶轩,古建飞檐、三段式景墙、鎏金屏风、稀缺奢石,一幅苏州大家气派。
超1900㎡下沉式高配会所——鸿湖荟,以东方雅序的手法融合了行政酒廊、游泳区、运动区、普拉提室、私宴厅、棋牌室六大功能空间。
🌈苏州鸿湖上售楼处电话☎️400-8787-098转接4444(专人接听)
🌈苏州鸿湖上营销中心电话:☎️400-8787-098转4444【营销中心】
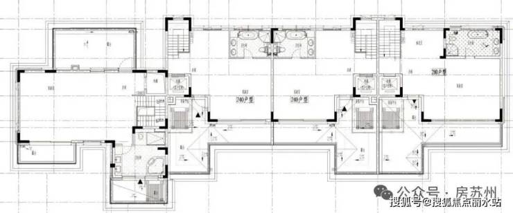
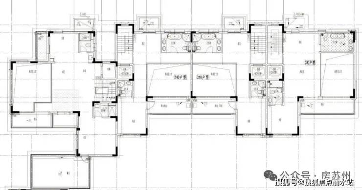
大家翘首以盼的正式户型图尚未揭晓,但面积段已提前释放,这份 “剧透” 足以让人期待——
洋房建面约180-300㎡,合院、联排约240-380㎡,清一色大尺度户型,从根源上保证了圈层的纯粹性。
再看公示的31#(9F 洋房)户型图,更是藏不住的阔绰:
一梯一户,奇数层测算面积约300平,整体南向开间约23.8米;
全新LDKG一体化设计打造超宽景生活,客厅留有双层挑空,依户型不同分三面环绕式空中花园及转角式空中花园,打造新一代宽景湖居生活。
这个户型设计真的无敌了!空中露台+客厅挑高,妥妥的五代宅标准
🌈苏州鸿湖上售楼处电话☎️400-8787-098转接4444(专人接听)
🌈苏州鸿湖上营销中心电话:☎️400-8787-098转4444【营销中心】
偶数层面积也为约300平,整体布局与奇数层格局相同,区分在客厅与270°景观露台都在南侧。
🌈苏州鸿湖上售楼处电话☎️400-8787-098转接4444(专人接听)
🌈苏州鸿湖上营销中心电话:☎️400-8787-098转4444【营销中心】
别墅为湖居合院,以五层空间架构(地面三层、地下两层)+约3.5米首层层高,勾勒别墅生活尺度。
而定制门徽、专属屏风与匠心灯具的三重仪式感,不仅晕染出诗礼传家的门第气韵,更让每一处细节都成为家族精神的具象传承。
🌈苏州鸿湖上售楼处电话☎️400-8787-098转接4444(专人接听)
🌈苏州鸿湖上营销中心电话:☎️400-8787-098转4444【营销中心】
一二三层户型示意图如下,面积段已经明确,为建面约240/280/360m²,依户型不同,巧设三面围院和南北分院两种格局。
另据拍地要求,装标不低于3000元/㎡,作为“吴中第一豪宅”,盲猜最终标准只高不低。
🌈苏州鸿湖上售楼处电话☎️400-8787-098转接4444(专人接听)
🌈苏州鸿湖上营销中心电话:☎️400-8787-098转4444【营销中心】
项目位于吴中城南白云街南、下田路西,地段没的说,是正儿八经的主城核芯。

东侧紧邻澹台湖景区和千年宝带桥,北侧京杭大运河;东南侧国家一级博物馆的吴文化博物馆,下楼即享博物馆级的精神滋养。
这样的景观与人文双重馈赠,在吴中乃至全苏州,都是少数人能拥有的 “生活奢侈品”。
🌈苏州鸿湖上售楼处电话☎️400-8787-098转接4444(专人接听)
🌈苏州鸿湖上营销中心电话:☎️400-8787-098转4444【营销中心】
成熟配套更让这份珍贵落地:
周边低密别墅群林立,圈层纯粹自不必说;碧波实小、碧波中学在家门口筑就教育主场;
龙湖天街、宝盛商业广场将繁华拉至日常半径;地铁2/4号线无缝衔接全城,居住的便利度直接拉满。
若剥离区域标签,单论地块的先天禀赋,这里的底子与双湖相比,亦不遑多让。
藏不住的潜力,同样写在周边的土地里,多宗空地待启,按照规划趋势,这里有望成为吴中数一数二的低密别墅聚集区,形成纯粹的高端居住圈。
再看鸿湖上,作为这片高地的首发之作,区域豪宅的 “定调者”,它的登场,注定要重新书写吴中高端住宅的标准,成为圈层追捧的风向标。
现在,城市展厅已正式开放!
🌈苏州鸿湖上售楼处电话☎️400-8787-098转接4444(专人接听)
🌈苏州鸿湖上营销中心电话:☎️400-8787-098转4444【营销中心】
🌈温馨提示:拨打400电话,听到嘀声后,输入分机号4444即可!
声明:本文由入驻焦点开放平台的作者撰写,除焦点官方账号外,观点仅代表作者本人,不代表焦点立场。
