武汉华侨城·红坊售楼处电话—武汉华侨城·红坊售楼中心|24小时热线|户型价格|解析!
扫描到手机,新闻随时看
扫一扫,用手机看文章
更加方便分享给朋友
武汉华侨城·红坊
售楼中心24小时电话:400-8787-098转接5555。
致电售楼处了解更多信息,安全通话隐藏真实号码,请放心使用
网上售楼中心——欢迎来电咨询〢——匠心钜制恭迎品鉴!
武昌住宅《华侨城·红坊》千亿央企+200万方超级大盘+学区+区域标杆+改善必看
售楼处电话:400-8787-098转接5555。
华侨城红坊:主推7街坊建面约175-216平米毛坯房源,折后均价23000-28000元/平米,17、18街坊建面约112-129平米房源,折后均价约21000元/平。
项目优势分析:
1、千亿央企:华侨城集团是国资委直管的大型央企,在武汉的知名度非常高,开发的楼盘大多是超大社区,主打品质,二手房价格都比较高,是品质开发商代表。
2、超大型社区:项目总规划超200万方,总投资约350亿,规划庞大,包括写字楼、商业、公寓、创意设计中心、体育中心、学校等,所以对于业主来说,买的不仅仅是一套房子,还有强大的配套和未来的想象空间。
3、学区:项目分几个地块开发,其中7街坊对口红钢城小学和第四十九中学,而17、18街坊楼下则规划九年一贯制中小学,大概率也是区域内第一梯队学校的分校。
4、刚需价格买改善产品:小区主打品质改善,除高大上的外部配套外,小区内也配有度假式园林、双层精装入户大堂、主题式架空层等,整个逼格都非常高,但是单价却跟同区域其他楼盘差距不大,因此也一直是区域卖的最火的楼盘。
项目疑虑提示:开发周期较长。

华侨城红坊总建面约200万方,规划包含华侨城国际体育中心、华侨城国际会议中心、华侨城全球商品直销中心、五星级酒店、华侨城创意设计中心。
目前推出的住宅部分包括7街坊、17、18街坊(红坊右岸)。其中7街坊占地面积约6.6万方,总建面约42.2万方,其中住宅16.8万方、酒店约3.8万方、商业约1.45万方,容积率约4.33。
17、18街坊和15街坊为红坊右岸,占地面积约12.7万方,总建面52.1万方,其中住宅34.5万方,商业17.6万方。15街坊规划已出,占地面积约5.7万方,总建面约33.2万方,住宅14.6万方,商业约1.2万方,办公约7.5万方,容积率4.19,总户数836户,机动车停车位2479个。
项目地址:青山区和平公园以东,建设八路以西,和平大道以北,临江大道以南
开发商:华侨城集团
物业:华侨城物业(集团)有限公司武汉分公司
产品类型:住宅
产权年限:70年
物业费:元/㎡/月
水费:民水
电费:民电
交房时间:2026年上半年
交房标准:毛坯
在售情况:175-216㎡,112-129㎡
均价:21000元/㎡ 起

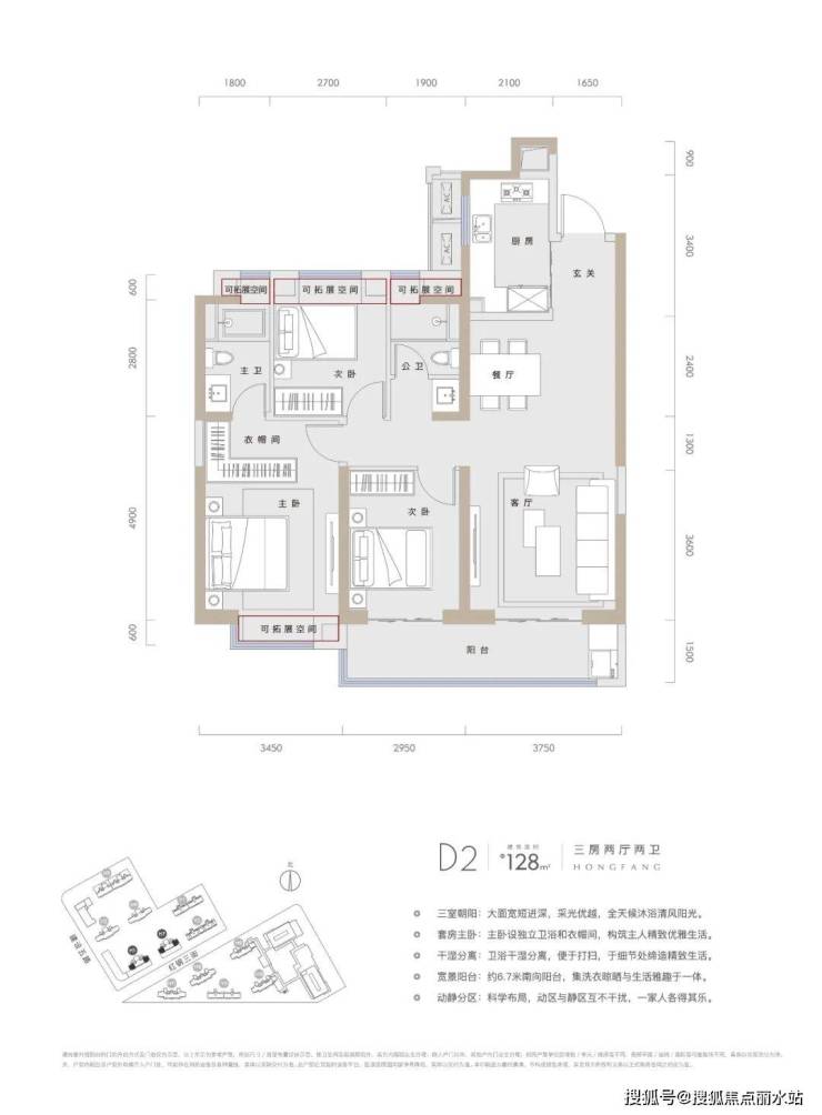
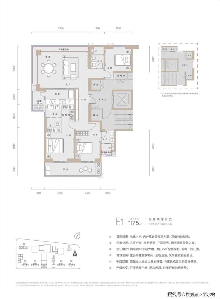
户型图展示:
7街坊
17、18街坊
样板间图片:
区位与交通
区位:
华侨城红坊位于青山区建设八路以西,和平公园以东,临江大道以南,和平大道以北的部分围合区域,在楼市中属于青山滨江板块,属于二至三环。

项目区位图
交通出行:
自驾:项目北临临江大道,南至和平大道,沿临江大道可以直达武昌滨江,和平大道可上二环线、三环线到达武汉三镇,周边还有建六、建七、建八等一下纵向的道路缓解出行压力。

地铁:距离项目最近的地铁站是5号线红钢城站,7街坊直线距离约660米,17街坊约870米,18街坊约600米,都不算远,但也不是一线临地铁。

配套:
项目本身就为整个区域提供了强大的商业、商务配套,目前,JW万豪酒店首入武汉,落子红坊,国际体育中心签约了冠军一号。项目的8街坊、9街坊是红房子历史文化风貌区,由项目将现代商业理念融入原生建筑中,以后会成为一个潮流街区。
区域内的青山商场、中百仓储、武汉印象城、红坊里商业街、武商城市奥莱等都围绕着项目周边,基本都在步行范围内。
教育上,7街区对口红钢城小学和四十九初,均为青山区第一梯队中小学,17街坊旁边规划有中小学,预计也是优质的教育资源,附近还有武钢三中,所以小区也是青山比较有名的学区房。
医疗上,2公里范围内有,武钢总医院(三甲)、普仁医院(三甲)和九医院。
其他配套,项目周边的公园非常多,而且都很近,比如17、18街坊隔壁的和平公园,7街坊对面的青山江滩公园,另外青山公园、戴家湖公园也在项目1.5公里范围内,可以说是被公园包围了。
项目效果图和实景图:
武汉华侨城·红坊
售楼中心24小时电话:400-8787-098转接5555。
致电售楼处了解更多信息,安全通话隐藏真实号码,请放心使用
网上售楼中心——欢迎来电咨询〢——匠心钜制恭迎品鉴!
声明:本文由入驻焦点开放平台的作者撰写,除焦点官方账号外,观点仅代表作者本人,不代表焦点立场。
