2025武汉保利琅誉首页网站-武汉保利琅誉售楼处电话-武汉保利琅誉楼盘详情-交房时间-地址-最新房价户型-小区环境-楼盘详情-交房时间-周边配套-售楼处电话
扫描到手机,新闻随时看
扫一扫,用手机看文章
更加方便分享给朋友
保利琅誉售楼处电话400-8787-098转接输入1818销售(已认证)
➢➢预约参观热线400-8787-098转接输入1818【售楼中心】
➢➢温馨提示——拨打400电话——听到嘀声后——输入分机号1818即可通话
➢➢楼盘基本信息介绍,地址,户型,价格,位置,医疗教育,商业交通配套➢➢网上售楼中心—匠心钜制-恭迎品鉴-欢迎来电咨询-预约一对一讲解-请提前联系售楼处销售进行登记
免责声明:本文如无意中侵犯了某方的知识产权,告之即删
保利琅誉大家期盼已久的保利琅誉售楼部9月13日已开放售楼部和样板间了。保利琅誉项目位于武汉市洪山区铁机村铁机路与团结大道交汇处。在2025年2月17日,保利城四期一共6栋。B区北片调整规划2栋写字楼变成4栋住宅。四期-A区南片2栋。该楼盘产品也做了升级了,是准四代产品,所以得房率相对较高。
该项目也打造下沉式会所,包含私宴厅、影音室、艺术书吧、健身房等空间。整体面南向立面窗墙比70%,交付时阳台统一封窗户,保障整体立面的统一性。
保利琅誉即保利城四期一共6栋房子分为AB两个区—-B区北片项目,共四栋住宅楼,其中1#38F,2#32F,3#25F,4#31F,2、3、4#都有架空层。保利琅誉一共360户,车位配比1:1.09。A区南片有2栋 住宅和商业5#32F和6#32F
【总占地面积】约4.1万㎡
【总建筑面积】约14.3万㎡
【容积率】约2.54
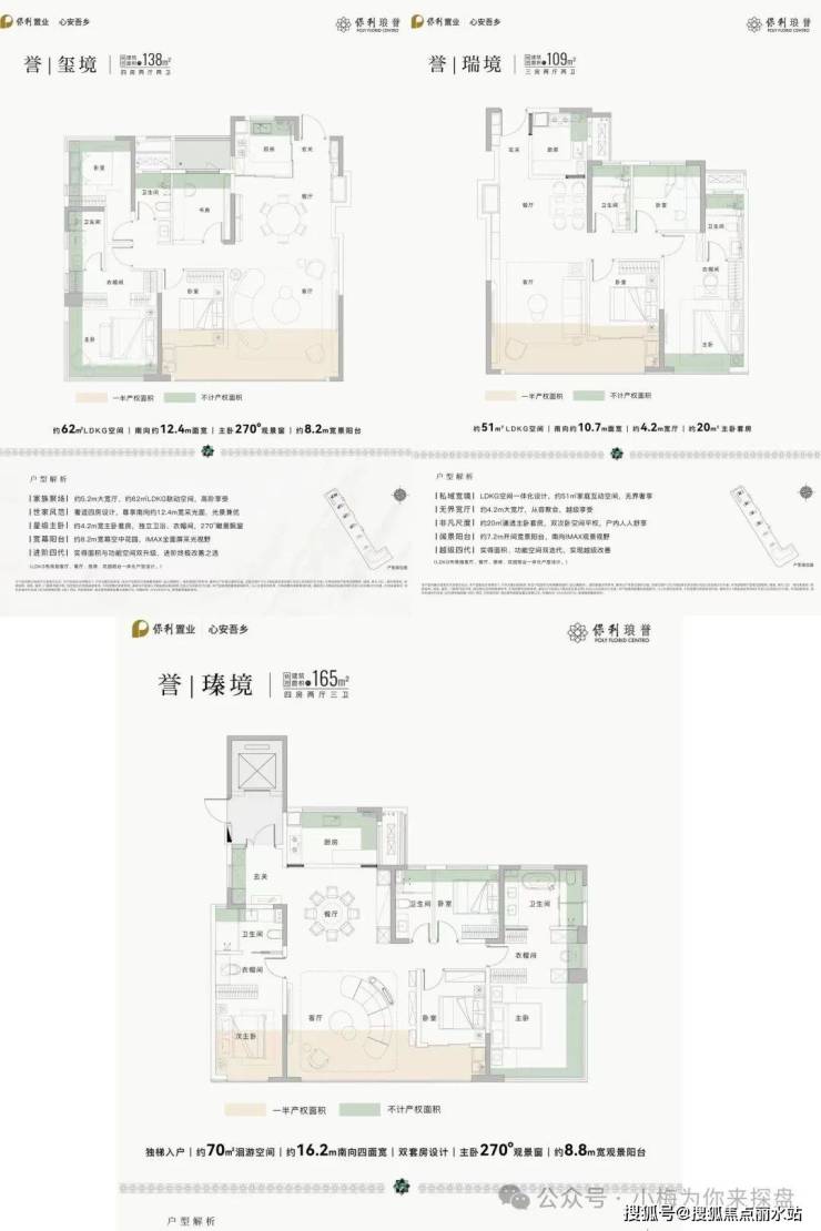
【主力户型】建面约108-165㎡艺术宽邸
目前楼盘已经开始圈存了。售楼部已经开放了。目前确定的是9月29日首开2号楼随后也会卖3号楼,主推137㎡、163㎡户型,少量108㎡户型,毛坯交付。整体圈存价格2号楼 整体均价17500,109单价区间16500-17300 ,138单价区间16800-17700,165单价区间17200-18100。。具体看楼层和面积哈,这个价格来说还是相当可以的,
交通配套
地铁出行:周边有在建的家门口地铁12号线(团结大道站在建)。
开车出行;周边有团结大道和友谊大道,还有二环线。交开车还是蛮方便的。
商业配套
该项目周边之前保利城一期、三期自带的商业,周边约3KM范围内坐拥百万方旗舰商业:约30万方万象城、约18万方滨江天街、约20万方销品茂、约12万方亲橙万象汇、约14万方SKP,还是蛮方便的。
教育配套
周边有武昌实验寄宿小学,广埠屯实验小学、梨园中学等。具体还是等交房划片为准。
医疗配套
最近的医院就是武昌医院和梨园医院大概在3公里左右距离。
休闲配套
该项目离武昌江滩和东湖开车也在3公里左右的距离。
保利琅誉售楼处电话400-8787-098转接输入1818销售(已认证)
➢➢预约参观热线400-8787-098转接输入1818【售楼中心】
➢➢温馨提示——拨打400电话——听到嘀声后——输入分机号1818即可通话
➢➢楼盘基本信息介绍,地址,户型,价格,位置,医疗教育,商业交通配套➢➢网上售楼中心—匠心钜制-恭迎品鉴-欢迎来电咨询-预约一对一讲解-请提前联系售楼处销售进行登记
免责声明:本文如无意中侵犯了某方的知识产权,告之即删
声明:本文由入驻焦点开放平台的作者撰写,除焦点官方账号外,观点仅代表作者本人,不代表焦点立场。
