最新-宁波江山万里·玖洲售楼处400电话 | 楼盘详情丨项目介绍丨最新房源丨周边配套
扫描到手机,新闻随时看
扫一扫,用手机看文章
更加方便分享给朋友
高层290㎡,四房四卫,客厅朝北,看北侧的姚江
330㎡,四房五卫,四开间朝南,常规户型
高层面积:290-330-550㎡,均价5.5万,层高3.2米,一楼架空4.6米,精装交付!
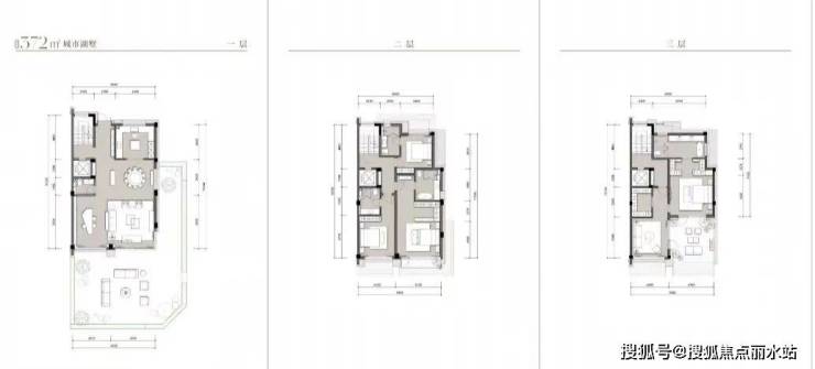
联排372㎡,地上3层,地下一层
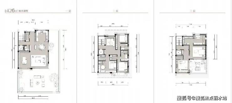
联排426㎡,地上3层,地下一层
项目别墅会在月底开盘,高层1月开盘
别墅面积:372-426-468-627-698㎡,联排别墅1楼层高3.8米,2楼层高3.7米,3楼层高3.3米,地下室7.1米。单价单价在8.9万到11.5万之间,最高总价达到9000万。毛坯交付
项目平层产品,装修品牌,这些都是一直在用的豪宅装修品牌了。
小区内部配套,室内恒温泳池、阅读空间、健身空间、茶室空间。
声明:本文由入驻焦点开放平台的作者撰写,除焦点官方账号外,观点仅代表作者本人,不代表焦点立场。
