太原建投双塔观邸(2025建投双塔观邸)售楼处电话_来电预约看房_太原建投双塔观邸楼盘详情-2025最新房价
扫描到手机,新闻随时看
扫一扫,用手机看文章
更加方便分享给朋友
建投双塔观邸售楼处电话400-8787-098转接输入1818销售(已认证)
➢➢预约参观热线400-8787-098转接输入1818【售楼中心】
➢➢温馨提示——拨打400电话——听到嘀声后——输入分机号1818即可通话
➢➢楼盘基本信息介绍,地址,户型,价格,位置,医疗教育,商业交通配套➢➢网上售楼中心—匠心钜制-恭迎品鉴-欢迎来电咨询-预约一对一讲解-请提前联系售楼处销售进行登记
免责声明:本文如无意中侵犯了某方的知识产权,告之即删
9月30日,建投・双塔观邸营销中心盛大启幕,为太原敬献一份关于“家”的崭新答案。
现以约7950元/㎡起之价,启安家城芯之门,恭迎品鉴。
国庆黄金周期间,建投·双塔观邸人气红盘迅速引爆全城关注,线上曝光30w+次 ,每天接待约50组客户,咨询现场人气鼎沸,气氛热烈。洽谈区内座无虚席,沙盘前簇拥着众多询价家庭,热度持续攀升,稳居国庆期间太原主城楼市红盘,以实实在在的市场热度,印证了亲贤板块的优越地段与国企品质的双重魅力。

随着亲贤城芯价值日益凸显,建投・双塔观邸作为稀缺的环内新盘,正式亮相,为追求主城生活的人们带来难得的机遇。
一杯咖啡的时间,可达长风亲贤商圈,繁华即享。茂业、王府井、天美等核芯商业体近在咫尺,轻松坐享城市核心的繁华与便利。建投・双塔观邸,以一份笃定的诚意,让改善级的城芯生活化为现实,迎接您回归温暖而有质感的家。

作为家长眼中的“教育红盘”,建投・双塔观邸最动人的优势,莫过于签约九一小学(玖玺台校区),不仅是简单的 “近学校”,而是 “目送式教育” 的安心:孩子无需早起赶校车,家长不用请假送学,放学后,孩子可自行步行回家,省下的通勤时间,能变成早餐时的亲子对话、傍晚的绘本共读。
让 “成长” 不再被路程消耗,让 “陪伴” 有更多真实的时光。

在高楼密集的亲贤城芯,建投・双塔观邸主动“做减法”—— 以低容积率摒弃拥挤的塔楼布局,把更多土地留给绿植与阳光。傍晚,下楼步行的功夫就能在公园步道散步、遛弯;周末,带着孩子在公园草坪野餐,抬头是城市天际线,低头是孩子的笑声。
“推窗见繁华,闭户享静谧”,在这里不是广告语,而是日常的真实写照。

我们不说“户型参数”,只讲 “你能拥有的生活”:
建面约112㎡观曦:三代同堂的 “成长空间”—— 独立玄关收纳杂物,避免入户杂乱;南向三开间揽满阳光,每一处设计都贴合家庭成长的需求。
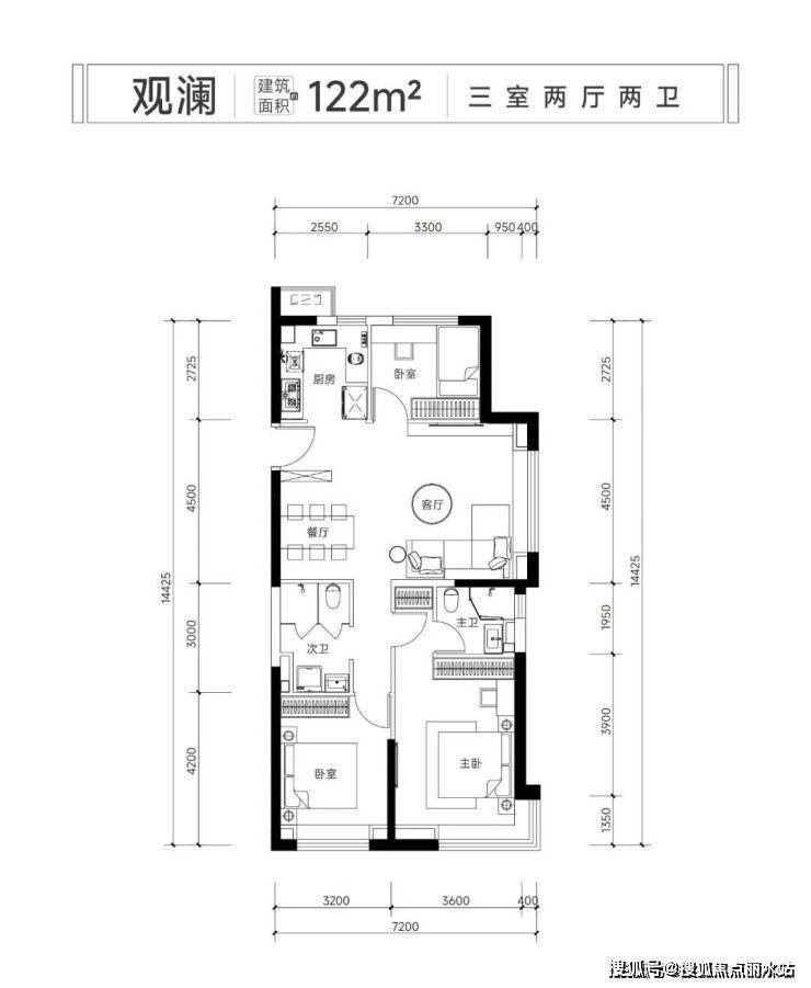
建面约122㎡观澜:聚会与亲子的 “无界场域”一体化设计,妈妈在厨房做饭,能看见孩子在客厅搭积木,温暖从不被空间限制。
建面约140㎡观境:三代同堂的 “私密天地”—— 经典四叶草户型,主卧套房(带独立卫浴 + 衣帽间)、老人房、儿童房分别位于四角,互不打扰。
建投・双塔观邸|以国企匠心筑城芯,用低密藏自然,让九一学府伴成长,把亲贤的繁华、公园的绿意、家人的幸福,都过成日常。
建投双塔观邸售楼处电话400-8787-098转接输入1818销售(已认证)
➢➢预约参观热线400-8787-098转接输入1818【售楼中心】
➢➢温馨提示——拨打400电话——听到嘀声后——输入分机号1818即可通话
➢➢楼盘基本信息介绍,地址,户型,价格,位置,医疗教育,商业交通配套➢➢网上售楼中心—匠心钜制-恭迎品鉴-欢迎来电咨询-预约一对一讲解-请提前联系售楼处销售进行登记
免责声明:本文如无意中侵犯了某方的知识产权,告之即删
声明:本文由入驻焦点开放平台的作者撰写,除焦点官方账号外,观点仅代表作者本人,不代表焦点立场。
