【太原中国铁建花语堂】售楼处电话→户型→地址→太原中国铁建花语堂最新价格→楼盘详情→最新销售动态
扫描到手机,新闻随时看
扫一扫,用手机看文章
更加方便分享给朋友
中国铁建花语堂售楼处电话400-8787-098转接输入1818销售(已认证)
➢➢预约参观热线400-8787-098转接输入1818【售楼中心】
➢➢温馨提示——拨打400电话——听到嘀声后——输入分机号1818即可通话
➢➢楼盘基本信息介绍,地址,户型,价格,位置,医疗教育,商业交通配套➢➢网上售楼中心—匠心钜制-恭迎品鉴-欢迎来电咨询-预约一对一讲解-请提前联系售楼处销售进行登记
免责声明:本文如无意中侵犯了某方的知识产权,告之即删

古人有云,学子高中,是光耀门楣;高官显贵,则称名门望族;娶妻嫁女,讲究门当户对……一扇门,划界为疆,象征着等级与礼序。
中国铁建·花语堂,以前所未见的大手笔,斥资约3600万打造“三晋第一门”,为山西楼市带来一座里程碑式的作品。
环顾太原高品质大宅版图,花语堂一直占据着不可忽视的领秀地位。迭新传统建筑美学,建筑匠人以文化铸魂,为山西省会太原城市核芯地段镌刻另一种地标封面。
作为太原闪耀的地标区域,以长风文化商务区为龙头的城市文化经济提档升级,长风商务区汇集众多政府部门和企事业单位。如今,长风文化商务区已经成为太原的文化名片、经济中心、生态示范和发展先驱。
所见皆文化。入户,即身份。
走在花语堂,从入门起,便多了一份人文底蕴。
城市中轴线,礼序美,每一座建筑都有它的述说与表达。大门呈书卷而开,阳光打在1389块古法琉璃照壁上,熠熠生辉。晋祠三绝之一鱼沼飞梁设计落地,在前庭空间打造约500㎡水景,整个建筑多了递进的涵义,实现每一位建筑师最朴素的心愿与敬意,传承中国文化,复兴中华文化。
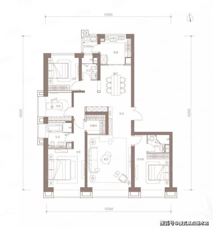
四室175平米户型,四室两厅三卫。户型三面朝阳,南北通透,采光和通风都不错;南侧两卧均有独立卫生间,主卧带衣帽间,生活阳台位于厨房北侧,保证了主卧的私密性;唯一不足的是北侧次卧紧挨厨房、正对餐厅,空间过于开放。
175㎡户型, 4室2厅3卫1厨, 建筑面积约175.00平米
四室195平米户型,四室两厅三卫。该户型是边户,三面朝阳,南北通透,通风、采光都非常理想;该户型优势与上一个户型相同,厨房、餐厅、公卫、生活阳台等公共区域设计的更加集中,对卧室的影响较小,居住舒适度更高。
195㎡户型, 4室2厅3卫1厨, 建筑面积约195.00平米
四室245平米户型,四室两厅三卫。户型同样是边户,三面朝阳,南北通透,采光和通风情况比较理想;书房和客厅一体,配有8米左右的飘窗,视野非常好;南侧两卧配有独立卫生间,设置了主次两个衣帽间,各区域独立性都很强,生活舒适度非常高。
245㎡户型, 4室2厅3卫1厨, 建筑面积约245.00平米
四室300平米户型,四室两厅四卫。该户型是边户,三面朝阳,南北通透,通风、采光都没问题;书房、客厅一体,带十米左右的景观阳台,视野非常开阔;该户型三个卧室有独立卫生间,主卧带衣帽间和独立办公区域;设有独立早餐台、公用衣帽间、保姆房、家政间等提升生活品质的区域,绝对的豪宅配置。
中国铁建花语堂售楼处电话400-8787-098转接输入1818销售(已认证)
➢➢预约参观热线400-8787-098转接输入1818【售楼中心】
➢➢温馨提示——拨打400电话——听到嘀声后——输入分机号1818即可通话
➢➢楼盘基本信息介绍,地址,户型,价格,位置,医疗教育,商业交通配套➢➢网上售楼中心—匠心钜制-恭迎品鉴-欢迎来电咨询-预约一对一讲解-请提前联系售楼处销售进行登记
免责声明:本文如无意中侵犯了某方的知识产权,告之即删
声明:本文由入驻焦点开放平台的作者撰写,除焦点官方账号外,观点仅代表作者本人,不代表焦点立场。
