太原山钢铭著售楼处电话—太原山钢铭著售楼中心|24小时热线|户型价格|解析!
扫描到手机,新闻随时看
扫一扫,用手机看文章
更加方便分享给朋友
✅太原山钢铭著
✅售楼处电话:400-8787-098接通后输入5555【营销中心电话】
✅温馨提示:拨打400-8787-098电话,听到嘀声后,输入分机号5555即可。
✅网上售楼中心〢尊享售楼处优惠服务〢欢迎来电咨询预约案场内部销售人员〢
✅楼盘项目全面介绍,包含楼盘简介、售楼电话、小区图片、区位优势、交通、周边商业配套、户型图等楼盘详情
山钢铭著
开发商:山西莱钢绿建置业有限公司
楼层状况: 4号楼总高8层 ,一梯两户;5号楼总高25层,两梯四户
装修标准:精装修交付
🚪户型:建筑面积约82-158平米
产权年限:70年
物业公司:山东信莱物业管理有限公司太原分公司
🏅国企巨著,实力保障
深耕地产领域二十载,凭借其深厚的国企背景和卓越的品牌实力,致力于打造高品质、宜居的居住环境,赢得了广大业主的信赖与好评。 如今,山钢铭著的一期项目已经圆满交付,为业主们呈现了一个集高品质住宅、完善配套与优美环境于一体的理想家园。
交通:紧邻地铁,2号线嘉节站距本项目仅200余米,至南站、机场交通便利
教育:配备有幼儿园(签约新乐贝幼儿园),签约太原市第三十八中学。小学,中学,全学龄教育配套
医疗:邻近山西白求恩医院、中铁十七局医院、山西省儿童医院、妇幼保健院、爱尔眼科医院等
商业:配有4.4万平米高端休闲社区商业。附近有万达广场(龙城店)、北美N1、国金中心等大型商业中心
生态:根据不同主题分别布置童梦乐园、多功能康体设施,雨水花园、户外会客厅、艺术长廊等分区。周边公园环抱,距龙城公园仅300余米,另有祥云公园,晋阳街公园,东篱公园,星河湾公园等
项目总建筑面积478157.5平方米,地处太原南部核芯区域龙城大街板块,揽藏区域内立体交通、一站式优教、生态、医疗等高质配套资源。 承袭山钢集团绿色科技基因,以五恒智慧家居系统为城市带来智慧健康人居。
五恒科技

“恒温、恒湿、恒氧、恒洁、恒静”,以五恒科技系统打造全维舒居空间,为居者完美兑现,为美好生活赋能。
恒温:根据室外温度变化将室内温度恒定于20℃-26℃之间,无论炎夏还是寒冬,让居家生活温暖如春
恒湿:根据季节变化随时调整室内湿度,冬季加湿夏季除湿,使室内湿度常年保持在30%-70%之间,湿润不燥的环境,不必担心因空气潮湿而引起的身体不适
恒氧:全屋置换式新风,将室外的新鲜空气送入室内,确保新风量不低于30m³/h'人,不仅每一口呼吸都纯净、畅然,更能保障家人的呼吸健康
恒洁:通过新风除霾系统连续不间断更换室内空气,排除V0C污染,使室内PM2.5数值不高于 35,全方位守护居者呼吸健康
恒静:外窗采用三玻两腔中空玻璃,隔音降噪保温隔热,有效隔绝室外噪音。户内保持环境噪声日间<45分贝,夜间<35 分贝,告别传统空调系统噪音,守护每一个香甜梦境
智能舒居2.0新品即将入市
北区4#、5#楼压轴新品即将启幕,在原有五恒科技之上,精细化智慧生活空间,引入狄耐克“全屋智控系统”打造智能舒居2.0产品,实现便捷、安全、丰富的智慧生活场景。
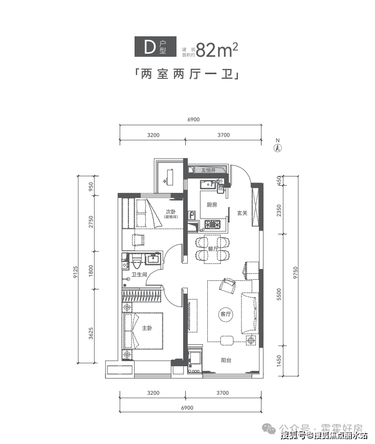
户型鉴赏
【4号楼标准层平面图】
4号楼户型图

「方正奢居」
方正三居,重新诠释大家奢适境界,尽显气度格局
「餐客联袂」
客厅与餐厅一脉相承,从容尺度,赋予大家雍容排场
「全明格局」
三开间向阳布局,尽享阳光偏爱,让温暖时刻相伴
「无界通景」
通景阳台匠心设计,实现客厅与卧室无界相连,拓宽视野
「主次有序」
主次双卫合理规划,确保舒适起居体验,彰显尊崇秩序

「全明奢居」
方正三居,重塑奢居生活新典范,彰显不凡气韵与空间格局
「南北通透」
南北通透空间,奢阔轩敞,打造高品质住区,打造奢适居住体验
「三卫三浴」
三卫三浴设计巧妙,兼顾舒适与实用性,尽享便利起居
「LDKB一体化」
LDKB一体化空间,客餐厨阳台无缝衔接,赋予生活从容尺度
「主卧尊享」
尊崇主卧套房,私享独立空间,诠释非凡居住体验,彰显尊贵气度
【5号楼标准层平面图】
5号楼户型图

「奢雅宽居」
奢雅三居,以阔绰空间尺度,奢揽人生宽朗境界
「全景视界」
全景落地窗配置,坐拥无界视野,尽揽窗外景致
「餐客一体」
客厅与餐厅双厅一体,宽绰尺度,尽显豁达风范
「阳光双卧」
南向双卧布局,阳光满溢,享受温馨休憩时光
「主卧私享」
主卧套房设计,打造私密自在起居,悦享舒适体验

「精致美居」
方正精巧两居,雕琢温馨小筑之美,满溢雅致韵味
「餐客一体」
餐客相融设计,休闲餐饮自在天地,舒适触手可及
「动静分离」
生活空间精心规划,动静区域泾渭分明,起居有序
「飘窗主卧」
主卧飘窗点缀,诗意美景四季更迭,浪漫如影随形
「U 型厨房」
U 型厨房构造,演绎三餐精彩烹饪,时光满是乐趣

「方正阔居」
方正三居,重新定义居家舒适体验,尽享疏阔格局
「餐客联袂」
餐客厅一脉相连,空间流畅无阻,彰显大家风范
「全明光照」
三室向阳而设,阳光肆意洒落,温暖时刻相伴左右
「无界阳台」
通景阳台,客厅与卧室无缝对接,拓宽视觉享受
「主卧尊享」
主卧套房配备步入式衣帽间,尊贵私密,自在私享

「阔朗奢居」
阔朗三居,重塑大家宽绰之享,自在生活随心而驭
「餐厨合璧」
餐厨联袂设计,美味便捷直达,打造流畅餐食空间
「双卧朝南」
朝南双卧布局,四时阳光倾洒,温暖常伴身边
「阔景阳台」
客卧通景阳台,框定无垠天地,匹配视觉奢华盛宴
「主次有序」
合理规划主次双卫,保证舒适起居,尊享私密体验


设计图鉴赏
户外露营车摆摊小推车便携式家用遛娃钓鱼车
运费险7天无理由已售57
¥158
商品卖完了
仙人隹




🏡南区全面升级 高阶改善住区
作为龙城大街顶豪类居住作品,项目南区在核芯地段与全维教育配套加持下,通过精研项目与产品内外空间、提升户内精装、全屋智能化标准,打造面向未来的高阶智能生活住区。社区客厅及别具一格的下沉广场,搭活力环联通的多样森系生活,升级都会居住体验。


✅太原山钢铭著
✅售楼处电话:400-8787-098接通后输入5555【营销中心电话】
✅温馨提示:拨打400-8787-098电话,听到嘀声后,输入分机号5555即可。
✅网上售楼中心〢尊享售楼处优惠服务〢欢迎来电咨询预约案场内部销售人员〢
✅楼盘项目全面介绍,包含楼盘简介、售楼电话、小区图片、区位优势、交通、周边商业配套、户型图等楼盘详情
声明:本文由入驻焦点开放平台的作者撰写,除焦点官方账号外,观点仅代表作者本人,不代表焦点立场。
