400热线-武汉天创贝好家·元萃(售楼处) 首页 - 销售中心 - 环境 - 户型 - 价格 - 地址 - 楼盘详情 - 配套 - 电话 - 交房时间
扫描到手机,新闻随时看
扫一扫,用手机看文章
更加方便分享给朋友
🏡武汉天创贝好家·元萃售楼处电话:400-8787-098输入分机号6666【营销中心】
🏡售楼处位置:400-8787-098输入分机号6666【官方电话】
🏡房价特价信息丨优惠政策丨详细解答丨在售房源丨在售户型图丨项目介绍丨周边配套丨VR看房丨楼盘图丨沙盘图丨位置图丨配套图丨售楼处地址丨

【项目位置】武昌区中山路与解放路交汇处
【产权年限】70年
【交房标准】毛坯
【总占地面积】约1.17方
【总建筑面积】约2.35万方
【绿地率】30%
【容积率】2.0
【总户数】159户
【车位数量】170个
【车位比例】1:1.07
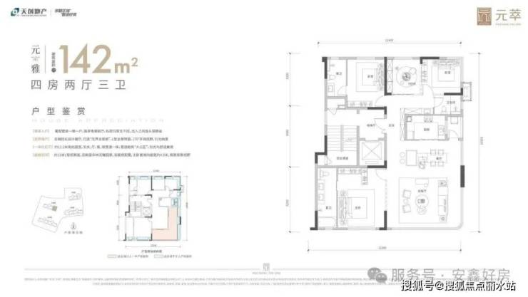
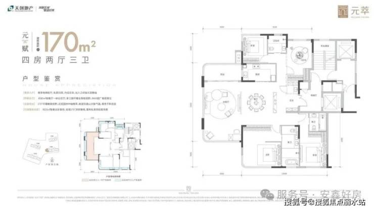
【户型】127-171㎡ 四房
【物业费】尚未公开
【物业公司】武汉泽创物业服务有限公司
区位优势
项目示意图
项目位于项目位于武昌区司门口板块,距离内环线直线距离约1.2公里,属于内环。
自驾:项目位于解放路、中山路城市双主轴交汇处,坐拥三横三纵一桥一隧的立体交通,畅达武汉三镇。
地铁:项目下楼就是地铁5号线昙华林武胜门站,到地铁2号线螃蟹岬站直线距离约为1.2公里。

5号线昙华林武胜门站实拍图(图源网络)
项目到武昌江滩(大堤口广场外滩公园)直线距离约为400多米,到黄鹤楼公园直线距离约为1.1公里,到内沙湖公园直线距离约为1.5公里。
黄鹤楼实拍图(图源网络)

项目周边拥有湖北省武昌实验中学、中华路系名校、武汉中学等优质教育资源。
湖北省武昌实验中学实拍图(图源网络)

项目周边聚集武昌滨江商圈、昙华林商圈、中南汉街商圈大顶级商圈,到昙华林泛悦汇直线距离约为1.2公里,到武昌万象城直线距离约为3.7公里,到武汉滨江天街直线距离约为4.7公里。
武昌万象城实拍图(图源网络)

项目到湖北省中医院直线距离约为600多米,到武汉市第三医院直线距离约为1.5公里,到武汉北斗星儿童医院直线距离约为1.6公里,到武汉大学人民医院直线距离约为2.2公里。
武汉大学人民医院实拍图(图源网络)
产品亮点效果图

项目采用现代公建化手法,融合金属铝板、玻璃幕墙与天然石材打造外立面。
项目以凤凰山为屏,以长江水为灵,从非遗工艺中提取肌理,同步卢浮宫金字塔的“经纬线”的世界审美。以“无穹元境”为主题,打造六重无穹景致的“五礼制归家礼仪”。
一礼:元制古法,礼遇非遗
纯古铜鎏金水波纹,由非遗匠人手工凿刻“引水琢玉”
二礼:元蕴风水,引水琢玉
设门、台、水、亭四点成线,借鉴匠法于中央水景巧设全景会客厅,打造立体多维水景园林。
三礼:元脉雅景,山水入怀
打造绿野童梦无界儿童乐园、无界运动场,无界花园以自然花木、花园替代传统隔断,打造景观节点,借凤凰山为天然背景。
四礼:元庭礼序,显赫归邸
中央车站式大厅「铂金仓」采用奢石“红丝绸”,设计完全独立、双向通行的尊荣车道;
社区尊奢会所「风雅集」风雅集,私宴厅、会客厅、行政酒廊、棋牌室、室内桌球、KTV等多元空间;
私属下沉庭院「鸣翠台」围合式布局,精择名贵花卉绿植,圈层社交专属场域。
五礼:精工钜制,元礼迎归
转译千年仪门元素,传承经典建筑要素,首层公区打破传统入户局限,星级大堂融入昂贵奢石,每一步皆尊崇。
户型鉴赏
🏡武汉天创贝好家·元萃售楼处电话:400-8787-098输入分机号6666【营销中心】
🏡售楼处位置:400-8787-098输入分机号6666【官方电话】
🏡房价特价信息丨优惠政策丨详细解答丨在售房源丨在售户型图丨项目介绍丨周边配套丨VR看房丨楼盘图丨沙盘图丨位置图丨配套图丨售楼处地址丨
声明:本文由入驻焦点开放平台的作者撰写,除焦点官方账号外,观点仅代表作者本人,不代表焦点立场。
