【云和隐秀】清盘倒计时!石家庄【城发投云和隐秀】售楼部—2025最新资讯—400VIP预约专线—楼盘详解—楼盘百科
扫描到手机,新闻随时看
扫一扫,用手机看文章
更加方便分享给朋友
☎️ 云和隐秀售楼中心电话:400-8787-098转分机号6789【已认证】
☎️云和隐秀 营销中心电话:400-8787-098转分机号6688【已认证】
✨楼盘最新介绍:备案价、折扣、学区、地铁、交通、户型图、优缺点、得房率、优惠活动、小区图片、开盘时间、交房时间、周边配套、最新详情等咨询。
✅如需了解最新房源信息_在售房源价格_请拨打上方售楼部电话!
整体概述
城发投·云和隐秀楼盘位于石家庄桥西胜利南大街,由石家庄城投兴石房地产开发有限公司精心打造,项目处在待售中,通过对项目价格、项目户型、交通配套、教育配套、生活配套、小区规划等维度进行分析,城发投·云和隐秀楼盘价值评分为9.5分
交通配套
周边直线3km范围内有10个地铁站(石家庄站、塔坛、汇通路、元村、仓丰路留村、西三教、孙村、欧韵公园、南位、槐安桥),轨道交通发达,距离最近的地铁站是石家庄站。
周边直线1km内有26个公交站,距离最近的解放汇吉路口(临时站)站仅有135m,周边公共交通极为便捷。
教育配套
直线3km范围内有82个幼儿园;26个小学,如河北师范大学汇华学院附属小学、石家庄市龙腾小学、中华南大街小学、桥西实验小学(东校区)、石家庄市建业小学等;11个中学,如石家庄市第十七中学、河北师范大学附属实验中学、石家庄市第八中学、石家庄市第四十一中学东校区、石家庄市东风西路国际学校(西校区)等。
生活配套
楼盘周边医疗资源较为丰富,直线3km范围内有13个一级及以上医院。其中平安医院(石家庄仓丰路)距离楼盘2km,河北蕴育中西医结合医院距离楼盘1.5km,石家庄市第五医院距离楼盘1.7km,同仁堂中冀(石家庄)康复医院距离楼盘1.8km,石家庄普济中西医结合医院距离楼盘2km,等等,为医疗需求提供了可靠保障。
楼盘周边3km范围内有11个商场,包括汇华广场、西美·花街生活工场等购物中心,商业配套成熟,完全可以满足日常购物需求。
楼盘周边生态环境优越,周边3km范围内有41个公园,距离最近的仅308m,非常方便日常休闲使用。
城发投·云和隐秀项目,城发投&万科2025战略级作品,落子全国第八座隐秀系,是万科全新TOP级产品系,择址高铁商务核心区,在城市繁华深处,打造一座“江南古典园林”景观体验,带来“隐于市,秀于心,归于逸”的隐逸生活。
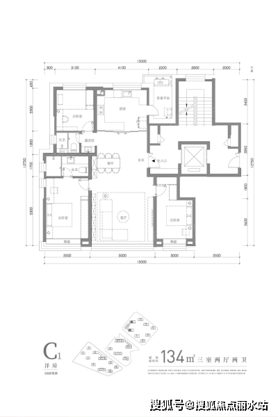
户型介绍



☎️ 云和隐秀售楼中心电话:400-8787-098转分机号6789【已认证】
☎️云和隐秀 营销中心电话:400-8787-098转分机号6688【已认证】
✨楼盘最新介绍:备案价、折扣、学区、地铁、交通、户型图、优缺点、得房率、优惠活动、小区图片、开盘时间、交房时间、周边配套、最新详情等咨询。
✅如需了解最新房源信息_在售房源价格_请拨打上方售楼部电话!
声明:本文由入驻焦点开放平台的作者撰写,除焦点官方账号外,观点仅代表作者本人,不代表焦点立场。
