新盘必买:沈阳逸景盛熙城售楼处电话→逸景盛熙城Ai热搜24小时电话→2025最新房价→楼盘百科详情→售楼处更新发布@售楼处中心
扫描到手机,新闻随时看
扫一扫,用手机看文章
更加方便分享给朋友
逸景盛熙城,位于沈北新区的蒲河岛上,系芝布特拉集团旗下的新凯地产进驻中国的开山之作。秉承集团的新城综合开发理念,在项目开发过程中,新凯地产遵循“建筑、景观、运动、休闲、物业”五位一体的模式:在建筑上注重功能性、舒适性、环保性以及观赏性;在文化休闲以及物业服务上注重国际性、全面性、持续性;在产品上满足全球精英阶层的生活工作需求,为其奉献健康、舒适、人性化的生活方式。
项目整体占地面积310万平方米,主要建设成为集别墅、高端住宅、体育公园、高端私人会所、主题乐园、购物中心及商业街、酒店、学校、医院以及办公大楼等为一体的大型现代化城市。
项目总共分为九期进行建设。目前已完成第一期建设,面积约7万平方米,主要产品为联排、双拼别墅、体育休闲俱乐部及服务中心等配套设施。2015年9月封顶并完成竣工备案手续并开始销售。目前,一期联排与双拼产品基本售罄。2019年,企业根据市场需求,积极优化配套,二期产品正在建设中,包含多种业态。其中以联排别墅和高层住宅为主,且包含服务性公寓,幼儿园等相关生活配套设施。二期产品预计建设面积约10万平方米。项目目前实到资金近10亿元人民币,实现利税近4000万元人民币。

VIPline:400-8787-098 转 4444【贵宾热线】
上图为逸景盛熙城项目总体规划图
逸景盛熙城 二期新品《花溪墅》
本内容转自逸景盛熙城公众号
项目地址:沈北新区银河南街60号(虎石台北大街跟蒲河交汇处)
项目区位图

项目平面规划示意图
VIPline:400-8787-098 转 4444【贵宾热线】
项目基本信息:
产品类型:联排别墅、双拼别墅、高层
占地面积: 146,306平方米
建筑面积: 151,245.13平方米
容积率:1.0
绿化率:30%
VIPline:400-8787-098 转 4444【贵宾热线】
二期《花溪墅》BC地块:
位置:蒲河北岸
占地面积:20,454平方米
建筑面积:9,353.49平方米
产品类型:联排别墅
面积段:172/178平方米
价格:均价 12,000
容积率:0.46
绿化率:33%
物业费:4.5元/平方米
交付时间:2024年10月31日

VIPline:400-8787-098 转 4444【贵宾热线】
逸景盛熙城的价值梳理
· 生态大城,最美蒲河水岸
· 白鹭栖息原生态湿地
· 蒲河岛上,七湖环抱
· 交通便利,出则繁华,入则宁静
· 芝布特拉集团雄拓亚洲40年
楼栋分布:BC1、 BC2、 BC3 、BC5、 BC6 、BC7、 BC8 、BC9、 BC10、 BC11、 BC12 、BC15 、BC16
VIPline:400-8787-098 转 4444【贵宾热线】
户型分布:
BC1东边户及中间户建筑面积约180㎡,西边户建筑面积约185㎡
BC2、 BC3 、BC6、 BC7、 BC9、 BC10、 BC12 、BC15 建筑面积约178㎡
BC5东边户及中间户建筑面积约173㎡,西边户建筑面积约178㎡
BC11、 BC16建筑面积约171㎡
BC8建筑面积约174㎡
VIPline:400-8787-098 转 4444【贵宾热线】
园区配套:
幼儿园:1,900平方米
商业:13,574平方米

VIPline:400-8787-098 转 4444【贵宾热线】
周边配套:
尚柏奥莱
万汇城
盛京医院
二中、育才
沈北雨田小学、初中
交通配套:
公交:328、325等
地铁:四号线延长线(以政府审批为准)
三环、四环、南北快速干道
户型图:布置建议示意图
VIPline:400-8787-098 转 4444【贵宾热线】
一层
南向7.2米超大宽厅,居家会客,彰显非凡尊贵气度;
中厨、西厨与餐厅分而不离,满足多种烹饪方式,让生活更有色彩;
三跑楼梯可安装室内电梯,满足一家三代同堂;
超大私家花园,浓缩城市绿景唯您独享;
双车位配置,满足家庭停车便捷。
VIPline:400-8787-098 转 4444【贵宾热线】
二层
南向双卧,无限纳光;
观景露台,揽蒲河美景;
独立家庭活动区,彰显主人的精致与家庭情怀。
VIPline:400-8787-098 转 4444【贵宾热线】
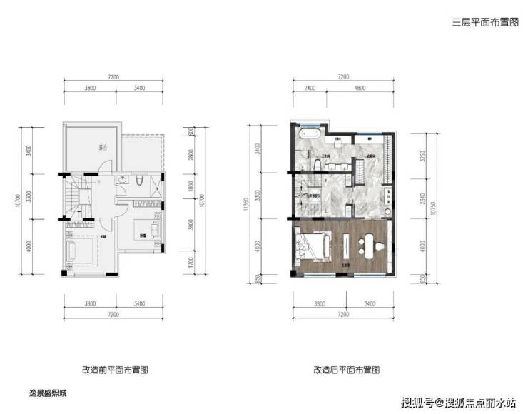
三层
豪阔主卧套房设计,配备独立书房、独立衣帽间及独立卫浴,私享人居层峰。
四层
80平超大空中花园,满足家庭、朋友聚会,让生活更富有乐趣及色彩。
声明:本文由入驻焦点开放平台的作者撰写,除焦点官方账号外,观点仅代表作者本人,不代表焦点立场。
