置顶:广州天健天玺售楼中心电话:400-8787-098转1111@楼盘详情—售楼地址
扫描到手机,新闻随时看
扫一扫,用手机看文章
更加方便分享给朋友
广州天健天玺
☎☎欢迎品鉴:400-8787-098转1111售楼中心!
提前来电-预约登记尊享售楼处1v1销售专业讲解〢一对一热情服务〢
温馨提示:营销中心〢预约可享内部优惠〢匠心钜制-恭迎品鉴
天健天玺项目是天健集团“天”字系产品在广州的首个项目,
位于500亿重金打造的广州黄埔区科学城长岭居板块,三山环绕,一水环腰,交通、教育、商业、康养、生态一应俱全,倾力打造2.0低密墅居的复式洋房与联排别墅。
天健天玺项目体量不大,由4栋复式洋房和7栋别墅组成,容积率2.0,密度较低,居住起来还是较为舒适的。
项目的4栋洋房呈碟状一字排开,两梯八户设计,30层高,但由于是复式结构,实际上只有15层,1栋楼的货量约有120套。
天健天玺项目距离有轨电车1号线长岭居小学站约400米,步行即可到达。
乘坐有轨电车1号线,2站即可接驳地铁21号线长平站,慢线10站或2站到苏元乘坐快线5站即达员村,再换乘5号线即可到达珠江新城。
除了有轨电车,距离项目150米还有茅坦村公交车站,也有多路公交车可接驳地铁21号线、6号线,通往萝岗或市区。
周边商业综合体云集,项目3KM范围内云集40万㎡长岭居门户商业综合体(规划中)、8万方长岭居邻里中心(规划中)及39万方萝岗水西综合体 (在建中);
项目目前开车15分钟即可通达萝岗敏捷广场、奥园广场与万达广场。
周边公园:长平公园、白泥坑公园、格田山公园、凉腾公园、永星公园、禾丰公园
医疗:周边涵盖两家三甲医院,中山大学附属第三医院岭南医院,广州医科大学附属妇幼医院;
一家国际医院,宝能国际总医院(规划中);两家疗养院,广州干部疗养院,泰康之家粤园
教育:北京师范大学实验小学、北京师范大学实验学校、铁英中学、铁英小学、长岭居小学、南方中英文学校
天健天玺主推建面约85-120㎡复式四房,户型涵盖建面约85㎡、95㎡、120㎡以及190㎡
【产品户型】
建面约85-95-118㎡四-五房 改善型复式住宅
天玺独创蝶式户型排布,南北对流,每一户都是最好的一生居所
高层点式错开排布,将景观最大化延伸至建筑空间之中
在空间打造上,双层墅居带来功能分区的礼序,满足三代同堂不同需求
—————【户型鉴赏】—————
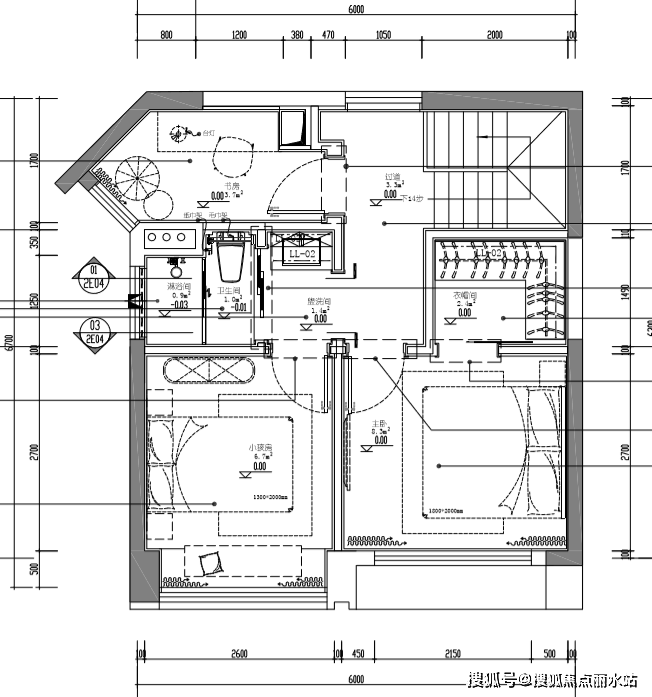
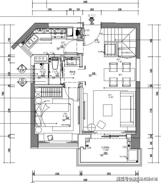
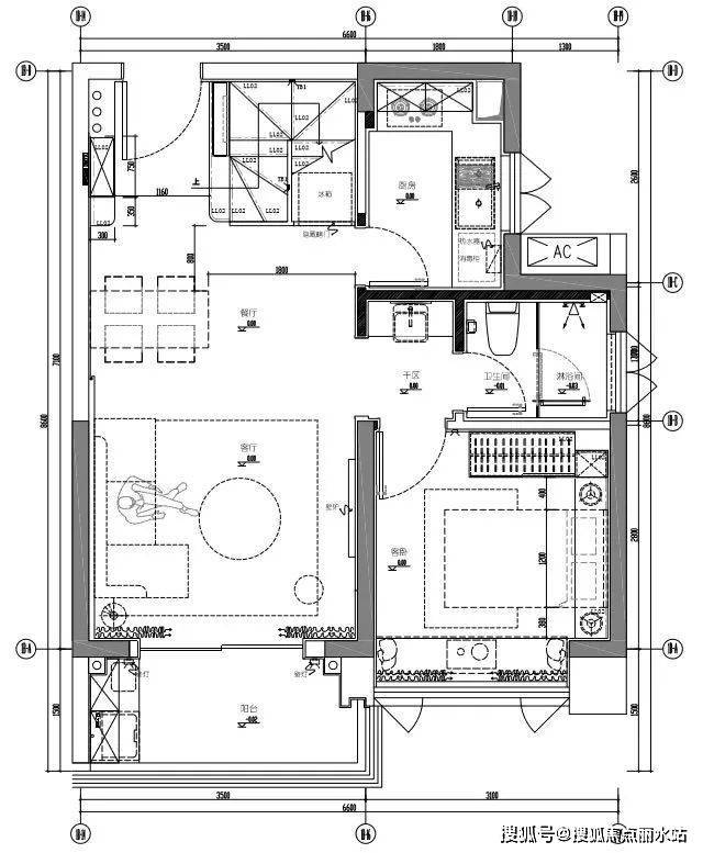
A户型:建面约118㎡复式五房两厅三卫

B户型:建面约85㎡复式四房两厅两卫


C户型:建面约95㎡复式四房两厅三卫

广州天健天玺
☎☎欢迎品鉴:400-8787-098转1111售楼中心!
提前来电-预约登记尊享售楼处1v1销售专业讲解〢一对一热情服务〢
温馨提示:营销中心〢预约可享内部优惠〢匠心钜制-恭迎品鉴
声明:本文由入驻焦点开放平台的作者撰写,除焦点官方账号外,观点仅代表作者本人,不代表焦点立场。
