【2025武汉金地大成乐府】项目售楼处电话→地址→户型→价格→楼盘详情→武汉金地大成乐府最新销售动态!
扫描到手机,新闻随时看
扫一扫,用手机看文章
更加方便分享给朋友
金地大成乐府售楼处电话400-8787-098转接输入1818销售(已认证)
➢➢预约参观热线400-8787-098转接输入1818【售楼中心】
➢➢温馨提示——拨打400电话——听到嘀声后——输入分机号1818即可通话
➢➢楼盘基本信息介绍,地址,户型,价格,位置,医疗教育,商业交通配套➢➢网上售楼中心—匠心钜制-恭迎品鉴-欢迎来电咨询-预约一对一讲解-请提前联系售楼处销售进行登记
免责声明:本文如无意中侵犯了某方的知识产权,告之即删
超大面宽、南向开间
实现视野与功能的完美融合
140㎡左右户型,在功能布局合理的基础上,对户型面宽、南向开间等要求更高,同时对采光、通风、窗墙比也越来越关注,进一步拉近室内外距离,让业主的居住体验大大上升。
比如长沙中交·瑞启芙蓉143这个户型做出了再超越,南向面宽足足19.2米,LDKB一体化空间超62㎡,客厅、主卧、次卧面宽也均为同户型的佼佼者。要知道,19米以上的面宽一般只会出现在大平层。

▲中交·瑞启芙蓉建面约143㎡户型图▲▲中交瑞启芙蓉立面效果图
再比如龙湖·观萃这款建面约143㎡E户型,面宽高达约19.4米,光是L型阳台的长度就达到了约10.1米。

而主卧也做到了双面采光,一面北向朝市政公园,一面西向朝中庭景观。
作为新规产品,高投·启鸣宸序的得房率优势毋庸置疑:建面约143㎡户型拥有比肩160~170㎡级产品的尺度,堪称以改善价格入手豪宅享受。

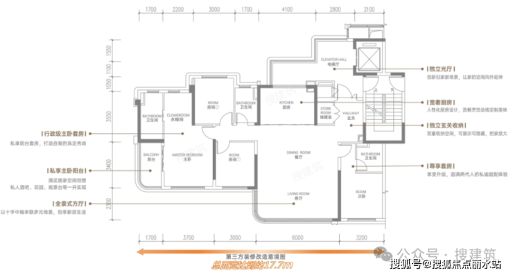
采用超大面宽4+1开间朝南布局,打造约17.7米 IMAX 级南向采光面,尺度感达到了令人惊讶的程度。
室内近年豪宅偏爱的「十字厅」设计理念再现,形成超50㎡家庭互动区域;四房三卫配置也让“双套房”在140㎡级产品中得以实现。
在建筑立面的呈现上,启鸣宸序完美匹配年轻改善人群的极致审美,色彩的运用尤其出彩:楼体香槟金与深空灰搭配,顶部为龙鳞纹发光塔冠,远远望去给人以通透轻盈的质感,入夜更像是一座城市灯塔,辨识度颇高。
海宝蓝石材干挂(基座)与悬浮玻璃幕墙设计,不仅是视觉享受,也尽可能将园林绿意引入楼内,为项目再添几分度假感。
2
公区体系:去边界化边厅
追求尺度感、空间感
作为户型的C位担当,140㎡户型在动区的设计上可谓是“卷”的代名词,各大房企不断优化公区设计,打破传统隔墙限制,延伸动区尺度感、空间感,同时提升空间效率和家庭交流感。
客餐厅还能怎么“卷”?是大尺度的横厅、更实用的方厅,还是采光效果更好的端厅?
三面采光的全景舱解题思路绝对堪称惊艳。
武汉金地·大成乐府的这个全景舱户型客厅三面采光,真正实现了270°环绕视野,将一线城市的豪宅设计带到了武汉改善市场。

约17米的观景体验,60㎡超大尺度㎡环幕LDK全景舱厅,得房率约107%......
试想一下,踏进家门的刹那,就看到宽敞明亮的大客厅,驻足窗前,则是IMAX超广角视野,楼下每个方向的景观都能坐收眼底。
除此以外,它还做到了南北双套房,每个功能空间的尺度都不输传统住宅建面约180平以上的大平层。
如果你把这个户型跟武汉的其他任何140㎡左右户型放在一起,简直是两个时代的产物。
成都澳南锦江序从户型设计来看,约140㎡户型采用了端厅的设计,客餐厅三面采光,再加上外部景观的加持,视野非常不错。户型设计上,没有一味的追求过大的客厅和主卧,其它空间也兼顾了实用性和舒适性。

双端厅的设计,同时通过结构优化、让整个采光面上几乎不存在连续剪力墙,由此做到了约37m的连续采光面。

约40㎡、270°环幕视野全景舱,如同身处IMAX巨幕厅。全景舱难免出现的转角处承重柱,也被澳南·锦江序巧妙避开。
为还原全景舱视野,项目使用了约5000块曲面铝扣板材和大面积转角弧形玻璃,真正比肩超级豪宅。运用大面积星空玻璃幕墙,摒弃传统外立面的山墙设计,打造了隐框式幕墙,显现出通透璀璨的全屏镜面感,是超甲地标中的常用工艺。

▲澳南·锦江序实景图


▲澳南·锦江序外立面效果图
3
主卧体系
最大限度地做增配
「主卧小家化」应该作为一个大家比较熟悉的概念,意味着就算居住者不走到公区,也能够满足大部分时间的生活需求。
从而看出当下年轻人对于卧室空间的舒适度与功能性要求也不断上升。
1、视野增配
澳南·锦江序最值钱的是视野,最值钱的,是离景观最近那间套房的视野。
建面约140㎡户型主床区近9m的连续采光面,看向中庭景观与对岸的沙河,这份视野享受,会让你每天都感觉在4A级景区度假。

同时,双独立衣帽间、四件套卫浴,已经能设置床头软榻、独立沙发区的休息空间,它的功能体验,又是总裁级的行政套房。
▲澳南·锦江序外立面效果图
2、功能增配
全景“百变”的行政主卧套房聚焦场景定制,越秀·阅今沙建面约143㎡户型的表现同样“惊艳”。
光是近40㎡的尺度,就足以碾压所有同能级产品。
在气场强大的场域中,容纳了四大独立功能空间:“小家化”休息区、双台盆卫浴区、双排收纳衣帽间,以及“随机应变”的独立X空间。

这不是简单的空间变化,而是一场居住革命:不同使用场景下的“X空间”,对应的是不同的人生阶段与家庭结构。此外,3个270°落地窗,延展视野宽度,也让空间感节节攀升。
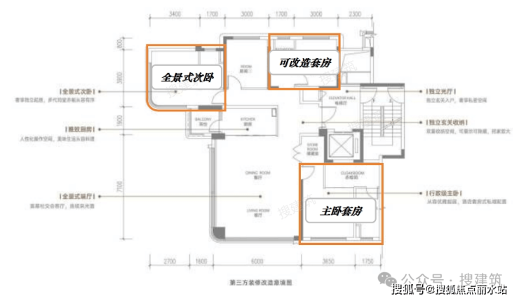
并且,如果你想要更奢华的居住体验,还可以与相邻的南向次卧“合二为一”,形成一个比星级酒店更豪华的超级行政主卧。
高投·启鸣宸序建面约143㎡主卧空间不仅没有被压缩,达到同级产品中罕见的约34㎡,甚至还“增配”了主卧阳台,直接将享受感拉满。

3、套房增配
140面积段户型迭代至今,“双卫升级三卫”是新产品的特征之一。类三套房的配置已经成为了一个衡量整体居住舒适性的标准。
例如高投·启鸣宸序建面约建面约143㎡户型,就给到了一个相当好用的双套房,以及一间可改造为套房的可能,能够做到尊重其他家庭成员的生活习惯,互不干扰。

龙湖·观萃和中交·瑞启芙蓉143户型更是在此基础上做到了三卫全明,把同行的痛点转变成自己的“制胜赛点”。
主卧的空间感也相当豪横。
另外还有两个户型还做到了全明私梯、内外双玄关,独立家政间、独立储藏室,真正的人无我有,人有我优。


金地大成乐府售楼处电话400-8787-098转接输入1818销售(已认证)
➢➢预约参观热线400-8787-098转接输入1818【售楼中心】
➢➢温馨提示——拨打400电话——听到嘀声后——输入分机号1818即可通话
➢➢楼盘基本信息介绍,地址,户型,价格,位置,医疗教育,商业交通配套➢➢网上售楼中心—匠心钜制-恭迎品鉴-欢迎来电咨询-预约一对一讲解-请提前联系售楼处销售进行登记
免责声明:本文如无意中侵犯了某方的知识产权,告之即删
声明:本文由入驻焦点开放平台的作者撰写,除焦点官方账号外,观点仅代表作者本人,不代表焦点立场。
