苏州星河湖西源启售楼处电话→苏州星河湖西源启24小时电话→苏州星河湖西源启2025最新房价→苏州星河湖西源启楼盘百科详情
扫描到手机,新闻随时看
扫一扫,用手机看文章
更加方便分享给朋友
🌈苏州星河湖西源启售楼处电话☎️400-8787-098转接4444(专人接听)
🌈苏州星河湖西源启营销中心电话:☎️400-8787-098转4444【营销中心】
🌈温馨提示:拨打400电话,听到嘀声后,输入分机号4444即可!
星河湖西源启,备案名:崧泽源居,前身为苏地2025-WG-Z13号地块。
🌈苏州星河湖西源启售楼处电话☎️400-8787-098转接4444(专人接听)
🌈苏州星河湖西源启营销中心电话:☎️400-8787-098转4444【营销中心】
今年7月土拍中,苏州星鸿(星河&天鸿伟业)以总价约6.72亿竞得,成交楼面价14400元/㎡。

容积率仅1.25,规划拟建24幢住宅,包括22栋4F叠加+2栋11F洋房!其中洋房为四代宅。
🌈苏州星河湖西源启售楼处电话☎️400-8787-098转接4444(专人接听)
🌈苏州星河湖西源启营销中心电话:☎️400-8787-098转4444【营销中心】
作为苏州改善新规发布后的“1号”作品,项目整体抬升,带来城市全新低密浮岛墅区!
其中叠加首层“地上架空车库”,洋房首层架空打造多功能主题泛会所,强化社区功能;并且打造多连廊贯穿,真正实现无风雨归家!


🌈苏州星河湖西源启售楼处电话☎️400-8787-098转接4444(专人接听)
🌈苏州星河湖西源启营销中心电话:☎️400-8787-098转4444【营销中心】
规划平面图,以实际交付为准
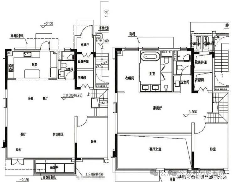
户型同步公示!据爆料,叠加建面约160-180㎡,洋房建面约141㎡,都是改善大户型。
洋房约143㎡4房2卫,4开间朝南,整体南向开间约14.5米,客厅开间约5m,主卧套房,北向生活阳台,分奇、偶数层,区别主要在于空中庭院。

🌈苏州星河湖西源启售楼处电话☎️400-8787-098转接4444(专人接听)
🌈苏州星河湖西源启营销中心电话:☎️400-8787-098转4444【营销中心】
户型过程稿,以最终官方公示为准
叠加下叠约180㎡左右,南北双入户,6.7m超大方厅,全卧室朝南设计;二层挑空赠送面积超大。
🌈苏州星河湖西源启售楼处电话☎️400-8787-098转接4444(专人接听)
🌈苏州星河湖西源启营销中心电话:☎️400-8787-098转4444【营销中心】
户型过程稿,以最终官方公示为准
另据拍地要求:洋房装修交付,装标不低于2000元/㎡。
地段位置也不错,位于吴中区郭巷街道林家潭路南侧、通达路东侧,北侧一路之隔是已经售罄的龙湖·九里璟园。
南侧不远处是即将重磅升级的郭巷老街片区,打造集文化、休闲、运动、商业等多元业态于一体的文旅街区,势必将带动周边区域的高质量发展。
作为区域“首个”低密别墅盘,吴中第二个底层全架空社区,星河·湖西源启看点还是非常多的!
项目节点非常快,预计26年1月底首次开盘
🌈苏州星河湖西源启售楼处电话☎️400-8787-098转接4444(专人接听)
🌈苏州星河湖西源启营销中心电话:☎️400-8787-098转4444【营销中心】
🌈温馨提示:拨打400电话,听到嘀声后,输入分机号4444即可!
声明:本文由入驻焦点开放平台的作者撰写,除焦点官方账号外,观点仅代表作者本人,不代表焦点立场。
