(售楼部)温州首开·第五大道@售楼处电话-售楼中心-首页网站→楼盘详情→400咨询专线
扫描到手机,新闻随时看
扫一扫,用手机看文章
更加方便分享给朋友
温州首开·第五大道售楼处电话:400-8787-098转分机号6666【营销中心】
楼盘详情4008787098-转分机号6666(房价,价格,地址,户型图,交通,周边配套,备案价,楼盘详情,售楼处电话,售楼处地址,最新房源,最新价格,最新动态,最新进展等详情)
【项目名称】:首开·第五大道
【企业概况】
“首开集团”1980年诞生于北京,是一家拥有国家一级开发资质和40余年开发经验的大型国有上市房地产企业。
【项目概况】
首开·第五大道项目占地约73亩,总建筑面积约22万方,地块方正,是市中心难得品质大盘。以首开参与打造的纽约第五大道277公寓的高端营造基因,在温州再塑一部艺奢作品。

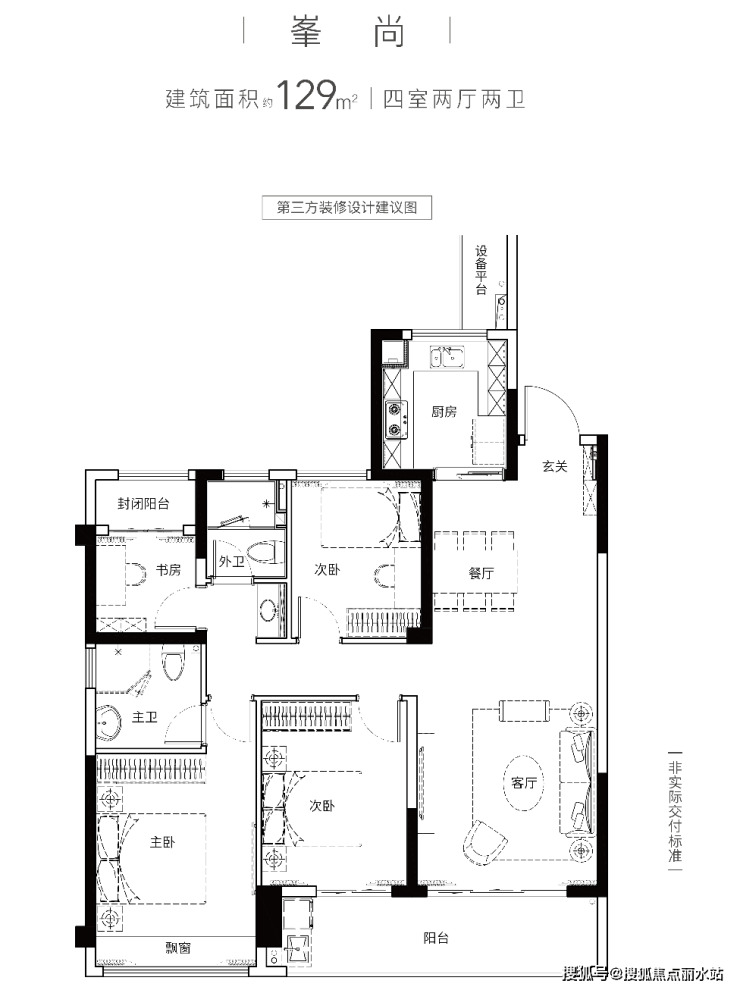
【一期产品】约109㎡、129㎡、139㎡、167㎡
【装修标准】1000元/平方米
【绿地率】30%
【容积率】3.1
【交付时间】预计2024年年底或2025年初
【项目优势】
1、头部实力房企:城市复兴官、双奥开发商、古建筑修缮专家
2、一轴七中心:
城市中轴:中央绿轴总投资约280亿元,是温州城市脊梁。
七大中心:
政务中心:市政府、人民大会堂、规划馆、财务局、工商局等;
文化中心:博物馆、科技馆、图书馆、规划馆、大剧院等;
交通中心:四横三纵交通路网,四横—市府路、锦江路、温州大道、瓯海大道,三纵—惠民路、三友路、温瑞大道(南北走向);周边S1轻轨惠民路站,快速通达全城;
教育中心:项目北侧有在建小学、幼儿园,周边有梧田一中(清华附中)、温州中学、五十一中、第二外国语、瓯海实现小学等;
配套中心:印象城MEGA、万象城、吾悦广场等商业综合体聚集的中心;
生态中心:一线中央绿轴&一线三垟湿地“双核”生态;
豪宅中心:最宜居豪宅板块,第一梯队地产开发品牌聚集。
3、项目配套:规划有下沉式创意会所展示,创意方向为室内恒温泳池、健身房、瑜伽室等休闲娱乐配套设施。项目部分楼栋架空层设置了不同主题的空间规划。
4、品质大盘:纯商品房小区,无安置房及配套用房,市芯同时拥有一线绿轴及一线三垟湿地景观资源的方正品质大盘,尊享全球仅有的6%湿地景观。
户型图:




温州首开·第五大道售楼处电话:400-8787-098转分机号6666【营销中心】
楼盘详情4008787098-转分机号6666(房价,价格,地址,户型图,交通,周边配套,备案价,楼盘详情,售楼处电话,售楼处地址,最新房源,最新价格,最新动态,最新进展等详情)
声明:本文由入驻焦点开放平台的作者撰写,除焦点官方账号外,观点仅代表作者本人,不代表焦点立场。
