南京仁恒云谷世纪售楼处电话→南京仁恒云谷世纪售楼中心首页网站→南京仁恒云谷世纪楼盘百科详情→24小时电话
扫描到手机,新闻随时看
扫一扫,用手机看文章
更加方便分享给朋友
南京仁恒云谷世纪售楼处电话:400-8787-098转分机号5678【官方网站】
南京仁恒云谷世纪售楼处电话:400-8787-098转分机号5678【营销中心】
南京仁恒云谷世纪楼盘详情4008787098-转分机号5678(房价,价格,地址,户型图,交通,周边配套,备案价,楼盘详情,售楼处电话,售楼处地址,最新房源,最新价格,最新动态,最新进展等详情)
仁恒·云谷世纪的前身是麒麟科创园G46地块,去年7月12日,被华能以23.8亿拿下,最终确定由仁恒操刀负责其住宅部分,带来全新“世纪”系产品,打造12栋16-25F科技住宅。
这是仁恒在南京的第四座“世纪系”作品,也是仁恒在此前作品基础上的又一重迭代与升级。同时也从产品品质不断提升的角度给市场带来极大信心。
南京仁恒第四座“世纪系”产品:纵观南京以往的三座“世纪系”作品,桃园世纪临近鼓楼小桃园公园,毗邻长江与秦淮河交汇处;位于燕子矶板块的公园世纪,划界主城滨江人居美学;江湾世纪,与河西CBD隔江对望,和双子塔、南京眼同框,塑造南京湾区生活样板。每一座“世纪系”产品,均择址于城市核心地段,以高标准产品打造,完成了对城市资源与自然景观资源的双重占有。
仁恒·云谷世纪,择址城市稀缺的300万方中央公园及城市河道旁,取山水入园,秉承一贯的仁恒国际化基因,以适度超前的设计思路,创新智慧的产品实践,代言城东新一代的改善人居。
从鸟瞰图可以看出,项目四周被大片绿地和水域环伺,还有约300万方麒麟科技城中央生态公园近在咫尺,生态资源一绝。都市人追求的citywalk以后在家门口就可以实现。
空间升维,尺度优渥:仁恒·云谷世纪主力户型建面约99-180㎡,最大到180㎡,当下麒麟板块尚且没有这样的大户型产品,创新空间布局,比例、格局、视野俱佳,尺度从容优渥,居住场景直线进阶。和售楼处一同亮相的还有建面约建面约99㎡、143㎡、168㎡三大样板间。
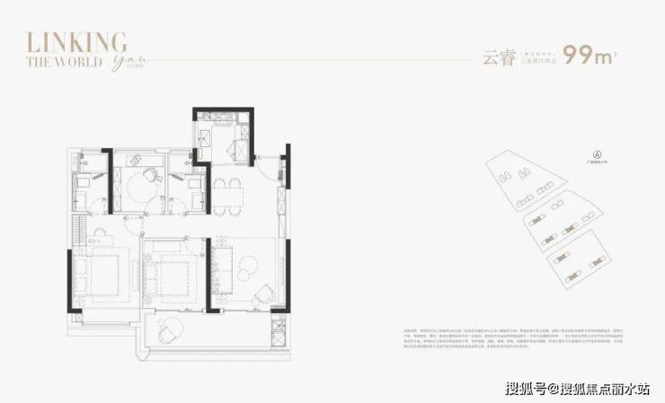
建面约99㎡,三室两厅两卫↓↓
三开间朝南,客厅开间约3.5米,客餐厨为LDK一体化设计,客厅和卧室形成南向双阳台,开间达到约6.4米。主卧套房设计,带有独立卫浴和衣帽间。而且该卧室还带有一个次卫,在99㎡的空间内做到了双卫这一点还是非常强大的。

建面约143㎡,四室两厅两卫↓↓
南京仁恒云谷世纪售楼处电话:400-8787-098转分机号5678【官方网站】
南京仁恒云谷世纪售楼处电话:400-8787-098转分机号5678【营销中心】
南京仁恒云谷世纪楼盘详情4008787098-转分机号5678(房价,价格,地址,户型图,交通,周边配套,备案价,楼盘详情,售楼处电话,售楼处地址,最新房源,最新价格,最新动态,最新进展等详情)
声明:本文由入驻焦点开放平台的作者撰写,除焦点官方账号外,观点仅代表作者本人,不代表焦点立场。
