苏州江南云起售楼处电话→苏州江南云起销售中心电话→楼盘百科→苏州江南云起首页网站→楼盘百科→户型→周边配套→首页网站→24小时热线电话
扫描到手机,新闻随时看
扫一扫,用手机看文章
更加方便分享给朋友
近日,苏州城市规划公示网发布了位于相城区高铁新城民乐路东、陶村街北的苏地2023-WG-95号地块住宅项目规划批前公示。
根据公示,该地块规划打造14幢8F-17F四代住宅产品。
苏地2023-WG-95号地块,于2023年12月由江苏汇欣鑫&苏州高融置业以12.7亿底价斩获,楼面价15000元/㎡,容积率仅1.8。

售楼处营销中心☎:400-8787-098拨通输入4444转接销售
地块位于相城区高铁新城南部,齐门北大街东、马泾路南,近高铁新城核心配套。
14栋低密住宅
四代宅标签明显
该地块总建筑面积131699.23㎡,总计容面积84699㎡,容积率1.8,建筑密度25%,绿地率30%,层数为1-17层,建筑高度52.6米。
根据公示,项目将打造14幢8F-17F四代住宅产品(奇偶错层)。其中17F住宅仅3幢,位于项目最北侧;主力楼幢以8F-11F为主。

售楼处营销中心☎:400-8787-098拨通输入4444转接销售
出入方面,北侧马泾路为车行出入口、人行出入口;东侧建胜路为人行次要出入口;南侧规划道路为车行出入口、人行次要出入口;西侧齐门北大街为车行出入口。
售楼处营销中心☎:400-8787-098拨通输入4444转接销售
景观及配套方面也很丰富,小区自带物业用房、托育用房、社区养老用房,下沉庭院中心景观,1942㎡公共绿地、583㎡室外体育活动用地、400㎡儿童活动及老年人休息设施。小区南侧还有一处街角公园。
效果图曝光,大面积玻璃+质感金属线条现代风外立面,四代宅标签明显,错台挑空设计+大面积空中庭院,整体改善属性较强。
公示2栋楼(10F洋房)效果图显示,南向空中庭院采用每户独立隔板,中间隔空,私密性更强,且顶层或有挑空设计。

售楼处营销中心☎:400-8787-098拨通输入4444转接销售
2#楼南立面效果图
公示9#楼立面效果图,一层仅有两户,改善属性同样很强,错层露台分布在南侧和东西两侧。

售楼处营销中心☎:400-8787-098拨通输入4444转接销售
9#楼南立面效果图
多款户型曝光
南向大面积庭院+北向大开间家政阳台
L型飘窗+全明卫
项目同步公示了10F和11+1F洋房多款户型。
2#楼偶数层(2梯4户、10F洋房)


售楼处营销中心☎:400-8787-098拨通输入4444转接销售
中间户:与边户布局相似,仅主卧没有飘窗设计。
2#楼奇数层(2梯4户、10F洋房)

售楼处营销中心☎:400-8787-098拨通输入4444转接销售
与偶数层的区别在于,空中庭院与客厅+南次卧相连。边户主卧为L型飘窗设计,同样具有极佳采光,中间户也是多飘窗设计。

售楼处营销中心☎:400-8787-098拨通输入4444转接销售
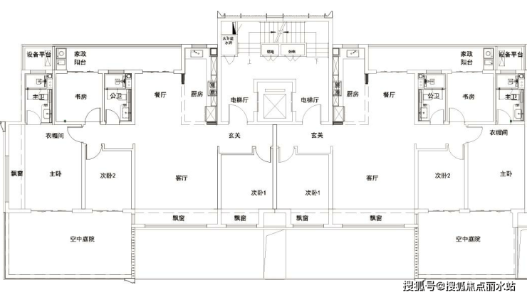
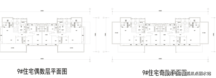
9#楼(2梯2户,11+1F洋房)

偶数层户型↓

奇数层户型↓
同款4房2厅3卫,北向家政区+南向全景落地窗,东西两侧空中庭院与厨餐客厅相连,打造超大活动区,全屋更自带5大飘窗。

售楼处营销中心☎:400-8787-098拨通输入4444转接销售
从区位来看,项目位于高铁新城南部片区,北侧紧邻象屿·江南云起,板块内商业成熟步行可达有吾悦广场,紧靠公园,未来还有规划新的住宅用地入市,另外板块还规划学校,未来可期。

售楼处营销中心☎:400-8787-098拨通输入4444转接销售
交通:距离2号线大湾站约1.2km;自驾西接齐门北大街,南连太阳路,东靠相城大道,交通出行便利。
商业:1.5km内覆盖高铁新城吾悦广场+圆融购物中心,北侧铂悦春和万象社区商业作为补充。
教育:近距南师大相城实小、南师大苏州实验学校等教育资源。
休闲:区域还有大湾公园等,此外毗邻国家3A级旅游景区——苏州花卉植物园等配套。
相城“四代宅”项目市场表现亮眼:
最近两年是苏州“四代宅”元年,相城区敢于尝试,勇于“试点”,落地数个第四代住宅项目。
苏州首个入市销售的第四代住宅产品正是位于高铁新城板块的龙湖未来·御湖境项目,市场关注度较高。
相城经开区(澄阳街道)蠡棠森屿于今年4月底开盘,凭借6.3亿元的热销战绩,刷新市场对高端改善住宅的认知。
另外,相城黄埭等区域也都相继迎来“四代宅”。
今年以来,高铁新城板块再添第四代住宅项目。日前,与本案相距不远的2025-WG-Z04号地块住宅项目规划也得以公示,该项目住宅中的2幢也将打造11F四代住宅产品(奇偶错层挑空)。
相城区在 “第四代住宅” 领域持续发力,以空中庭院、立体绿化、错层设计等创新元素,重新定义居住空间。在相城区,第四代住宅不再只是概念,而是通过一个个兼具功能性与美学价值的高品质社区,切实推动人居环境的升级,其展现出显著的示范效应与引领作用 ,稳稳占据领先地位。
声明:本文由入驻焦点开放平台的作者撰写,除焦点官方账号外,观点仅代表作者本人,不代表焦点立场。
