华夏溪揽星院(叠墅) (售楼处) 首页 - 华夏溪揽星院(叠墅)销售中心 - 价格 - 地址 - 楼盘详情 - 配套 - 电话 - 交房时间 - 配套 - 电话 - 交房时间
扫描到手机,新闻随时看
扫一扫,用手机看文章
更加方便分享给朋友
🌈华夏溪揽星院(叠墅)售楼处电话☎️400-8787-098转接8999(营销中心)
🌈华夏溪揽星院(叠墅)营销中心电话:☎️400-8787-098转8999【营销中心】
🌈温馨提示:拨打400电话,听到嘀声后,输入分机号8999即可!华夏·溪揽星院以超低的1.2的容积率,布局了36幢叠墅产品,没有中叠,仅以上下双叠形制,承载有天有地的生活梦想。
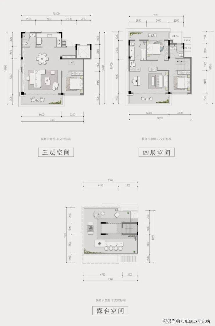
溪揽星院的主力产品,都是“大面宽短进深”超薄户型。
比如,建筑面积约186㎡的边套下叠,地上两层,地下室也是两层。该户型东西长约9.3m,南北进深却只有约9.2m,构成大面宽,短进深的超薄户型,总面宽达到惊人的约18.6米(两层)。
客厅外面是一个独立院子,约6m进深,面积逾近55㎡的庭院。光线从呈270°夹角的全景玻璃肆意涌入,将房子映衬得一片明亮。
约5.4m层高的地下室,夹层设计,办公、健身、瑜伽……随心安排。

建筑面积约186㎡上叠户型,不仅一楼有阳台,二楼还拥有南北双阳台设计,整套上叠足足有3个阳台。屋顶还有一个约80多平的露台,把房子彻底向天空及户外打开。
为迎合杭州江南水乡的气质,溪揽星院外立面偏现代江南风,但同时又会结合当下的主流审美,立面上以斜切45°香槟色木纹铝板和银色金属线条搭配大面积的玻璃幕墙,不仅时尚复古,更能达到居住的更佳视角体验。
🌈华夏溪揽星院(叠墅)售楼处电话☎️400-8787-098转接8999(营销中心)
🌈华夏溪揽星院(叠墅)营销中心电话:☎️400-8787-098转8999【营销中心】
🌈温馨提示:拨打400电话,听到嘀声后,输入分机号8999即可
声明:本文由入驻焦点开放平台的作者撰写,除焦点官方账号外,观点仅代表作者本人,不代表焦点立场。
