楼盘网站:武汉福星惠誉铂雅府(欢迎您)售楼处电话_武汉福星惠誉铂雅府户型-房价/配套
扫描到手机,新闻随时看
扫一扫,用手机看文章
更加方便分享给朋友
武汉福星惠誉铂雅府
售楼处电话:400-678-8669接通后输入2222[售楼中心]
武汉福星惠誉铂雅府售楼处咨询热线:400-678-8669接通后输入2222楼盘详情介绍,位置、小区环境、房价、周边商业配套、户型等楼盘详情!
预约咨询—〢提前联系咨询售楼中心置业顾问〢进行预约登记来访!
预约优惠—〢售楼中心置业顾问为您买房保驾护航〢—匠心钜制恭迎品鉴 !

现在楼市好像有一条热销密码:核心地段+准四代住宅=热销。
1、产品
既然是准四代住宅,那我们先说下最关键的指标:据小编打听,项目阳台进深大约在1.8-2米,优化后得房率约90-95%。
对比目前市场上几个准四代住宅,这个数据应该并不算极致,毕竟城投金沙府阳台进深做到了2.4米,招商武昌序、恺德雲麓最大得房率都超过了100%,做到了“负公摊”。
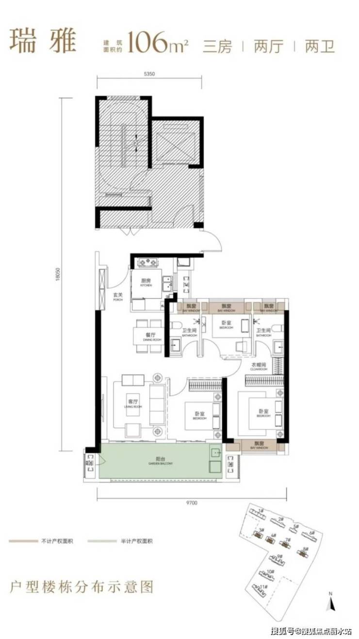
首开的8号楼层高为39层,2梯4户格局,共两个户型,分别是106m²中间户,以及148m²边户。
106平户型如果不按准四代的标准看,放在常规户型中,应该是一个蛮不错的户型,南向开间约9.7米,比较宽绰,而且次卧靠客厅的墙应该是可以敲掉的,可以改造成大横厅格局。
148平户型看上去明显好一些,同样三开间格局,但尺度达到了约12米。内凹的阳台空间后期可直接纳入室内,作为客厅空间使用。另外,项目高层两个户型,主卧均有2个飘窗面积赠送,这个主卧套间的居住尺度应该是比较宽绰的。
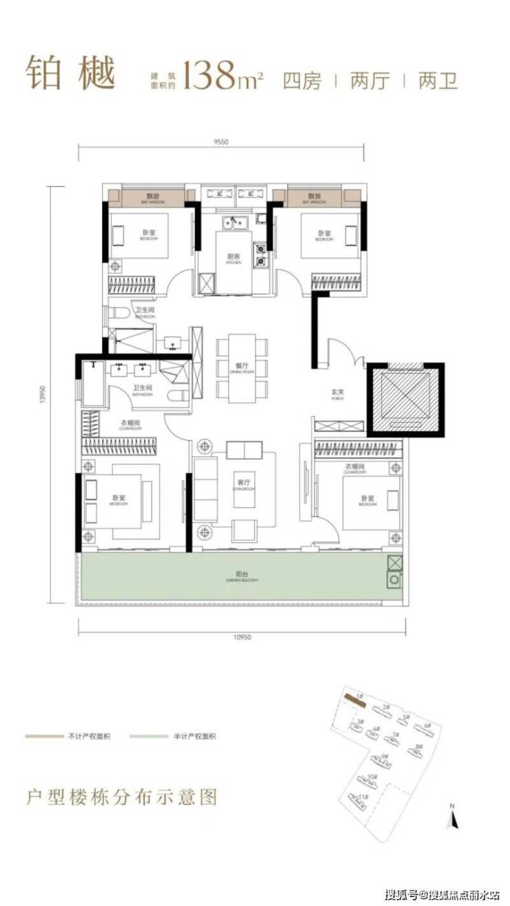
再来看洋房户型,首先是1号楼,共3个单元,1梯2户格局,这栋楼层高为10层,是整个项目层高最低的。
1号楼只有一个户型,这套138平四代户型,是很典型的“四叶草”格局,四个角分别有四间卧室,中间位置留给客餐厅,这样做的好处是减少了走廊面积造成的空间浪费。
这套户型还有一个特点就是阳台是整排阳台,类似的设计在恺德雲麓92平户型上也出现过,这样阳台优化面积不仅可以分配给客厅,也可以给到卧室,后期改造选择性更多。
除了1号楼,首开的2号楼和6号楼比较相似,层高均为14层,2个单元,2梯2户,不同的是2号楼是2套148中间户和2套172边户,6号楼是2套148中间户和一套148平边户、一套172平边户。
这两个户型格局上非常相似,不同的点就是玄关处,148平户型另外开了一扇门,172平多了一个卫生间。
2、地块综合素质高,片区少有低密大体量供应
这个项目就是江岸三眼桥的福星惠誉k13地块,现在是一个新项目,根据规划,这块地占地约7.5万方,建面约35万方,共1600户。
整个项目住宅地块分为2个组团,即将推出的就是北组团,共8栋住宅,4栋洋房+4栋高层。南组团有3栋超高层。
项目楼栋图
南组团的3栋超高层预计明年开,面积段会小一些,预计在110-160平左右。
项目整体容积率约4.55,但北区组团的容积率约2.5。如果单看北组团,应该是汉口核心比较少有的成体量,又比较低密的项目。
毕竟建设大道香港路台北路一带,近两年出的新项目,大都是全盘仅一两栋楼的小盘,另外一边解放公园路的武汉润府,4栋超高层,容积率约5.59。
综合对比,在新房市场,单看地块素质,福星惠誉铂雅府是难得的方正、低密、成体量的供应。
3、配套
①教育稀缺度不如武昌
项目还有一个杀手锏:教育。
这个项目自带九年制学校。据小道消息引进的是育才+六初,而且是本校扩容,不是挂牌分校。这个学校组合,在江岸应该是第一梯队了。
学校目前已经动工了,项目交房时间预计在2026年底,学校预计会比项目交房时间早一些。
其实小编觉得,汉口和武昌内环教育资源对于新房的加持,情况是不同的。
武昌徐东板块好学校一直很稀缺,名校等于稀缺资源。
但江岸区 学校的吸引力,远不如武昌吃香。毕竟长春街+七一的分校遍地开花,甚至都建到了后湖、长江新区。而且今年二中广雅、六中上智、七一华源三大名初重新划片,一下新增了不少对口小区,学区资源进一步被稀释。
不过怎么说呢,学校这个东西,虽然不起决定性作用,只有学区那肯定不行,如果产品+地段等综合因素都很好,再配上好学校,那吸引力就会强很多。
②贴身配套大部分在香港路
项目位于汉口三眼桥路与建设大道交汇处,旁边就是武汉育才小学,这个地方属于汉口内至二环的位置,周边配套相当成熟。
距离项目最近的地铁站,是3/6/7三轨换乘站香港路站,从这里去武广、江汉路,去后湖、去园博园都比较方便。
香港路上还有万象城商圈、宝岛公园、武汉妇幼保健中学、武汉第六医院,这些配套距离项目大约在直线距离1公里内。这些都算项目贴身配套,可以看出这里居住舒适度是比较高的。
4、同样准四代住宅,武昌高层价买汉口洋房
再来分析一下价格,目前项目释放的放风价,高层2.8万,洋房3万。
项目这一片没什么新盘,周边几乎都是老小区,价格体系和新盘不是一个概念。
之前香港路的中寰润府,毛坯小高层价格约在3.3万/平,江岸学区比较好的武汉润府毛坯均价在3.2-3.4万/平。如果铂雅府学区比较稳的话,2.8万-3万的价格,性价比是比较高的。
其实放眼武汉楼市,刚开盘的中海东湖玖章,与铂雅府是比较相似的。
地段上,均位于城市核心,中北路与建设大道都是金融产业主导。
教育上,均引入了九年制名校,但按稀缺度,中海学校的含金量高于铂雅府。
产品上,两个项目虽然都说是准四代,但在四代住宅里排不上前列。
中海东湖玖章折后带装修均价3.15w,125平高层总价门槛差不多400万,铂雅府按放风价算,106平高层300万,138平洋房400万左右。这样看下来,铂雅府的性价比还是不错的。

武汉福星惠誉铂雅府
售楼处电话:400-678-8669接通后输入2222[售楼中心]
武汉福星惠誉铂雅府售楼处咨询热线:400-678-8669接通后输入2222楼盘详情介绍,位置、小区环境、房价、周边商业配套、户型等楼盘详情!
预约咨询—〢提前联系咨询售楼中心置业顾问〢进行预约登记来访!
预约优惠—〢售楼中心置业顾问为您买房保驾护航〢—匠心钜制恭迎品鉴 !
声明:本文由入驻焦点开放平台的作者撰写,除焦点官方账号外,观点仅代表作者本人,不代表焦点立场。
