首页@最新海信璟悦(营销中心)-海信璟悦售楼处电话_首页网站_内附图文解析_楼盘百科详情→24小时热销电话
扫描到手机,新闻随时看
扫一扫,用手机看文章
更加方便分享给朋友
海信璟悦售楼处电话:400-8787-098转分机号5678【售楼处位置】
海信璟悦售楼处电话:400-8787-098转分机号5678【营销中心】
海信璟悦楼盘详情4008787098-转分机号5678(房价,价格,地址,户型图,交通,周边配套,备案价,楼盘详情,售楼处电话,售楼处地址,最新房源,最新价格,最新动态,最新进展等详情)
海信·璟悦,海信地产张村河片区的第二个君悦系产品,依托张村河与金家岭山的自然基底,以新中式园林肌理,融汇现代简约建筑风格,打造海信在崂山片区的又一高端力作。
【项 目 概 况】
项目位置:崂山区张村河
总用地面积:约3.25万㎡
总建筑面积:约14.25万㎡
绿地率:约36%
楼层:16-17F小高层;25F中高层
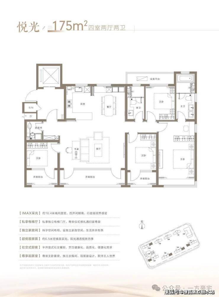
面积:约128㎡,142㎡,175㎡(小高层);198㎡,220㎡(中高层)
总户数:480户
开发商:青岛海信信邦置业有限公司
物业:海信睿海物业
公摊:约21%(未算赠送面积)加上赠送面积约12%
产权:70年
位置:时代张村河,未来水脉智城
1.优教环伺:
项目比邻张村河小学、9班制规划幼儿园、30班制规划中学,优享一站式配套教育。青科大、青大、青岛二中等环伺周边。
2.周边:万象汇商圈、宜家家居、万象汇、毗邻两所三甲级医院,青医附院崂山院区、山东中医药大学附属医院青岛院区(在建中已封顶,距离项目1.3公里,开车2分钟以内到达 )
四、【生态环境】
山河静谧资源,城市谧居臻享
项目对望瑶海路市政城市口袋公园,北侧比邻张村河生态长廊(200米距离),南侧1km金家岭山,山体公园内有特色文化园,景观廊架,植物科普园。东侧可抵达高尔夫球场与崂山风景区。
五、【交通出行】
1.地铁:
距离最近的科苑经七路站(四号线)约800米,距离青岛科大站(11号线)1300米
六、【外观】
流光高精铝板,际会理想峯境,勾勒独具现代感艺术的城市天际线。
七、【园林】
五进园中院 ,璟悦品臻景
项目采用围合式造园,打造1.5万方东方美学生活院落,以中式园林为引,采苏州“拙政园”灵感,东密西疏、移步易景,构建一条中心景观五进归家礼仪,三大会客厅,四大宅间生活美学体验区,九个主题游园,尊享体验归家动线。
八、【会所】
约4000㎡全龄式高定会所
项目营造下沉庭院、集中式运动会所、室内泳池、室内篮球场、羽毛球、普拉提、乒乓球、书吧、茶室、私享厨房、架空层活动区、棋牌休闲、室内儿童乐园等全龄生活场域,安放闲情逸趣,满足业主自用及招待亲友的需求。
九、【服务】
海信专属物业,真心守护全生命周期美好服务
十、【宽宅】
山河定制精妆美学大宅
南向IMAX极目面,打造阔境舒适体验,精研户型方正通透,光幕大横厅设计,为南向宽敞阳台打造广角瞰景视野;科学精研人性化空间布局,打造独立家政空间,系统门窗、悬浮马桶等高标准交付。
海信璟悦售楼处电话:400-8787-098转分机号5678【售楼处位置】
海信璟悦售楼处电话:400-8787-098转分机号5678【营销中心】
海信璟悦楼盘详情4008787098-转分机号5678(房价,价格,地址,户型图,交通,周边配套,备案价,楼盘详情,售楼处电话,售楼处地址,最新房源,最新价格,最新动态,最新进展等详情)
海信璟悦售楼处电话:400-8787-098转分机号5678【售楼处位置】
海信璟悦售楼处电话:400-8787-098转分机号5678【营销中心】
海信璟悦楼盘详情4008787098-转分机号5678(房价,价格,地址,户型图,交通,周边配套,备案价,楼盘详情,售楼处电话,售楼处地址,最新房源,最新价格,最新动态,最新进展等详情)
声明:本文由入驻焦点开放平台的作者撰写,除焦点官方账号外,观点仅代表作者本人,不代表焦点立场。
