太原中国铁建·花语雅颂(售楼处)首页网站-中国铁建·花语雅颂营销中心-中国铁建·花语雅颂欢迎您-楼盘详情-最新价格-户型图-容积率@售楼处
扫描到手机,新闻随时看
扫一扫,用手机看文章
更加方便分享给朋友
✅太原中国铁建·花语雅颂
✅售楼处电话:400-8787-098接通后输入5555【营销中心电话】
✅温馨提示:拨打400-8787-098电话,听到嘀声后,输入分机号5555即可。
✅网上售楼中心〢尊享售楼处优惠服务〢欢迎来电咨询预约案场内部销售人员〢
✅楼盘项目全面介绍,包含楼盘简介、售楼电话、小区图片、区位优势、交通、周边商业配套、户型图等楼盘详情
10月25日,备受瞩目的中国铁建·花语雅颂盛大开盘,现场人潮涌动,热度空前。
开盘当日销售额突破2.2亿元。
在日趋理性的市场环境下,中国铁建·花语雅颂何以能逆势而上,成为一个“现象级”的存在?
答案,藏在项目每一处精心打磨的价值里。从 77 载央企的责任担当,到综改区的时代风口,再到宋式园林的诗意栖居。
中国铁建·花语雅颂以 “全维度价值闭环”,回应了太原人对 “理想家” 的所有期待。

品牌势能:
从“共和国长子”到“美好生活服务商”
热销的背后,是品牌的力量。
中国铁建,前身为1948年成立的中国人民解放军铁道兵,77载功勋铸就“共和国长子”的脊梁。

从人民大会堂到青藏铁路,从港珠澳大桥到卡塔尔卢赛尔球场,中国铁建以“逢山凿路,遇水架桥”的铁军精神,书写了誉满全球的中国基建史诗。
作为国资委批准的16家以房地产为主业的央企之一,中国铁建地产深耕全国49城,打造279座人居作品。
其“花语系”产品线,已在全国布局61盘,斩获“广厦奖”等26项行业顶级荣誉,荣膺2023年“全国十大品质美宅产品系”。
中国铁建·花语雅颂,正是这一高端产品系在太原的进阶之作。它不仅承袭铁建“诚信、创新永恒,精品、人品同在”的价值观,更以“国匠精工”回应时代对“好房子”的深层期待。

区位价值:
立足“南移”主轴,拥抱综改区时代红利
地段,是不动产永恒的底层逻辑。
如果说品牌是品质的基石,那么区位便是价值的引擎。
中国铁建·花语雅颂之所以能引爆市场,其对城市发展脉络的精准把握,是至关重要的一环。

山西转型综合改革示范区(简称“综改区”),是经国务院批复的国家级战略平台,是山西破解资源依赖、培育新质生产力、实现经济转型的核心引擎。
它并非一个简单的开发区,而是对标上海浦东、苏州工业园区的“改革试验田”和“省级增长极”。
综改区:太原未来的价值高地
中国铁建·花语雅颂正坐落于综改区的核芯地带,北承龙城新区成熟配套,南接未来发展的潇河产业园,西望晋阳湖文旅生态区,东临千亿级产业集群。

项目周边立体交通路网(化章街、通达街;坞城南路、真武路、人民路)与地铁2号线,构筑了通达全城的便捷生活圈。
这里,是产业、人才、资本交汇的价值洼地,是太原迈向国家区域中心城市的关键节点。
选择中国铁建·花语雅颂,便是选择与城市未来同行。
签约名校:为区域未来注入人文底蕴
产城融合的最终指向是“人”。
2025年7月1日,综改区、小店区政府与太原师范学院附属中学正式签约合作办学。
这所被誉为太原初中教育“第二把交椅”的名校,其初中部稳居全市前列,高中部亦是省级示范校。
名校的入驻,不仅是中国铁建·花语雅颂业主子女的福音,更是区域价值兑现的关键一笔,它标志着综改区正从一个产业高地,向一个配套完善、人文气息浓厚的宜居新城加速蝶变。

园林大境:
复刻宋式雅韵,重塑东方栖居
如果说地段是骨架,品牌是血脉,那么园林,便是花语雅颂的灵魂。
宋代,是中国审美的巅峰。中国铁建·花语雅颂以宋式美学为蓝本,打造了一处“一轴一湖三进五园”的东方意境园林。这不仅是对传统的致敬,更是对现代人精神需求的深刻洞察。
一轴贯南北,三进归家仪
园林以一条中轴线统领全局,营造出层层递进的归家仪式感。
一进府门:长约40米的轩朗大门,以现代中式风格呈现,古铜色铝板挑檐与通透玻璃幕墙结合,庄重而不失轻盈。
二进瑞鹤阁:沿中轴北行,便至“瑞鹤阁”。设计灵感源自宋徽宗名画《瑞鹤图》,以团扇形制框景,两侧点缀《千里江山图》意象,将传世国宝化为日常风景。建筑细节处处考究,复刻了《营造法式》中的避风䈋、方格挂䈋、擗帘杆等五大宋韵细节,阁内设茶歇区,可凭栏观水,对坐品茗。

三进湖心亭:行至园林深处,一座立于湖岸的宋式亭榭“湖心亭”成为视觉焦点。歇山九极顶的形制,呼应着宋代建筑的规制,立于亭中,约3400㎡的中央湖景尽收眼底。

一湖润全园,五园藏胜境
面积约3400㎡的中央湖是整个园林的“灵魂之眼”。
它不仅是景观的核心,更是生态与互动的载体。
湖岸遍植樱花、红枫、造型松等25种乔木,营造出四时异景的画卷。
亲水平台、石桥叠水,让居者可以近距离感受“春水碧于天,画船听雨眠”的诗意。
围绕中轴与湖区,巧妙布局了“落客、轴线、湖区、水院、入户”五重园境,从尊贵的迎宾仪式,到雅致的邻里会客厅,再到静谧的私享角落,直至归家途中“一院一景”的温馨。
更值得称道的是,园林中设置了主题器械与自然探索两处儿童活动区、成人健身区及老年活动区,全龄段的关怀让宋式雅韵与现代生活的烟火气完美融合。

户型优势:
以极致空间,回应生活本真
好房子,最终要回归生活本身。
在户型设计上,中国铁建·花语雅颂花语雅颂以“五大生活系统”重构空间逻辑:
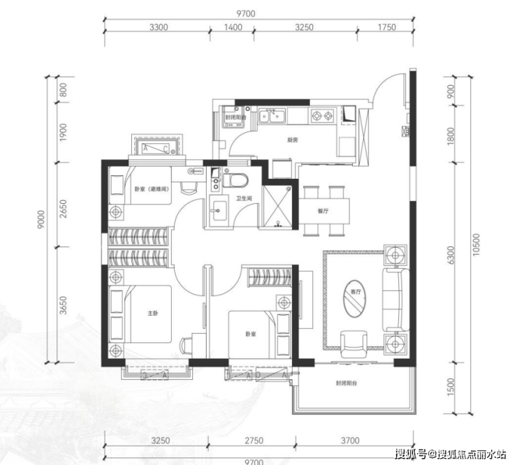
以建面约106㎡三房户型为例,以方正的格局和全明通透的布局取胜。

客餐厅与阳台一体化设计,总进深约7.8米,空间感十足。独立的玄关系统、功能复合的南北双阳台,以及充分考虑家具摆放的卧室尺寸,无不体现出设计师对生活痛点的深刻洞察。
中国铁建·花语雅颂的户型设计,是用“动线优化”解决生活痛点,用“空间通透”提升居住质感,用“复合利用”突破面积限制。它让家不仅是居住的地方,更是安放身心、享受生活的港湾。

一部与城市共进的时代作品
从功勋央企的品牌背书,到立足城市发展主轴的战略远见;从签约名校的人文注入,到复刻宋式美学的园林匠心;再到对居住空间的人性化考量——中国铁建·花语雅颂的热销,是一场价值的完胜。
它不仅是一处居所,更是一部与太原共进的时代作品。它精准地回应了市场对高品质、高价值、高审美人居的渴求。
热销只是序章,一个属于综改区、属于中国铁建·花语雅颂的美好时代,正缓缓拉开帷幕。
✅太原中国铁建·花语雅颂
✅售楼处电话:400-8787-098接通后输入5555【营销中心电话】
✅温馨提示:拨打400-8787-098电话,听到嘀声后,输入分机号5555即可。
✅网上售楼中心〢尊享售楼处优惠服务〢欢迎来电咨询预约案场内部销售人员〢
✅楼盘项目全面介绍,包含楼盘简介、售楼电话、小区图片、区位优势、交通、周边商业配套、户型图等楼盘详情
声明:本文由入驻焦点开放平台的作者撰写,除焦点官方账号外,观点仅代表作者本人,不代表焦点立场。
