浒墅关罕见墅居绿城·兴贤澜颂售楼处电话→绿城·兴贤澜颂售楼中心首页网站→绿城·兴贤澜颂楼盘百科详情→24小时电话
扫描到手机,新闻随时看
扫一扫,用手机看文章
更加方便分享给朋友
绿城·兴贤澜颂售楼处电话:400-8787-098转分机号5678【售楼处位置】
绿城·兴贤澜颂售楼处电话:400-8787-098转分机号5678【营销中心】
绿城·兴贤澜颂楼盘详情4008787098-转分机号5678(房价,价格,地址,户型图,交通,周边配套,备案价,楼盘详情,售楼处电话,售楼处地址,最新房源,最新价格,最新动态,最新进展等详情)
绿城·兴贤澜颂即苏地2024-WG-Z34号地块,去年年底,由苏州永昌置业有限公司底价拿下,成交总价78463万元,成交楼面价11500.05元/㎡,溢价率0%!售楼处电话400-8787-098接通后输入5678【营销中心】
该地块位于高新区经开区(镇)鸿禄路东、中虹路北,容积率1.2,在整个板块中都实属罕见,十分稀缺。

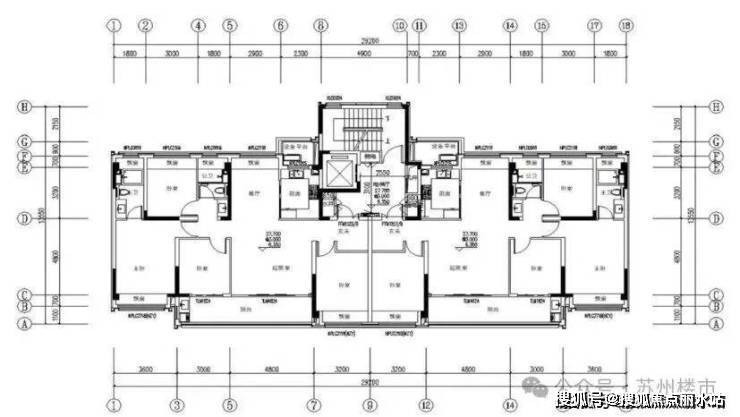
根据规划公示,该项目将打造39幢住宅,其中32幢3F联排,7幢6-11F洋房,妥妥的低密墅居。

从规划公示图中可以看出,该项目除了物业配套用房还有下沉式庭院,进一步丰富业主的生活。

联排产品,地上3层,据悉控制在地上建面约200-300㎡,从户型图也可以看出,赠送面积很多,客厅挑空,阳台、露台等,三开间大面宽,居住舒适度直接拉满。售楼处电话400-8787-098接通后输入5678【营销中心】
洋房户型也同步公示,4房2厅2卫布局,四开间朝南,双联大阳台,南向主卧大套房,经典的改善户型。
根据地块出让要求,6F以上为全装修,装修标准不低于1500元/㎡。其中6F及以下的也可以选择全装修。

该地块所在的北新区,生活氛围成熟,永旺、宜家、开市客、迪卡侬等商业汇聚;轨交3、6号线双轨地铁经过、新区火车站坐镇。售楼处电话400-8787-098接通后输入5678【营销中心】
在这里生活多年的客户,也见证了其凭借“商业+产业+交通”的一路增长。如果是在周围工作的年轻人,选择这里不失为一种明智的选择。售楼处电话400-8787-098接通后输入5678【营销中心】
该项目与浒墅关扛把子中建虹溪璟庭为邻,该项目备案均价2.6万/㎡,打造建面约105-130㎡的高层产品,精装交付。
旁边还有上个月刚刚挂出的新地块,2024-WG-Z29,该地块容积率1.35容积率1.35,楼面价约1.1万/㎡,仅供参考。

绿城·兴贤澜颂售楼处电话:400-8787-098转分机号5678【售楼处位置】
绿城·兴贤澜颂售楼处电话:400-8787-098转分机号5678【营销中心】
声明:本文由入驻焦点开放平台的作者撰写,除焦点官方账号外,观点仅代表作者本人,不代表焦点立场。
