400热线-武汉望雲(售楼处) 首页 - 销售中心 - 环境 - 户型 - 价格 - 地址 - 楼盘详情 - 配套 - 电话 - 交房时间
扫描到手机,新闻随时看
扫一扫,用手机看文章
更加方便分享给朋友
🏡武汉望雲售楼处电话:400-8787-098输入分机号6666【营销中心】
🏡售楼处位置:400-8787-098输入分机号6666【官方电话】
🏡房价特价信息丨优惠政策丨详细解答丨在售房源丨在售户型图丨项目介绍丨周边配套丨VR看房丨楼盘图丨沙盘图丨位置图丨配套图丨售楼处地址丨
项目基本信息
【建筑规划】:3栋
【总套数】:239套
【容积率】:2.76
【梯户比】:2T2
【楼层高度】:28-45层
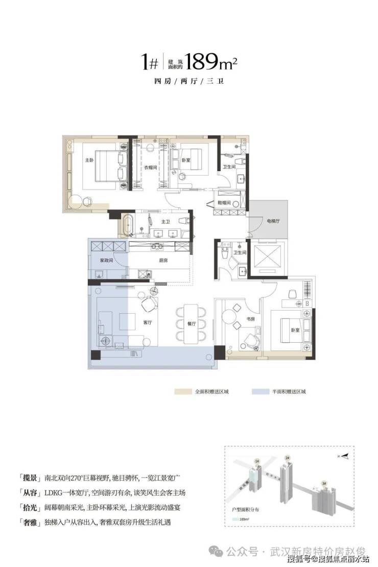
【产品面积段】:建面约149~189㎡迭新之作
【交付标准】:高定臻装
【百年积玉桥 城市繁盛原点】从武昌古城官府运送铜元的“堆金积玉”之地,到“第一纱厂”辉映近代民族工业的荣光,再到2000年后蓝湾俊园、万达公馆、金都汉宫、凤凰城等首批滨江豪宅形成武昌成熟富人区;积玉桥始终是无可争议的武昌滨江百年繁盛原点,从这里望见武汉的历史、现在与未来。
【武昌内环核芯, 黄金三角C位】位于滨江商务区、武昌政务区、古城文化区三大核心区交汇处,不止城市优质资源尽在周边汇聚,更占据整个区域的价值引力中芯。滨江商务区:阿里巴巴、长江沿岸铁路集团、劲牌集团等50余家总部巨头云集,GDP贡献占据武昌区近半壁江山。
省府政务区:湖北省人民政府、湖北省政协、湖北省教育厅等省府机关单位所在地,武汉权力与影响力的永恒坐标。
古城文化区:纵览黄鹤楼、长江大桥、户部巷、昙华林、首义文化区等人文历史风貌。
【全维醇熟底盘,从容生活范本】二轨二桥二隧:双地铁上盖,无缝衔接积玉桥站2号线、5号线;依托长江大桥、长江二桥以及长江隧道和武汉公铁隧道,快速纵横全城。
(示意图)
繁华商圈环伺:武昌万象城、亲橙万象汇、武汉SKP等大型商业体荟萃。
近邻双学府:粮道街中学积玉桥校区(2025年普高率81%,晋升武昌第一梯队)和中华路小学金都校区近距可达。
三甲医疗护航:湖北省人民医院、武汉大学中南医院,湖北省中医院(凤凰门院区)等为健康护航。
滨江生态大境:长江观景第一台、武昌江滩公园、内沙湖公园、沙湖公园等生态资源环拥,与自然大境无界共融。
【华润置地重回积玉桥,敬献城市新趋势作品】从2004年到2025年,21载时光流转,华润置地重回积玉桥。这一次,华润置地选择以更柔软的方式回归——倾听城市的呼吸,理解居者的向往,摒弃浮华堆砌,回归生活本真。在百年积玉桥底蕴之上,打造“从容、温润、无界、自如”的新趋势人居作品。
【以玉为魂,执笔华润高端产品力】天玉立面:以“天青色”陶板与玻璃幕墙交织,灵感源于古玉温润质感,寓意“生活如玉,历久弥新”。
在地化设计:萃取楚文化菱形纹、云纹符号,运用青玉色色彩等元素,打造现代建筑与在地文化共融的人居作品。
光瀑大厅:发光水幕社区大堂,5-6米高奢石幕墙与动态水幕,打造和平大道上的美学地标。
【悬浮之境,空中生长的立体园林】悬浮园境:依托台地式抬高设计,以光影剧场、风聆絮语、水镜浮光、林间雅集、森活秘境五大主题场景,打造多维立体式空中园林,营造全龄段自然体验。
叠水流瀑:重金打造约6米高差立体水幕,演绎“银河落九天”般的视觉震撼。
绿谷云廊:以悬浮之姿轻盈串联各楼座,构筑立体漫游系统。俯仰之间,皆是与自然共生的诗意。
【对标万象城漫巷,打造家门口的松弛慢奢街区】项目自拥约5400㎡商业空间,以武汉万象城漫巷为蓝本,打造一处充满松弛社交氛围的漫步式街区。让从容、温暖、有质感的生活方式,回归日常半径,为百年极玉桥注入“家门口的慢奢生活”。
沉浸景观营造:交互式景观设计,营造自然治愈街区,让街区成为具有探索性的沉浸式体验空间。
高含金量首店:引入生活方式类、社交餐饮类品牌首店、旗舰店,演绎精致生活方式。
专业内容运营:嫁接万象系优质资源,持续策划高影响力事件,打造武汉全新潮流策源地。
丰盛业态规划:
便捷生活:引入润邻市集、精品超市等,满足日常高频消费社交主场:特色餐饮、主题酒馆、精品咖啡馆与书吧,特别好看的店就在家门口,好朋友约在楼下见潮流地标:引入设计师品牌、概念店、奢侈品店,家楼下的潮流地标,高奢消费无需远行
【四大悬浮泛会所,全龄乐活主场】四大主题泛会所均位于二层空间,通透视野,纳景入室,于此邂逅心之所向的品质生活。女王会客厅:从“功能空间”到“精神领地”
打造瑜伽时空、雅集会友、艺展品鉴、棋牌时光等空间,为菁英女性营造一处精神自留地与同频社交圈。
童梦树屋:从“游乐设施”到“成长剧场”
从树屋堡垒到星空蹦床,每一处设计都在启发探索欲,让每个孩子都成为自己冒险故事的主角。元气方舟:从“器械区域”到“能量焕活站”
于此用酣畅淋漓的锻炼唤醒身心,在友好的竞技中结识同好,定制你的专属能量补给站和活力社交圈。
城市书房:从“安静阅读”到“对话自我”
一方家门口的自在天地,尽情遨游书海,享受精神的富足。
【仅239席,每一席皆是稀缺藏品】239席,是华润置地21年城市营造的巅峰答卷,亦是对「堆金积玉」文脉的当代续写。正如美玉不可复制,此般占据正观内环两江的地脉资产,一经收藏,便成绝响。
🏡武汉望雲售楼处电话:400-8787-098输入分机号6666【营销中心】
🏡售楼处位置:400-8787-098输入分机号6666【官方电话】
🏡房价特价信息丨优惠政策丨详细解答丨在售房源丨在售户型图丨项目介绍丨周边配套丨VR看房丨楼盘图丨沙盘图丨位置图丨配套图丨售楼处地址丨
声明:本文由入驻焦点开放平台的作者撰写,除焦点官方账号外,观点仅代表作者本人,不代表焦点立场。
