2025【温州西派澜廷二期江御】项目售楼处电话→地址→户型→价格→楼盘详情→温州西派澜廷二期江御最新销售动态!
扫描到手机,新闻随时看
扫一扫,用手机看文章
更加方便分享给朋友
温州【西派澜廷二期江御】
☎☎售楼处电话:400-8787-098转接4444【售楼中心】
★彡提-前-来-电-预-约-登-记—售楼处1v1销售专业讲解〢一对一热情服务〢
★彡温馨提示:网上售楼中心〢欢迎来电咨询〢预约可享内部优惠〢匠心钜制恭迎品鉴〢
就在12日,位于西部新城的西派澜廷二期江御就要开盘了!这一回,温州市区楼市首次迎来了没有高低配的“纯-四代宅-大盘”。

☎☎售楼处电话:400-8787-098转接4444【售楼中心】
毛坯均价约2万/㎡,实际得房率如何?哪些房源有性价比?一起来看看……
首先,咱们来看看实际得房率——
A实际得房率
以下为本次开盘推售房源实际得房率:

☎☎售楼处电话:400-8787-098转接4444【售楼中心】
▲根据房管网数据测算,未计飘窗和安置设备的设备平台。或有误差,以实际为准
需要说明的是,我们这里的计算,和开发商宣传口径不一样。一是仍然做设备放置使用的设备平台,并不是室内空间的拓展,不算作“赠送面积”;二是飘窗,无论按照何时的容积率计算政策,正儿八经不能敲掉的飘窗都可以设计,也不算“赠送面积”;三是西派澜廷的电梯前室设计与其他项目不同为开放式,“走廊”面积按一半计算,且可被业主利用,算作“赠送面积”。
说完得房率,来看看吃瓜群众最关心的“价格”——
B价格分析

☎☎售楼处电话:400-8787-098转接4444【售楼中心】
▲房源为毛坯交付,普惠93折。开盘期间,部分房源特惠低至91折。仅供参考,以实际和案场为准。
开盘期间,江御澜庭部分房源低至91折,折后均价约为2.14万元/㎡。同面积段下,与西派一期地块的价格差不多
其中:
10#为一线看江楼栋。跃层160方91折惠后(下同)均价约2.4万/㎡;
118-130方平层惠后均价在1.95-2万/㎡,中高楼层看江房源则在2-2.36万/㎡之间;
6#的105方看江视线较弱,惠后均价约1.97万多元/㎡。
☎☎售楼处电话:400-8787-098转接4444【售楼中心】
▲项目北侧江景面实景图示意,高度约70米
这个价格贵吗?咱们就以105方为例,参照隔壁玉锦麟二手房价格进行对比。

☎☎售楼处电话:400-8787-098转接4444【售楼中心】
▲根据房管网数据测算,未计飘窗和安置设备的设备平台。或有误差,以实际为准
玉锦麟商品房零星成交,近期商品房成交价约2.0-2.4万/㎡(装修标准约2195元/㎡),扣除装修标准后,毛坯保守以2万/㎡计,如果以可利用面积折算,西派澜庭·江御的105方还是有一定的价格优势的。
下面来看看项目详情——
C开盘楼幢
本次预售《江御澜庭 (一期)》,预售范围如下(依照地名办标注): 6幢、10幢,建筑面积18382.02平方米 ,152套 。
本项目预计于2026年7月份主体全部结顶,计划于2027年11月份竣工验收,于2027年12月底交付 ,具体以实际情况为准。
D区位分析
西派澜廷·江御 (即C-08地块) 鹿城区双屿街道中央涂牛三角路与望江西路交汇处,即新希望·玉锦麟西侧 。

☎☎售楼处电话:400-8787-098转接4444【售楼中心】
▲地块相对位置示意。/浙江省土地使用权网上交易系统
项目北侧为望江西路、沿江公园及瓯江;
东侧为广润嘉苑、玉锦麟、东瓯大桥等;
南侧为昆仑路(规划)、二中西部新城校区及其附属小学(在建)、鞋都大道、5050购物中心等;
西侧为美特斯邦威大楼、西部新城核心区(规划在建)“茶榕”地标建筑等。
这两年,随着大拆大整、大建大美,城西中央涂一带周边新建商品房密集交付,城市界面和软环境明显改善。
目前不少拆改腾挪出来的地块现状还是空地。主要规划了商办为主的西部新城。买房看规划,最怕的就是“画饼”。从规划效果图上来看,逼格挺高。当前,西部新城核心区多宗商办地块已经出让,部分已在动工。。

☎☎售楼处电话:400-8787-098转接4444【售楼中心】
不过,考虑到当前房地产市场不景气,政府地方债压力较大、财政紧张,加之商办空置率持续走高。而西部新城规划以商办为主,与城东核心区相比没有太多优势,后期实施的进度和力度或存在较大不确定性。
从配套上来看,项目周边舒适的步行距离内,可以到沿江景观带散散步,可以到二中西部新城校区及附属小学(在建,预计2027年投用)接送孩子,也可以到5050购物中心吃喝玩乐。

▲项目周边配套相对位置示意。有误差,供参考,步行车行时间有误差仅供参考
▲二中西部新城效果图示意
▲沿江景观带实景图示意
从区位条件来看,周边临近鞋都大道、翠微大道、瓯江路西延线和东瓯大桥等。距离温州西收费站、BRT公交站也不远。
☎☎售楼处电话:400-8787-098转接4444【售楼中心】
再来看看项目产品——
C布局设计
西派澜庭·江御开发商为中铁建 。可以说,这是温州市区首个没有采用高低配的“四代宅”大盘。
地块容积率2.18,绿地率35%,由11幢住宅组成,其中3幢24层一类高层、8幢16-17层二类高层,南低北高。项目拥有住宅约7.56万方,住宅约662户。

☎☎售楼处电话:400-8787-098转接4444【售楼中心】
为了更大程度利用江景面,西派澜庭·江御楼栋交错布置,二三排部分房源也有一定江景面。

小区外立面为大面积浅色铝板+玻璃幕墙立面,以及局部外墙涂料。


☎☎售楼处电话:400-8787-098转接4444【售楼中心】
项目的公区、园林、架空层及会所,可以查看相关文章,本文不再赘述,可点击链接跳转阅读:
无法想象!市区单价2万/m²左右“四代宅”楼盘,居然也要做“顶壕配置”……

☎☎售楼处电话:400-8787-098转接4444【售楼中心】
D间距和日照
西派澜廷·江御(西侧地块)住宅为南偏西约11.6°左右,建筑实际正南向楼间距会略大于图注的楼间距。

▲西派澜廷楼间距,东侧为一期地块,西侧为二期地块即本案,仅为示意,以销售口径和实际为准
本期预售的6#和10#,日照遮挡格局比较相似,南侧、西南侧均有住宅楼栋形成遮挡,因此6#和10#低楼层的几套房日照条件会比较差,而中高楼层日照整体不错。
下方日照模型仅供参考:模拟2026年1月20日(大寒日)日照时长。



▲累计日照时长。未考虑南侧、西侧等地块建筑影响,可能有误差,仅供参考,下同
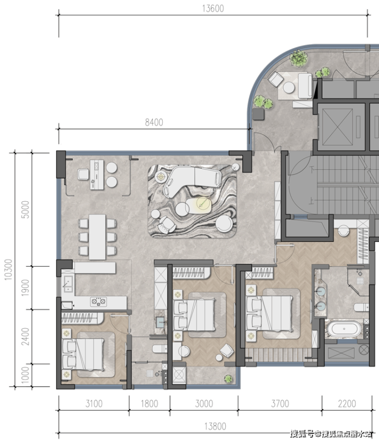
本次开盘,共推出4个户型,分别是平层105方、118方、130方,以及跃层160方。标准层层高约3.15米,架空层挑高约6米。
拟日照,仅供参考,可能存在较大偏差。未考虑南侧、西侧等影响。
E户型分析我们曾详细分析过这四个户型,此处不再赘述,可点击链接跳转阅读:
卧踢!“第四代宅”刚“露脸”,更新迭代又在“发货的路上”……
---平层105方:

☎☎售楼处电话:400-8787-098转接4444【售楼中心】
---平层118方:

☎☎售楼处电话:400-8787-098转接4444【售楼中心】
---平层130方:

☎☎售楼处电话:400-8787-098转接4444【售楼中心】
---跃层160方:

温州【西派澜廷二期江御】
☎☎售楼处电话:400-8787-098转接4444【售楼中心】
★彡提-前-来-电-预-约-登-记—售楼处1v1销售专业讲解〢一对一热情服务〢
★彡温馨提示:网上售楼中心〢欢迎来电咨询〢预约可享内部优惠〢匠心钜制恭迎品鉴〢
声明:本文由入驻焦点开放平台的作者撰写,除焦点官方账号外,观点仅代表作者本人,不代表焦点立场。
