能建青誉府(售楼处) 首页 -能建青誉府销售中心 - 能建青誉府价格 - 地址 - 楼盘详情 - 配套 - 电话 - 交房时间 - 配套 - 电话 - 交房时间
扫描到手机,新闻随时看
扫一扫,用手机看文章
更加方便分享给朋友
🌈能建青誉府售楼处电话☎️400-8787-098转接8999(营销中心)
🌈能建青誉府营销中心电话:☎️400-8787-098转8999【营销中心】
🌈温馨提示:拨打400电话,听到嘀声后,输入分机号8999即可!规划显示,能建青誉府共包含两个地块,共规划了11栋18-33层住宅,两个地块分布在吉林街两侧。目前已拿证推出2、5、3、6、12号楼(其中12号楼为回购不对外),毛坯销售。目前主推2号楼。
该项目整体用地面积约5.7万方,总建面约25.1万方,计容建面约18.5万方,住宅约17.6万方。该项目整体容积率约3.26,绿地率约30%,建筑密度约25%,共包含约1749套房源,地下车位约1839个。
根据平面图来看,该项目两个地块都方正,且楼栋基本都是呈正南北朝向,各楼栋均采用的是连廊结构。两个地块中间被吉林街隔开,相对独立。
5号楼和3号楼位于整个小区的东侧,临近小区东大门和建设二路。6号楼位于C地块(吉林街以南)中央位置,园林景观视野较好。2号楼位于小区北侧,南侧视野不错。
5号楼共25层,2、3号楼32层,均为1个单元,3梯6户,分布户型为建面约100平、116平户型。6号楼为33层,1个单元,2梯4户,分布户型为建面约100平、135平。

建面约100平,三室两厅两卫:此户型位于2、5、3号楼连廊中间户,可达南北通透的效果,户型方正,动静分区。
建面约100平户型样板间:
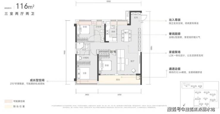
建面约116平,三房两厅两卫:该户型位于2、5、3号楼边户,南北通透且三面采光,户型很方正,动静分区。

建面约135平 四房两厅两卫:6号楼边户,南北通透,四开间朝南且三面采光,动静分区,户型设计不错。
能建青誉府是2023年9月15日被中能建城市投资发展有限公司(能建城发,隶属于中国葛洲坝集团)拿下的P(2023)055号地块,成交楼面价约10500元/平。该地块规划总用地面积为56928.47平方米;计容建筑面积控制在185200平方米以内。
🌈能建青誉府售楼处电话☎️400-8787-098转接8999(营销中心)
🌈能建青誉府营销中心电话:☎️400-8787-098转8999【营销中心】
🌈温馨提示:拨打400电话,听到嘀声后,输入分机号8999即可
声明:本文由入驻焦点开放平台的作者撰写,除焦点官方账号外,观点仅代表作者本人,不代表焦点立场。
