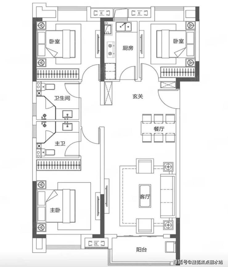
武汉【福星惠誉星誉国际】售楼处电话-价格详情-实时更新-售楼处地址-在售户型
扫描到手机,新闻随时看
扫一扫,用手机看文章
更加方便分享给朋友
武汉【福星惠誉星誉国际】
售楼处电话:400-876-5677 转接 5555售楼中心
来电预约登记——〢尊享Vip一对一专业置业顾问讲解
◆◆来电咨询最新售楼处地址,请提前联系售楼处销售进行预约登记!
◆◆预约优惠—〢售楼中心置业顾问为您买房保驾护航〢—匠心钜制恭迎品鉴
项目配套
交通配套
三横:发展大道、建设大道、解放大道
四纵:新华路、香港路、三眼桥路、黄孝河路
四轨:地铁3、6、7、8号线(唐家墩站、三眼桥站、香港路站、竹叶山站)
多公交:江大路蔡家田、三眼桥路蔡家田、三眼桥路海虹景、三眼桥路花桥街(533、592、706、711等)
商业配套
菱角湖万达、金桥永旺、中百仓储、武商量贩、家乐福、自持23000方三层楼商业街
周边教育
育才幼儿园、英才幼儿园、竹叶山幼儿园
育才一小、育才二小、博雅小学、花桥小学、
解放中学、第六中学、培英中学
医疗资源
武汉市儿童医院、红十字会医院、长航医院
武汉市妇幼医院、武汉市中心医院
武汉市第六医院、湖北中西医结合医院
全方位拥享健康人生,优质医疗资源聚合?
武汉【福星惠誉星誉国际】
售楼处电话:400-876-5677 转接 5555售楼中心
来电预约登记——〢尊享Vip一对一专业置业顾问讲解
◆◆来电咨询最新售楼处地址,请提前联系售楼处销售进行预约登记!
◆◆预约优惠—〢售楼中心置业顾问为您买房保驾护航〢—匠心钜制恭迎品鉴
声明:本文由入驻焦点开放平台的作者撰写,除焦点官方账号外,观点仅代表作者本人,不代表焦点立场。
