南宁中海甲叁號院(售楼处) 首页 -中海甲叁號院 销售中心 - 环境 - 户型 - 价格 - 地址 - 楼盘详情 - 配套 - 电话 - 交房时间 - 配套 - 电话 - 交房时间
扫描到手机,新闻随时看
扫一扫,用手机看文章
更加方便分享给朋友
🏡南宁中海甲叁號院售楼处电话:400-8787-098输入分机号4444【营销中心】
🏡南宁中海甲叁號院售楼处位置:400-8787-098输入分机号4444【官方电话】
🏡房价特价信息丨优惠政策丨详细解答丨在售房源丨在售户型图丨项目介绍丨周边配套丨VR看房丨楼盘图丨沙盘图丨位置图丨配套图丨售楼处地址丨足不出户丨销售1V1讲解 如有问题欢迎来电咨询,可预约销售人员,专业一对一热情服务,让您用专业眼光去买房
占地:约46亩
住宅面积:约5.43万m2
容积率:1.8
绿地率:35%
停车位:约500个
总户数:239户
交付时间:预计2025年3月
3 5 6 9 10栋 25年3月交
1 2 25年6月交
7 8号楼年底交
物业公司:国家一级资质--中海物业
物业费:8元
交付标准:顶复和底复毛坯,平层精装
产品类型:181m2/216m/218m2/275m
基础数据板式大平层及顶底复式
在售:1,2,3,5,6,7,8,9,10#
层高:3.3米
8-11层
验资:200万(看样板间才需)
定金--20万
价格:平层豪装:3.6-4.2万单价
顶复:1200万-2180万起/套(毛坯)
底复:980-1800万套(毛坯)
181户型楼栋是1梯1户,212--280独梯入户
空中别墅产品1250万-2580万总价(三层楼)【还有价格谈判空间】
🏡南宁中海甲叁號院售楼处电话:400-8787-098输入分机号4444【营销中心】
🏡南宁中海甲叁號院售楼处位置:400-8787-098输入分机号4444【官方电话】
【南宁中海甲叁號院】在售房源价格:
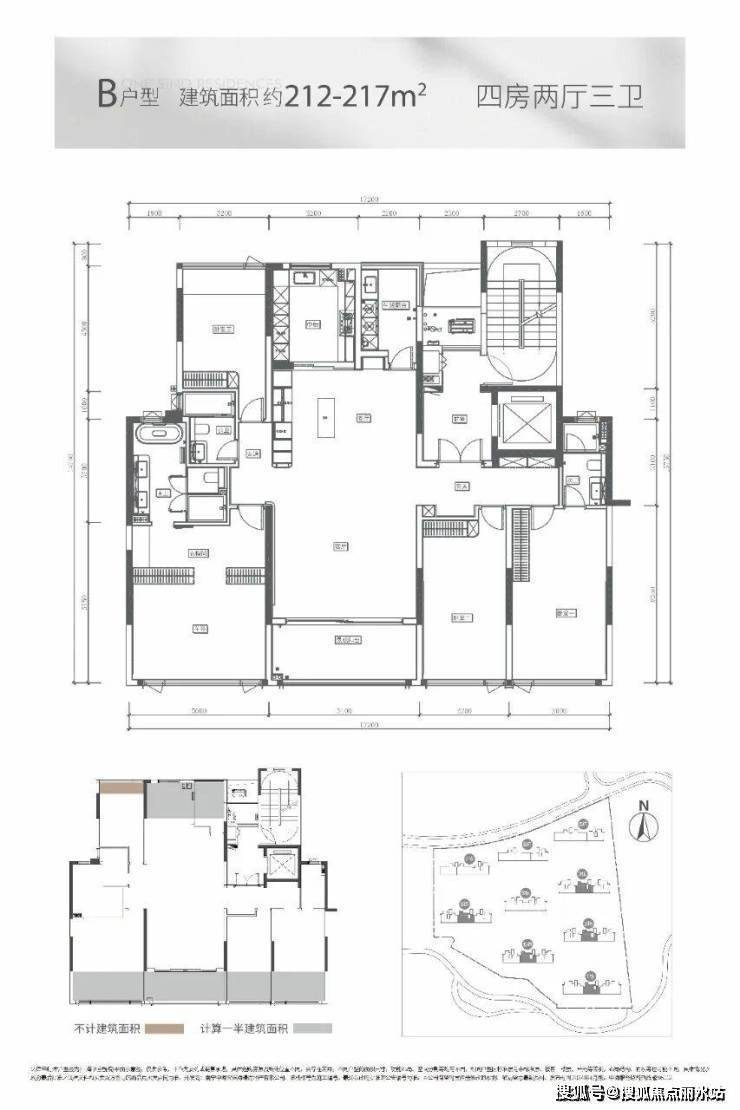
1⃣️B户型 212平——780万-950万总价,单价3.6万-4.3万
2⃣️C户型 218平——740万-930万总价,单价3.6万-4.2万
社区特色:公建化外立面、五星级酒店归家礼遇、度假酒店式会所(恒温泳池、24H健身房、私宴厅、商务会客室、高级咖啡吧等)、双轴八院折叠园林、交互型多功能泛会所
位处凤岭板块豪宅带
埌东公园内270°公园环抱,无界相连
紧邻东盟商务区,2公里范围内华润万象城、东盟盛天
区域价值地、三祺广场、东盟万科里等高端商业体,出繁入静
周围南宁二中、新民中学、天桃实验学校、北大南宁附属实验学校、滨湖路小学等多所名校环伺,坐享全龄优质教育资源
民族大道中轴,多维路网,瞬抵世界
交通价值距离地铁1号线凤岭站约300米,4公里抵达南宁东站
民族大道、凤凰岭路、厢竹大道、那安快速路一横三纵交错
🏡南宁中海甲叁號院售楼处电话:400-8787-098输入分机号4444【营销中心】
🏡南宁中海甲叁號院售楼处位置:400-8787-098输入分机号4444【官方电话】
🏡南宁中海甲叁號院售楼处电话:400-8787-098输入分机号4444【营销中心】
🏡南宁中海甲叁號院售楼处位置:400-8787-098输入分机号4444【官方电话】
🏡房价特价信息丨优惠政策丨详细解答丨在售房源丨在售户型图丨项目介绍丨周边配套丨VR看房丨楼盘图丨沙盘图丨位置图丨配套图丨售楼处地址丨足不出户丨销售1V1讲解 如有问题欢迎来电咨询,可预约销售人员,专业一对一热情服务,让您用专业眼光去买房
声明:本文由入驻焦点开放平台的作者撰写,除焦点官方账号外,观点仅代表作者本人,不代表焦点立场。
