首页@最新长沙中海星樾府(营销中心)-中海星樾府售楼处电话_首页网站_内附图文解析_楼盘百科详情→24小时热销电话
扫描到手机,新闻随时看
扫一扫,用手机看文章
更加方便分享给朋友
✨✨长沙中海星樾府售楼处电话:400-778-0670【售楼处已认证】✨ ➢
✨✨长沙中海星樾府开发商电话:400-778-0670【售楼处已认证】✨ ➢
✨✨长沙中海星樾府营销中心电话:400-778-0670【售楼处已认证】✨ ➢
售楼处电话、售楼处地址、2025最新楼盘动态、售楼处接待时间、房源优惠、
最新房源价格、周边商业交通医院、在售户型、周边学校、交房时间、得房率、公摊面积、小区位置、小区环境、等楼盘详情!

项目分为南北两个地块,北地块距离城市主路及红星商圈仅300m,东侧及南侧享受植物园半径900m,270°环绕景观。东侧正对1200m长景观通廊。设计的第一个重点,就是营造“出则繁华、入则宁静”的极致体验。

所有建筑通过视线分析进行布局,南地块则结合东侧景观轴线及天华湖设计了端厅户型,做到景观资源最大化利用。打造自然无界森居的产品。
利用现状地形东西两侧的高差,设计将整个大区置于台地之上,在南北地块均形成了双首层的归家体验,西侧形成了负一、负二均可以平进的地库,有效解决了以往项目中负二层车库出入不便的痛点。人行归家流线则通过主入口的小区大堂,通过扶梯、电梯进入大区。通过智能化手段增强归家的安全感的同时,抬高的大区景观空间也与市政道路形成了6m的高差,极大强化了小区内部活动空间的私密感。
本案打造了长沙中海首个所见即所得的示范区,在前场设置酒店式入口广场形成城市与建筑的过渡空间,并向两侧延伸出结合商业的半私密景观休息空间。向内连接着售楼处本体,后期将会改造成社区客厅和会所空间。向上连接着归家景观亭,(前期作为样板房的展示空间),利用空间变化和景观穿插形成三重归家礼序。
基于项目森、湖、园的空间要素思考,设计构思一处立体的“湖畔森活圈”,而坡状的场地,造就了“行·望·居·游”般的游园空间趣味,一种“流动”的诗意状态,一座人与空间交互的秘境花园。

拥挤的城市空间,让我们思考“小而精”的设计,既作为一个展示空间,又能成为人们的一处活动空间。由此,我们设计了一个尺度不大,适合一人独享,二人世界,三五好友,甚至六人以上聚会的下午茶花园。生活的日常是本真,晨光夕阳,烟雨朦胧恰是诗意的开始。流动的秘境花园,以一份惬意——致理想的秘境小花园/当代东方的微庭院。

项目临街面宽达238米,如一幅山水长卷,带给往来的车马与人景致般的昭示感,设计将景观建构为透明叠合的平面,剧场式无边界空间布局是一场流动的诗意,重叠时间与空间,建构交互场景,营造“透明性(Transparency)”城市界面。
独特的对称式空间矩阵,纵横的线条,简化周边环境相对“混乱”的复杂性,而镜面水景的延伸感,竖向延展了场地的视域,带给人丰富的层次感,纵深感。

纵向的留白,让主入口带着静谧氛围,冷调的铺装与建筑大面积玻璃墙,构成一幅承载诗意日常的景框,天光云影,青山远黛,人来人往,成为共同描绘框景的灵魂“画师”。

通过主入口镜面水景竖向延展场地视域,又将景观、建筑融为一体。形成丰富的空间层次。

在公共之外,是属于私域的林下休闲右侧花园旨在塑造“生活小剧场”独自沉思、林下对弈、三五小聚提供了交互型健康社区的活动场地。长条状白色的植物浮岛,带来漂浮小花园的视觉感,营造简笔画般的韵味。场地营造诗意的同时,更重要的是诗化居者的精神空间。

建筑立面延续景观空间,以“展卷”为概念,打造60m延展面的一幅华美长卷。整体展示面以城市客厅为中心,两侧设置部分商铺,同时向外伸展出两片极具展示性的U玻景墙,增加展示界面的长度,整体长度达到了63m,打造出了超尺度界面的社区主入口。

由酒店式落客区缓缓步入整个中轴区域,将能近距离感受到大尺度的展示面的冲击力,整体石材框架配合着两侧的u型玻璃和中间晶莹剔透似的城市客厅,这将赋予它最具庄严,高贵的气质。

当踏上通过城市客厅由归家亭开启的归家之路,让人在无界的空间中感受入则宁静出则繁华的居住体验。挑檐的运用模糊了建筑与自然的界限,米黄色石材的温度拉近了人和建筑的距离,这一刻,建筑、自然、人和谐共生。
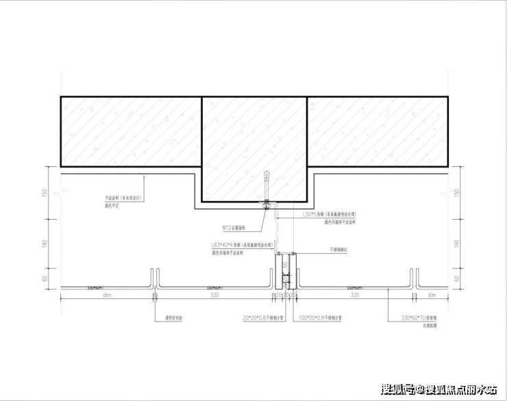
建筑立面采用蜂窝不锈钢板+泥客石的材料。设计对幕墙节点反复推敲,为了实现简洁、一体化的立面效果,所有石材及不锈钢板均采用密拼的方式。因不锈钢面板尺寸较大,为了保证平整度设计与工程充分拉通,尝试多次工艺做法后,最终采用钢骨架+蜂窝不锈钢(2.0mm面层+20mm铝蜂窝+1.5mm镀锌铁皮背衬)的构造做法。
建筑入口吊顶天花板采用密拼2mm厚拉丝不锈钢板钢,左右采用宽缝20mm,并间隔设置灯带,室内吊顶与挑檐吊顶做齐,增加整体性,延续纵深感,使立面更挺拔、更现代,打造精品酒店大堂的既视感。

两旁的功能用房整面采用20mm不锈钢方管格栅装饰,背板采用2mm厚不锈钢板,达到弱化两边入口突出售楼处主入口,可谓是低调的奢华。
两侧采用u型玻璃丰富了建筑立面的纹理,内侧设置灯光让建筑在夜晚显得温暖、柔软,契合归家大堂的功能属性。
整个展示界面以石材造型框收边,整体造型一丝不苟。
二层亭子采用钢结构,正面檐口出挑近2700,变截面的剖面做法使檐口尺寸最小化,型材收边提升建筑的整体品质,兼顾颜值的同时也为业主提供了一个遮风挡雨的檐空间。
室内空间以“享境”为概念,形成进一步的空间延伸。通过构建一个和自然连接的空间,展现未来生活的私享与仪式感,尊享与奢华隐匿于林中,为都市精英打造景观城市的高品质生活方式:森林奢居。

6米高的前厅为室内拉开了“奢居”的序幕,红洞石与金属的结合使空间更加富有层次与品质感。室内整体运用深色材质营造静谧的空间氛围,使人更加沉浸的享受与放松。在内部空间中,始终遵循模糊边界的设计理念,通过大面积玻璃幕墙与开放的墙体形成室内与室外相互共同,强化空间的联动性与趣味性。
接待前厅采用特殊肌理的红洞石和深色皮革组合拼接,材料叠用经过灯光过滤与折射下增添了几分精致感,整个空间营造出精品酒店式城市会客厅的时尚气质。

设计师希望构建一个和自然连接的空间,展现未来生活的私享与仪式感,大到艺术装置、 绿植花艺、 小到精致的饰品点缀;尊享与奢华隐匿于林中,为都市精英打造景观城市的高品质生活方式:森林奢居。
它串联起理性空间和感性认知,立足当下,敬畏自然,更指引我们追寻自然健康的奢居环境。

书吧区结合水吧台 将繁华引入林边生活,通过幽静隐市的仪式体验,唤醒人们对自然的向往与追求。
而沙盘区通过博物馆形式的天窗设计将自然光线引入室内,斑驳的光影模拟阳光射入森林之中的感受,将沙盘至于地面之上,站在沙盘旁边,犹如走入植物园的景色之中。实现与森林景观的交互共融,让自然扎根生活。

森林般的生机盎然在空间各个角度互相渗透,现代、品质与未来的深度思考,启发着空间中有行为关系的人与空间产生情感共鸣,开启对未来生活的理解与想像,空间场域历经时间的洗礼而愈发纯粹,“森林奢居”将如此定义。



✨✨长沙中海星樾府售楼处电话:400-778-0670【售楼处已认证】✨ ➢
✨✨长沙中海星樾府开发商电话:400-778-0670【售楼处已认证】✨ ➢
✨✨长沙中海星樾府营销中心电话:400-778-0670【售楼处已认证】✨ ➢
售楼处电话、售楼处地址、2025最新楼盘动态、售楼处接待时间、房源优惠、
最新房源价格、周边商业交通医院、在售户型、周边学校、交房时间、得房率、公摊面积、小区位置、小区环境、等楼盘详情!
声明:本文由入驻焦点开放平台的作者撰写,除焦点官方账号外,观点仅代表作者本人,不代表焦点立场。
