苏州龙湖东吴原著售楼处电话→苏州龙湖东吴原著24小时电话→苏州龙湖东吴原著2025最新房价→苏州龙湖东吴原著楼盘百科详情
扫描到手机,新闻随时看
扫一扫,用手机看文章
更加方便分享给朋友
售楼处电话:400-8787-098转分机号5678【售楼处位置】
售楼处电话:400-8787-098转分机号5678【营销中心】
楼盘详情4008787098-转分机号5678(房价,价格,地址,户型图,交通,周边配套,备案价,楼盘详情,售楼处电话,售楼处地址,最新房源,最新价格,最新动态,最新进展等详情)
售楼处电话:400-8787-098转分机号5678【售楼处位置】
售楼处电话:400-8787-098转分机号5678【营销中心】
户型面积段首次曝光,联排约305㎡,叠加约210-220㎡,洋房约145-189㎡。
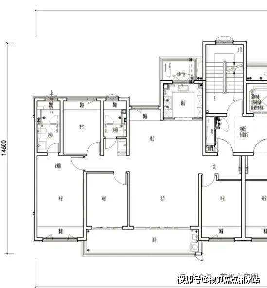
目前仅流出一款洋房户型,精装交付,装标不低于3000元/㎡。
户型如下,1梯2户,约14.4米南向面宽,客厅及南次卧外接双联阳台,餐厅带飘窗,三房朝南,主卧套房设计,全屋多飘窗。
5号楼叠墅二层平面图如下,客厅部分挑高,带露台,层高很优秀,首层高3.3米,二层高3.15米。
售楼处电话:400-8787-098转分机号5678【售楼处位置】
售楼处电话:400-8787-098转分机号5678【营销中心】
龙湖,1993年始于重庆,2008年在北京皇家园林颐和园旁打造了第一座原著院墅——龙湖·颐和原著。
0.89容积率,91栋纯独栋,至今仍是京城顶豪。
在苏州主城核心板块,龙湖至今仅落地了一座原著系,即龙湖狮山原著。交付7年,依旧维护得井井有条。


售楼处电话:400-8787-098转分机号5678【售楼处位置】
售楼处电话:400-8787-098转分机号5678【营销中心】
楼盘详情4008787098-转分机号5678(房价,价格,地址,户型图,交通,周边配套,备案价,楼盘详情,售楼处电话,售楼处地址,最新房源,最新价格,最新动态,最新进展等详情)
声明:本文由入驻焦点开放平台的作者撰写,除焦点官方账号外,观点仅代表作者本人,不代表焦点立场。
