2025最新网站武汉【武汉城建·承宁府】售楼处欢迎您|楼盘详情-样板间/价格/户型-停车位-容积率-小区环境-售楼处地址-定位 -【预约电话】
扫描到手机,新闻随时看
扫一扫,用手机看文章
更加方便分享给朋友
武汉(城建·承宁府)
售楼中心24小时电话:400-8787-098转接5555。
致电售楼处了解更多信息,安全通话隐藏真实号码,请放心使用
网上售楼中心——欢迎来电咨询〢——匠心钜制恭迎品鉴!
武汉的利济北路,因为靠近汉正街,自古以来一直都是武汉最繁忙的地段之一。作为寸土寸金的汉口内环核心区域,突然出现了一个容积率仅有 2.5 左右的低密度小高层住宅项目,关键还是高得房率的四代宅,今天我们就一起来揭开它神秘的面纱,它就是--武汉城建·承宁府

武汉城建承宁府是武汉城建&硚口区国资在2024年12月20日竞得的P(2024)182号地块,成交总价121900万元,楼面价约15030.8元/m²。开发商武汉市硚口区利北城市更新投资有限公司由武汉城市更新投资有限公司(武汉城建)占股70%,武汉市硚口城市更新发展(硚口区国资)有限公司占股30%。
项目基础信息
project basic information
01
【开 发 商】:武汉市硚口区利北城市更新投资有限公司
【项目区位】:武汉硚口区武胜路与京汉大道交汇处
【面 积】:建面约115㎡、125m²、143m²、169㎡
【楼 层】:6~32 层洋房、小高层
【装 修】:精装修
【产 权】:70 年
【梯 户 比】:2 梯 2 户
【容 积 率】:约 2.5
【车位配比】:1:1.09
【得 房 率】:约98% 左右
【地 铁】:轻轨一号线利济北路站
【教 育】:体育馆小学、武汉市第六十四中学
【医 疗】:武汉市第一医院、武汉市第四医院


根据规划方案显示,武汉城建承宁府占地面积约3.24万平,总建面约11.2万平,住宅建面约7.4万平,容积率约2.5,共计546套房源,共计593个机动车位,车位配比约1:1.09。项目总计 7 栋住宅,预计2025年9月中旬首次开盘1号楼115-125m²带装修房源,共76套,装修标准4000元/m²,1号楼共21层,2梯2户。预计2025年10月加推7号楼125-143m²带装修房源,7号楼共108套。7号楼共28层,2梯2户。目前承宁府置业顾问透露放风价是30000元/m²,带4000元/m²的装修标准。
户型赏析
Housing Units
02
拾 光丨115m² 三房两厅两卫
该户型位于1号楼的两端边户,3个卧室朝南,餐客厅一体全景舱设计,客厅为北、西(或东)两面采光,带独立电梯前室。三房设计满足家庭居住需求,双卫(公卫、主卧卫 )提升使用便利性,避免早晚洗漱等场景拥挤;厨房靠近入户,方便买菜归家后放置物品、处理食材;设设备平台,可灵活利用,如放置外机等,不占用室内空间。有玄关过渡空间,保障室内隐私,也可做收纳;卧室带一定收纳空间提升储物能力,让居住更整洁。
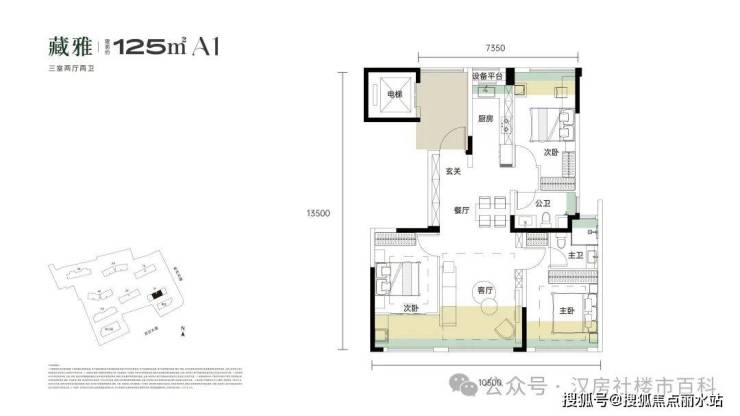
藏 雅丨125m² 三房两厅两卫
该户型位于1号楼的单元拼接处夹边户,独立电梯厅入户,4个主要空间均带阳台+花池优化面积。客餐厅一体化,衔接厨房,形成连贯开阔的公共活动区,增强空间通透感,方便家人交流互动,宴请宾客时也更显大气 。卧室等休息区与客餐厅、厨房等活动区相对分离,休息时受干扰小,保障居住私密性与静谧性 。多空间有采光面,利于自然光线引入,让室内明亮;户型布局相对规整,空气流通路径顺畅,通风效果较好,能保持室内空气清新。
售楼处电话:400-8787-098转接5555。
居住环境品质
Living Environment Quality
03
公区配套环境展示
府进制 隐逸园
四进归家,府藏乾坤:
· 恢弘门庭形制: 约90米门庭景墙,酒店式环岛落客区,媲美国宾礼遇
· 国风归家礼序: 礼承东方世家行列式布局,享无界视野,寓意藏风聚气、福泽绵长
· 全维空间雅境: 地面全楼栋连廊覆盖、地下中央车站归家系统,步履所至皆成诗行
· 全明私梯入户: 区域首创全明电梯厅,独梯入户尊享私密,缔造府邸级入户仪式

人文境 聚圈层
独创会所,高知圈层的社交领地
区域首个下沉式会所,内设顶级私宴厅、标准泳池、健身房、瑜伽室,以东方禅意为魂,打造繁华深处的隐世之地,将生活艺术升华至全新境界。


潮奢商街,城市家庭的高阶烟火
社区艺术商业街区、街坊交流外摆空间,为城市精英呈现一处既能满足高端消费需求,又可享受邻里温情的高品质栖居地。


游园韵 藏浓荫
东方禅境,大隐于市:
霓虹深处辟一方静界,曲水连翠微,叠石引清泉,下沉庭院藏纳天地气韵。
雅集共生,人文礼序:草坪剧场雅聚时光,星空穹幕映光影诗篇,专属宠物天地,礼遇名宠圈层。
高品位 全精装
为你定制,一线大牌的奢装样本
匠心打造全屋臻装体系,甄选国际一线品牌,将新风系统、空调、地暖、智能家居等尖端科技完美融合,重新定义当代奢居典范,进阶生活享受。


售楼处电话:400-8787-098转接5555。
周边配套
Peripheral Matching
04
交通配套
🚄枢纽归心,一府点睛武汉
傲居百年经纬的黄金交点,际会风云,所向皆从容。
· 1大十字枢纽丨航空路立交纵横汉口中心
· 2个地铁站点丨约200米至1号线利济北路站、约800米至2号线中山公园站
· 3条干道交汇丨两横:京汉大道/解放大道&一纵:利济北路
生活配套
🛍潮流向心,一府奢藏世界
高净值人群恒藏,成就武汉独树一帜的10分钟高奢生活圈。
· 约100m至武汉K11/约300m至武汉国际广场/约400m至恒隆广场
· 步达鼎奢商圈,实现下楼即入世界橱窗的时尚生活
医疗配套
🏥护佑于心,一府守护健康
见证时光的建筑,不止被珍藏,更被赋予温暖生命力。
· 约400米至同济医院/约1000米至协和医院
· 比邻第一医院/第三人民医院/第四医院,近享华中&武汉三甲医疗
教育配套
🏫优教育心,一府涵养学识
不可复制的文化精神资产,凝炼汉口百年醇厚学养。
· 3所幼儿园/6所小学/7所初级中学/6所高级中学/1所大学
· 从基础教育到高等学府无缝衔接,铺设精英成长之路
景观配套
⛲浓荫藏心,一府静取隐逸
占据汉口未被惊扰的静谧,演绎树宅相守的隐贵生活。
· 约600米至中山公园/周边邻近硚口公园
· 体验国广旁“漫步自然式”生态栖居
综合评价
Comprehensive Assessment
05
优 势
核心地段:处于汉口内环硚口核心区域,地段优势明显,周边发展成熟,生活氛围浓厚。
商业配套:临近武广、恒隆、K11 等大型商业体,约 300 米步达国广商圈,吃喝玩乐购一站式满足,生活便利性极高 。
交通出行:靠近地铁 1 号线利济北路站(约 200 米 ),周边还有多个公交站,且位于内环,紧邻京汉大道,自驾出行也能高效通勤,纵横全城。
开发商品牌:由武汉城建集团携手硚口城市更新集团打造,武汉城建是全国知名房企,品牌实力强,口碑佳,工程质量和后期服务相对有保障。
低容积率:容积率仅 2.5,在内环区域较为稀缺,居住密度相对较低,居住舒适性高
准四代住宅:主打 “准四代产品”,相比周边三代住宅,在建筑设计(如绿化率提升、公共空间优化等)上可能更具优势。
高得房率:部分户型优化后得房率约 95 - 98% ,在市场上较有竞争力,实际使用空间更大。
户型设计:户型方正,空间利用率高,浪费空间少;部分户型(如建面约 115㎡户型 )设置 270° 全景舱,景观视野佳;且动静分区、干湿分离,布局较为合理。
劣 势
噪音影响:南侧紧邻地铁 1 号线高架及京汉大道立交,车流量大,可能会对部分楼栋(如 1 号楼 )的住户产生噪音干扰,影响居住舒适度。
教育资源:目前对口小学为体育馆小学、红里村小学,属于普通学校,教育资源在区域内相对一般,对于十分看重学区的购房者吸引力不足(最终学区划分以交付后政策为准 )。
楼间距问题:有观点认为小区容积率虽然不算高,但楼间距可能较近,部分楼层的采光、视野会受到一定遮挡,影响居住体验。
武汉(城建·承宁府)
售楼中心24小时电话:400-8787-098转接5555。
致电售楼处了解更多信息,安全通话隐藏真实号码,请放心使用
网上售楼中心——欢迎来电咨询〢——匠心钜制恭迎品鉴!
声明:本文由入驻焦点开放平台的作者撰写,除焦点官方账号外,观点仅代表作者本人,不代表焦点立场。
