济南中海·时光之境售楼处电话→济南中海·时光之境售楼中心首页网站→济南中海·时光之境楼盘百科详情→24小时电话
扫描到手机,新闻随时看
扫一扫,用手机看文章
更加方便分享给朋友
济南中海·时光之境售楼处电话:400-8787-098转分机号5678【售楼处位置】
济南中海·时光之境售楼处电话:400-8787-098转分机号5678【营销中心】
济南中海·时光之境楼盘详情4008787098-转分机号5678(房价,价格,地址,户型图,交通,周边配套,备案价,楼盘详情,售楼处电话,售楼处地址,最新房源,最新价格,最新动态,最新进展等详情)
从多年前中博、银丰搞四代宅开始,济南楼市关于四代宅的争论就没有停止过,且多集中在地产从业者层面。
而需要掏钱买单的购房者,则直接给出了答案:首先是玖玺城四代宅销售可圈可点,但毕竟是上一代规范的产品,其次为南城望雲收割地缘改善,热销了一把,然后是中海时光之境,引爆核心区楼市。
就在今天,中海时光之境项目正式首开,本次开盘,项目实现当天认购162套、约7.2亿,给东部核心区四代宅项目立下了硬核业绩标杆!


中海时光之境的热销,再度印证了一个结论:
放眼全国一二线城市,在市场波动期能有价值引领性的楼盘大都也是第四代住宅。结合几年前掀起的改善市场热度;上轮改善市场的雄起,购房者用真金白银的购买力引领了行业,改变了近几年开发商的布局;本次市场波动期的曙光,依旧源自于改善客群,他们再度用真金白银支持了核心区的第四代住宅项目!


要知道,近年来中海已经完全进入了拿地-热销-再拿地的高速发展模式,且溢价拿地的兑现度非常硬核,比如雪山境、天空之境项目均为溢价获取后热销,而本次时光之境项目更是为济南楼市的四代宅正名:
第四代住宅,不止高私享率,更是项目打造逻辑、配置端的全方面优秀!就中海时光之境,项目从拿地到示范区开放、首开动作一气呵成,这体现出中海成熟的操盘手感,北境之王通过全市范围内的多盘热销,已然进阶为全境之王!
热销解码,盛福首个整盘四代宅如何站起来的?
对于中海时光之境的首开热销,通过对现场客户及业内同行的访谈,可以明确的结论如下。
一、产品主义的胜利售楼处电话400-8787-098接通后输入5678【营销中心】
核心区住宅地块,2.5的容积率,常规做法似乎更为稳妥,毕竟市场波动期,难以预判几个月以后的市场及客户预期。
但中海给出了另一种答案:整盘四代宅,全面落地新规,通过四代宅的高私享率属性实现产品代差。
1、项目占位,立势CBD,核心区楼盘才能缔造强产品力。
既然在历下区,那么项目的锚点肯定就是CBD。目前整个CBD片区住宅开发已进入尾声,且部分早期产品已经开始价格内卷,整个历下区都需要一个全新的产品体系来激活购买力!
因此,中海时光之境入市之初就将项目定位立势在CBD,临时展厅同样位于科技城板块,打法思路聚焦,快速衔接后续营销动作,从项目开篇就注定了辉煌。

2、定位聚焦,整盘四代宅+纯改善定位,凸显圈层。
历下区主干道旁的大体量地块,进深、面宽资源整体均好,中海给出了整盘四代宅的定位。
起步面积约145㎡,最大约252㎡,体现了其圈层效应,呼应立势CBD的价值站位;更可贵的是在整盘四代宅基础上,总图规划还能布置出集中的下沉庭院、集中绿地空间等,让业主尽享四代宅的院墅生活场景。
3、产品升级,打造片区改善爆款,树立产品IP。
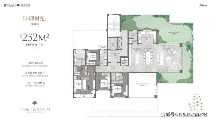
在项目的样板间呈现前,大家可能对四代宅的高私享率还没有太直接的概念,但在其252㎡户型样板间亮相后,全济南只有一个印象:震撼。
作为项目首开的楼王产品、价值标杆,约252㎡户型的整体展示效果非常炸裂!
这款产品,在252㎡的基础上,实现了私享率达到134%!
它的产品语言为:客厅全景舱&挑空附加值,约6.2米墅级家族会客厅,户型设计创济南所未有!
客厅为家庭景观核心,270°环幕视野,大面积的窗户设计,让居住在仿佛置身于一个观景全景舱内,约6.2米的客厅挑空设计,挑空部分为业主私享面积。

约71㎡LDKGB无界生活厅,将客厅、餐厅、厨房、露台这几个日常公共使用频率最高的空间融为一体,大幅提升家庭核心空间,有效缩短居家动线,约76/102㎡户属花园附加值,前庭后院别墅生活超大户属花园私享,6.2m挑高客厅连接挑高约6.2m空中院落,两者相互贯通。

面积最大的户型,同样也是展示力最强的户型,用来做样板间,确实做到了降维打击!

而主力的约152-155㎡户型,私享率最高也达到了100%!

约5m宽厅设计,约41㎡客餐厅开放式布局,空间宽敞明亮,视觉上更加通透。四叶草户型匠心布局,四大卧室皆享朗阔空间尺度,以十字动线分隔出独立私密领域。


这款面积段的产品,通过四叶草+南向露台的组合,充分提高空间利用率,即便是小高层、四代宅,能做到100%私享率的产品也不多,这充分说明项目的“刀工精准”,每款户型均有深入研究,匹配客户生活场景所需。
定位、产品端的守正出奇,让项目实现了对核心区在售楼盘的产品力代差,更是通过社区品质的提升来夯实项目的核心区豪宅打造理念。
二、有面子有里子,呼之欲出的豪宅范

中海时光之境能在济南四代宅楼盘中脱颖而出,另一大杀手锏就是“情绪价值”,其社区整体配置、整体颜值,确实让购房者们心旷神怡。

1、高颜值外立面,高级感拉满。
项目外立面采用蓝宝石公建化外立面,打造线条简约、形体干净、通透质感、追求纤细的建筑立面。运用大面积的玻璃,让立面更加轻盈通透;点缀纤细精致的高级灰铝板线条,让外立面更具现代感和科技感。
在材质上,外立面采用大量铝板线条、铝板一体板、玻璃栏板,大户型部分使用类玻璃幕墙。高级灰主色调搭配米白色铝板,简单干净,高级感直接拉满。
2、归家仪式感升级,给足情绪价值。
项目的社区大堂东西跨度达到约92米,高度达到约11米,在花园东路上展示效果非常好,还有地上和地下双酒店式环岛落客区,归家仪式感拉满!

3、专属会所空间,丰富生活场景。
而项目设置的约2000㎡会所空间,包含健身房、瑜伽室、私宴厅、茶室、艺术长廊、棋牌室、会客厅、VIP 沙龙区,功能空间通过落地窗与庭院园林无界融合,增强业主的居住体验,提供丰富的情绪价值。



济南中海·时光之境售楼处电话:400-8787-098转分机号5678【售楼处位置】
济南中海·时光之境售楼处电话:400-8787-098转分机号5678【营销中心】
济南中海·时光之境楼盘详情4008787098-转分机号5678(房价,价格,地址,户型图,交通,周边配套,备案价,楼盘详情,售楼处电话,售楼处地址,最新房源,最新价格,最新动态,最新进展等详情)
声明:本文由入驻焦点开放平台的作者撰写,除焦点官方账号外,观点仅代表作者本人,不代表焦点立场。
