首页@最新武汉联投长江天元(营销中心)-武汉联投长江天元售楼处电话_首页网站_内附图文解析_楼盘百科详情→24小时热销电话
扫描到手机,新闻随时看
扫一扫,用手机看文章
更加方便分享给朋友
⭐武汉联投·长江天元售楼处电话:400-8787-098转分机号5678【售楼处位置】
⭐武汉联投·长江天元售楼处电话:400-8787-098转分机号5678【营销中心】
⭐武汉联投·长江天元楼盘详情4008787098-转分机号5678(房价,价格,地址,户型图,交通,周边配套,备案价,楼盘详情,售楼处电话,售楼处地址,最新房源,最新价格,最新动态,最新进展等详情)
地段唯一性,是顶级豪宅的第一铁律!长江天元占的就是这个无法复刻的“天元正心”,武昌滨江的心脏地带,价值不言而喻!售楼处电话400-8787-098接通后输入5678【营销中心】
武汉楼市风云激荡,但能配得上“天选”二字的项目,十年难遇!何为“天选”?——老天爷追着喂饭,从出生就站在城市最闪耀的舞台中央,资源、地段、产品皆占顶级配置,生来即巅峰!
联投长江天元,就是武昌滨江的“天选之子”,一出场就带着“天字辈”的顶级光环——天选、天元、天赋、天工、天匠!今天,我们来看看,这“天字五部曲”是如何在长江边奏响武汉豪宅最强音的!
NO.1天选长江
全球最美长江C位,一眼武汉三千年
武昌滨江,长江烫金1公里,这里藏着长江最美的风景C位,一眼看尽武汉的“昨天、今天与明天”——遍观武汉,此为独一无二,唯此一份!售楼处电话400-8787-098接通后输入5678【营销中心】
◉ 尽揽“过去”的江:坐观两江四岸口,长江大桥、龟山电视塔、晴川阁...这些镌刻着武汉历史的地标,是世界看武汉的第一眼。
◉ 对望“现在”的江:汉口百年江滩、万国历史建筑群,对岸的百年风华,是这座城市最有价值的珍藏。
◉ 坐观“未来”的江:明珠豪生、马哥孛罗、外滩7号、武汉天地滨江天际线...脚下流淌的,是武汉最贵、最美的城市未来。售楼处电话400-8787-098接通后输入5678【营销中心】
别人看江是风景,长江天元看江是“历史画卷+财富密码”,武昌滨江的C位,贵!很贵!超级贵!
NO.2天元地段售楼处电话400-8787-098接通后输入5678【营销中心】
中国天元正心,武昌内环滨江无法复刻的唯一
中国版图对折,中心是武汉——自古“群首武汉,中国天元”;武汉版图对折,中心是武昌内环滨江——当之无愧的“武汉天元”;武昌滨江核心(长江大桥与二桥之间)版图再对折,正心之位赫然写着:联投长江天元!
NO.3天赋区域
武汉板块价值TOP1,资源配套“卷”出新高度
武昌滨江,拥有武汉最长的江岸线和最大的滨江开发面积。相比二七滨江的“单薄”,这里堪称“六边形战士”:
图:效果图
世界500强总部地标扎堆:阿里巴巴华中总部、长江电力、绿地606、劲牌总部、华电华中总部......武汉面向世界的封面名片在此集结!
高奢商业顶流荟萃:万象城、龙湖天街、京东MALL旗舰店...徐东、汉街、中南商圈近在咫尺,买买买的天堂!
超级交通枢纽TOD:3桥(长江大桥、二桥、沙湖大桥)、2隧(长江隧道、公铁隧道)、4地铁(2/5/7/8号线),滨江地下空间环路......全维路网,通达全城!
武昌滨江,左手握着长江电力这样的“财神爷”,右手挽着万象城这样的“销金窟”,脚下踩着四通八达的“黄金路网”——这配置,武汉还有谁?!
NO.4天工项目
对飚香港天玺,重新定义武汉豪宅天花板
九龙站上三大豪宅,唯“天玺”封神亚洲。联投长江天元,1:1复刻香港天玺规划精髓,打造:
5万方四代江景豪宅(仅277席!)
35万方世界500强总部地标(长江电力全球总部!)
8000平立体花园式潮奢商业街(自营,对标上海鸿寿坊!)
图:效果图
三位一体,封榜级武汉城市地标综合体横空出世!
【长江电力全球总部】:世界最大水电上市公司总部!手握全球前12大水电站中的5座!未来滨江天际线的绝对封面!
【浮岛艺术园林】:请来5位世界级艺术大师(温德尔·卡斯特、亨利·卢梭、丹尼·洛讷等)灵感加持!五重空间序列,六大情景区,打造超现实主义的“浮岛艺术园林”,让回家变成穿越艺术秘境!
图:效果图
【架空层泛会所】:全楼栋架空层!健身房、亲子乐园、私人会客厅...借鉴顶豪酒店设计,把社交空间玩出奢华新高度,下楼即是高定社交场!
图:效果图
把世界500强总部踩在脚下(字面意思),把艺术大师的灵感种在园里,把酒店式社交搬进架空层——长江天元,你这波操作,让武汉其他豪宅怎么活?!
NO.5天匠品牌
湖北龙头国企+金钥匙服务,实力兑现“天字辈”承诺
联投集团:湖北首家千亿国企!总资产3800亿!中国500强!联投置业位列中国房企百强第29位!2024交付力&客户满意度TOP5!国企实力,稳如泰山!
金钥匙物业:引入国际金钥匙服务体系,全球化物业管家,提供高端定制服务,品质生活有保障!
柠月乐龄中心:社区内配建“新生活康养活力综合体”,低压氧舱、黑科技健康检测、运动疗愈......闭环服务高净值人群健康需求,豪宅也要“卷”健康!
国企背书,是定心丸;金钥匙服务,是尊享感;全龄健康配套,是远见!长江天元,把“天字辈”的里子也夯得实实在在!
图:效果图
终极暴击:四代性能豪宅!超高得房率!仅277席!
图:效果图
根据最新政策(武自然资规发〔2024〕6号),长江天元以四代住宅超高得房率+一线无遮挡瞰江视野,打造武昌滨江首个硬核四代性能豪宅!3栋一线临江大平层,建面约130-240㎡,2梯2户/3梯3户,自此,武汉豪宅分水岭已现!
户型神解析(超高得房率是灵魂!):
【天宸240㎡】:四房三卫,尺度之王,270°环幕视野,主卧套房堪比总统待遇!
图:效果图
【天启180㎡】:四房三卫,LDKB一体化巨厅,双套房设计,功能与面子双赢!
图:效果图
【天穹170㎡】:四房两卫,阔绰横厅衔接超大景观阳台,江景盛宴每日上演!
图:效果图
【天樾140㎡】:四房两卫,巧妙空间利用,功能齐全不显局促,性价比之选!
图:效果图
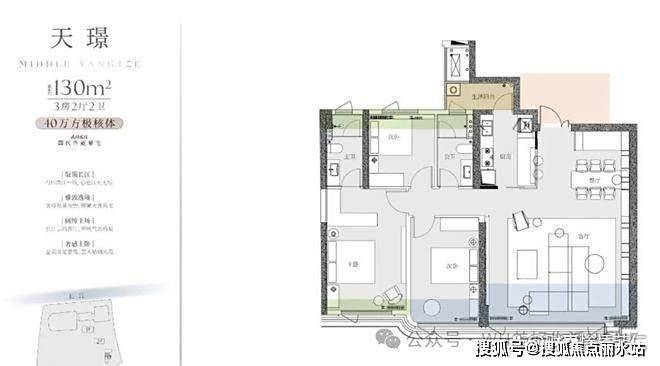
【天璟130㎡】:三房两卫,入门即享四代住宅精髓,小面积也有大格局!
⭐武汉联投·长江天元售楼处电话:400-8787-098转分机号5678【售楼处位置】
⭐武汉联投·长江天元售楼处电话:400-8787-098转分机号5678【营销中心】
⭐武汉联投·长江天元楼盘详情4008787098-转分机号5678(房价,价格,地址,户型图,交通,周边配套,备案价,楼盘详情,售楼处电话,售楼处地址,最新房源,最新价格,最新动态,最新进展等详情)
声明:本文由入驻焦点开放平台的作者撰写,除焦点官方账号外,观点仅代表作者本人,不代表焦点立场。
