首页-太原『万科悦都荟』售楼处电话→太原『万科悦都荟』售楼中心电话→楼盘详情→24小时电话
扫描到手机,新闻随时看
扫一扫,用手机看文章
更加方便分享给朋友
🌈太原『万科悦都荟』:400-8787-098接通后输入9999【售楼处电话】
温馨提示:网上售楼中心〢欢迎来电咨询〢安全通话隐藏真实号码〢
◆来电咨询最新售楼处地址,专属置业顾问详解,请提前联系售楼处销售进行预约登记
 
【项目区位图】
 
【交通篇】从一城门户到一城都心,太原首个同站换乘,高铁、地铁、客运东南站、城市快速路、机场多维交通随心出行。
太原南站,坐享高铁1小时生活圈畅达全省,3小时迅达北京、天津等城市,出站即归家。
距离机场 6 公里,车行约 10 分钟即可到达。
两纵五横路网通达全城,三大城市快速路环绕,瞬接各方。
双地铁交汇:地铁1号线&3号线,将形成南站黄金“十字轴”。
客运东南站:实现火车与汽车的“同站换乘”,开启南站双客运模式。
 
 
【配套篇】
6.5万方城市级商业购物中心印象城,1.2万方万科网红社区商业V盟荟。
 
 
签约太师三附小新里程校区,同时配备1所幼儿园,实现出家门进校门的一站式品质教育
 
山西省第二人民医院(在建)
 
 
【项目售楼部】风雨连廊归家无阻,酒店式归家大堂对标星级酒店,打造当代精英圈层的礼遇空间
 
 
项目园区打造全生命周期园林,为不同年龄人群提供健康舒适的休闲环境。悦都荟容积率约3.0、都荟四季容积率约1.5,兼享繁华与静谧。
 
 
万科悦都荟约87-120㎡全系焕新
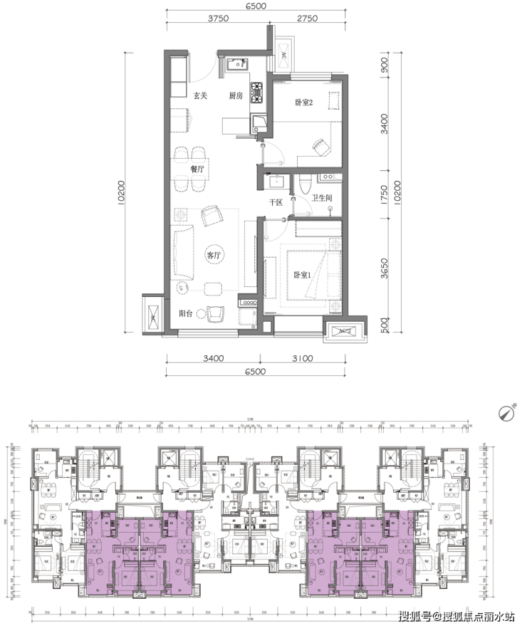
【建面约87㎡ 两室两厅一卫】
南北通透 | 动静分置
主卧方正 | U型厨房
 
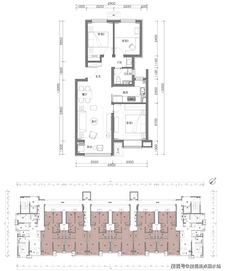
【建面约103㎡三室两厅一卫】
餐客一体 | 主卧方正
明卫设计 | 干湿分离
 
 
 
 
🌈太原『万科悦都荟』:400-8787-098接通后输入9999【售楼处电话】
温馨提示:网上售楼中心〢欢迎来电咨询〢安全通话隐藏真实号码〢
◆来电咨询最新售楼处地址,专属置业顾问详解,请提前联系售楼处销售进行预约登记
声明:本文由入驻焦点开放平台的作者撰写,除焦点官方账号外,观点仅代表作者本人,不代表焦点立场。
 
  
  
 
 
  
  