2025最新网站济南【济南中建·雲啟鳳華】售楼处欢迎您|楼盘详情-样板间/价格/户型-停车位-容积率-小区环境-售楼处地址-定位 -【预约电话】
扫描到手机,新闻随时看
扫一扫,用手机看文章
更加方便分享给朋友
✅济南中建·雲啟鳳華
✅售楼处电话:400-8787-098接通后输入5555【营销中心电话】
✅温馨提示:拨打400-8787-098电话,听到嘀声后,输入分机号5555即可。
✅网上售楼中心〢尊享售楼处优惠服务〢欢迎来电咨询预约案场内部销售人员〢
✅楼盘项目全面介绍,包含楼盘简介、售楼电话、小区图片、区位优势、交通、周边商业配套、户型图等楼盘详情
2025年的济南楼市,真的是冷热不均。
当诸多豪宅楼盘销售不畅时,中建雲啟鳳華以独有的低密、宋风大宅产品力,入市4个月多,已售罄两个地块、另两个地块几近售罄,成为济南改善市场的绝对黑马!
很多人不理解这种现象,然而当下的市场购房者的确是更理性的。
市面上充斥着动辄2.5-3.0高容积率豪宅大平层产品,一点都不稀缺,甚至会变成落后资产。然而像中建雲啟鳳華如此纯低密产品,近十年少有。当下购买独门独院纯三层低密联排,享受天地宽的同时,拥有更多的生活、观景、拓展空间,这才是终极置业的最佳选择!
雲啟鳳華壹號院实景图
1
中建雲啟鳳華的热销的确是天时地利人和的结果,中建·雲啟鳳華位列济南市第一批高品质住宅试点项目,全市共20个项目入选。

雲啟鳳華容积率最低、产品力更惊艳的存在,开盘前的全实景展示,是绝对实力的低密大宅秀场。

中建·雲啟鳳華实景展示的精华所在——宋式山水意境。
园内的景观打造,以近百年古树、名贵树种渲染视觉效果,精选近百年景观造型松、乌桕等名贵树种,地面景观铺装采用高强耐磨石材……每一处用材与搭配,无不体现着中建对于无边际联排的精雕、打磨。
通过松、石、台、廊四大意象,构建起一幅层次丰富的立体山水画卷,实现推窗见景的美好愿景。

实景图
每个地块,均配置有全功能社区会所:
在地上层,融入茶室、邻里中心、亭、服务空间等趋于外向的元素;在地下层,融入健身瑜伽运动、酒廊、私宴等趋于内向的元素。
2
这就是济南中建城市中央低密生活区——以前所未有的发展价值、稀缺的低密生态属性,开启济南未来生活新范式!
济南近十年少有的低密住区,恐怕未来也很难再现。

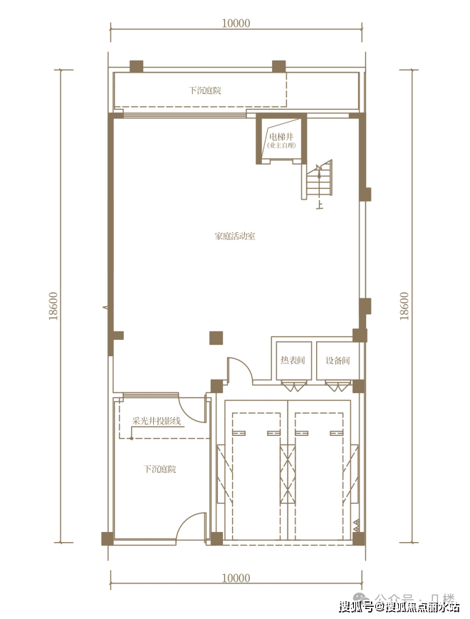
中建·雲啟鳳華入市以来便成为终极置业的首选,前期入市地块基本售罄。新地块捌號院独创地上建面约279-460㎡无边际联排,让追求田园生活的你,拥有天地、院落、露台,还有上百平米的地下拓展空间。
对比前期地块,新地块在诸多方面升级。

中建·雲啟鳳華捌號院,将东方礼序还原,遵循三进制礼序,以“⼀院⼆轴四景九境⼗六巷”为格局,融合“⼀池三⼭”⾃然观,量身打造宋式美学的私家园林。
甄选名贵植株与天然原⽯,展示出宋风大宅的典雅之美。

示意图
遵循三进制礼序,入园门第更恢弘大气,大门跨度22米、高约8米,社区大堂面宽25.6米,整体升级。

打造55米宽的超长入口界面、18米进深的共享落客广场;升级共享前院,两侧为商铺,茶室水吧、休闲座椅、花池水榭等交汇,组成休闲放松区域。

内院宽度由27米增加至40米,有足够的空间打造景观布局。
延续《营造法式》模数制度,采用“七开间”最高民居建筑形制,推敲宋式美学比例,依序通过游廊、中心庭院、下沉庭院、多级巷道进入精致院内。

建筑细部升级:增加悬鱼、屋脊等中式元素,既提升品质感,又富有吉祥寓意。

3
新加推组团除了大门、庭院、下沉会所等公区的升级之外,新地块中对于房子本身,从立面、用材、采光、实用性等各方面均做了升级。
外立面采用满铺花岗岩石材、型材铝板、青瓷冰裂纹釉面陶板(景德镇定制)等专属定制材料,设计波浪造型,更加优雅灵动。

每一套大宅的采光升级,取消连接体,使得建筑本身整体更美观,实现南北通透的全明房型。南向设置落地窗,让每一个房间都有自然通风,全时保持空气清新。
地下设置下沉庭院或采光天井,实现地下全明采光。
如此地上有了更大的采光面,地下实现全明采光的布局。
新产品的空间利用率更高:
地上地下实现户均大于40%的超大户内面积赠送,地上首层3.6米,标准层3.2米,均高于规范3米要求的奢阔层高,巧妙利用高效能保温材料,实现露台与户内的平进平出;
地下设置6米6层高,赠送超值夹层空间。
除此之外,雲啟鳳華新地块还打造了无障碍归家的地下精装车库,层高设置4.8米,高于市面常规项目20%以上。每户在地下入户玄关位置设计可容纳2辆汽车的私人专属车位,实现地上地下双归家动线。

无边际联排的概念源自于对2、3层居住空间的独创升级,卧室空间无梁无边际视觉设计,业主可以将室内空间任意打通、组合,实现空间尺度自由。
这应属于济南低密类产品的首创,对比市面在售产品,改造空间更自由,居住舒适度将得到显著提升。

致敬宋风巅峰美学,建筑立面采用八大要素雕琢精巧造型。
象征祥瑞的“龙头鸱吻”、规格制式高级的山墙“博风板”、呈飞举之势的民宅“挑檐”、寓意吉祥的“悬鱼”、轻盈优美的“交绞造”、毫米细节的“中式阑杆”、厚韵雅致的“花窗”以及层次丰富的“挂落”,共同组成精神需求与功能美感的和谐统一。

4
内有极致的宋风大宅产品力,外有景观乾坤:
双公园环绕,无疑这让低密大宅增色不少。
中建·雲啟鳳華项目南侧紧邻华山-白泉景观廊道,小汉峪河从项目旁边穿流而过。项目拥有华山-白泉景观廊道和小汉峪河景观带两大生态资源,达到“出有美景,归有美宅”的理想生活状态。
现如今景观廊道已经开放,水清、林密,植被郁郁葱葱的,不少居民前来游玩打卡。
中建·雲啟鳳華三维一体交通优势,让改善置业者通勤无忧:
9号地铁线与项目仅有300-500米距离,步行直达,与地铁网络连接,通达全城;
东侧凤凰高架快速路,正在紧密施工,承建方即是中建;再加上奥体中、开源路、工业北等主干道的加持,三维一体立体交通网络,保障业主们的出行便利性。

正是因为产品展示力+生态景观资源+交通优势,让追求低密大宅生活的改善置业者坚定置业中建·雲啟鳳華。
新地块独创新品即将入市,279-460㎡宋风美学高定无边际联排产品,如果你想圆梦有天、有地的院落生活,可到现场感受中建·雲啟鳳華的内外乾坤。
个人观点,供您参考。
✅济南中建·雲啟鳳華
✅售楼处电话:400-8787-098接通后输入5555【营销中心电话】
✅温馨提示:拨打400-8787-098电话,听到嘀声后,输入分机号5555即可。
✅网上售楼中心〢尊享售楼处优惠服务〢欢迎来电咨询预约案场内部销售人员〢
✅楼盘项目全面介绍,包含楼盘简介、售楼电话、小区图片、区位优势、交通、周边商业配套、户型图等楼盘详情
声明:本文由入驻焦点开放平台的作者撰写,除焦点官方账号外,观点仅代表作者本人,不代表焦点立场。
