福州左海·云山宸院售楼处电话→福州左海·云山宸院24小时电话→福州左海·云山宸院2025最新房价→福州左海·云山宸院楼盘百科详情
扫描到手机,新闻随时看
扫一扫,用手机看文章
更加方便分享给朋友
🌈福州左海·云山宸院售楼处电话☎️400-8787-098转接4444(专人接听)
🌈福州左海·云山宸院营销中心电话:☎️400-8787-098转4444【营销中心】
🌈温馨提示:拨打400电话,听到嘀声后,输入分机号4444即可!
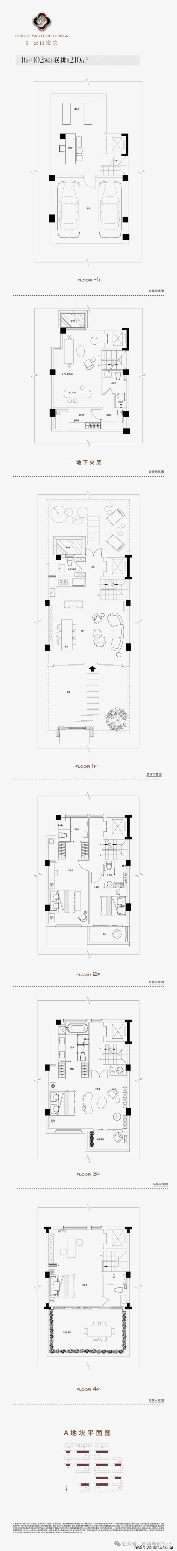
左海·云山宸院
俯仰中国 此云山
约𝟏𝟕𝟎-𝟐𝟐𝟎㎡城中伴山 海派东方静奢院落
ıllıll基础信息ıllıll
占地面积:约40066㎡
总建面:约80465.26㎡
绿化率:约34%
容积率:约1.14
总户数:200户
建面:建面约170-220㎡
位置:福州·晋安区·东三环福建理工大学旁
🌈福州左海·云山宸院售楼处电话☎️400-8787-098转接4444(专人接听)
🌈福州左海·云山宸院营销中心电话:☎️400-8787-098转4444【营销中心】
𝟐𝟐𝟎𝟎年福州的仰望:“左旗右鼓,全闽二绝”“国家级风景名胜区”
𝟏𝟎𝟎𝟎年精神的海拔:以“摩崖石刻”为代表的福州文化资产
𝟏𝟎𝟎年传统别墅区的传承:自开埠以来,福州最早的别墅富人区
主城区8年值此在售院落:限墅令时代下的市场孤品
🌈福州左海·云山宸院售楼处电话☎️400-8787-098转接4444(专人接听)
🌈福州左海·云山宸院营销中心电话:☎️400-8787-098转4444【营销中心】
【生长在主城区繁华1公里的城市院落】
·直线距离东二环广场约2.8km(百度地图直线距离)
·鼓岭国家旅游风景区,晋安湖公园、牛岗山公园金鸡山公园
·福兴经济开发区、晋安三创中心、福州软件园(晋安区)
🌈福州左海·云山宸院售楼处电话☎️400-8787-098转接4444(专人接听)
🌈福州左海·云山宸院营销中心电话:☎️400-8787-098转4444【营销中心】
[约1.14容积率 土地之上的奢侈]
仅为高层产品的1/3土地承载量,建筑谦退于自然,每户私享庭院,留白出“观天、观地、观物、观己” 的东方意境。
[有天有地 私享志趣空间]
一层一代,家族奢居;志趣地下室拓展生活维度;独立庭院有天有地,重塑当代名仕精神场域。
🌈福州左海·云山宸院售楼处电话☎️400-8787-098转接4444(专人接听)
🌈福州左海·云山宸院营销中心电话:☎️400-8787-098转4444【营销中心】
[海派奢会所 名仕的雅集圣地]
福州值此自带酒店式会所的院落,海派摩登与福州的儒雅气度,名流沙龙、艺术策展、私宴雅集,当代世家的精神坐标。
[世家礼序 6重精神场域]
🌈福州左海·云山宸院售楼处电话☎️400-8787-098转接4444(专人接听)
🌈福州左海·云山宸院营销中心电话:☎️400-8787-098转4444【营销中心】
携手CCD创始人、董事长郑忠、J&A杰恩设计创始人、总设计师姜峰,两位世界大师,复刻外滩的海派奢华与优雅的同时,将福州三坊七巷的坊巷肌理转化为现代空间语言。
🌈福州左海·云山宸院售楼处电话☎️400-8787-098转接4444(专人接听)
🌈福州左海·云山宸院营销中心电话:☎️400-8787-098转4444【营销中心】
循迹万里山海 定制大地肌理-「潘多拉/雪山飞狐」 源自宝石之国巴西
遍寻全球奢物 同频世界品味-「迈凯伦灰/布鲁诺灰」 源自奢侈品王国意大利
踏访名川大山 峯藏东方典雅-「七彩石」源自中国的艺术瑰宝
🌈福州左海·云山宸院售楼处电话☎️400-8787-098转接4444(专人接听)
🌈福州左海·云山宸院营销中心电话:☎️400-8787-098转4444【营销中心】
千年“人”字型屋顶,当暴雨倾泻时,隐喻“水归堂,财归库”的东方智慧。烈日当空时,深挑的檐廊裁出阴翳,践行“天人共济”的营城哲思。是福州写给天空的楷书,屋顶之上,是东方的脊梁;屋檐之下,是心灵的归处。
🌈福州左海·云山宸院售楼处电话☎️400-8787-098转接4444(专人接听)
🌈福州左海·云山宸院营销中心电话:☎️400-8787-098转4444【营销中心】
🌈福州左海·云山宸院售楼处电话☎️400-8787-098转接4444(专人接听)
🌈福州左海·云山宸院营销中心电话:☎️400-8787-098转4444【营销中心】
🌈温馨提示:拨打400电话,听到嘀声后,输入分机号4444即可!
声明:本文由入驻焦点开放平台的作者撰写,除焦点官方账号外,观点仅代表作者本人,不代表焦点立场。
