2025【太原金地未来云著】项目售楼处电话→地址→户型→价格→楼盘详情→太原金地未来云著最新销售动态!
扫描到手机,新闻随时看
扫一扫,用手机看文章
更加方便分享给朋友
太原金地未来云著
☎☎售楼处电话:400-8787-098转接4444【售楼中心】
★彡提-前-来-电-预-约-登-记—售楼处1v1销售专业讲解〢一对一热情服务〢
★彡温馨提示:网上售楼中心〢欢迎来电咨询〢预约可享内部优惠〢匠心钜制恭迎品鉴〢

西中环,八千多,准现房,有配套,刚改首选,太原金地未来云著
金地未来云著小区,位于太原西中环和兴华街交汇处,目前实景准现房状态,最近将陆续交房,户型从88平到140平,八千多一平,户型设计还不错。实景园林已经开放,小区绿化环境设计很好,地理位置优越,交通出行便捷。
金地未来云著,小区一共八栋高层住宅楼,开发商实力挺强,施工基本全部完成了,已达到交付标准了。小区周边交通,生活配套齐全,有对口的小学和中学。而且门槛比较低,性价比很高。
金地未来云著项目定位刚需和刚改家庭,考虑西中环沿线,有小学中学对口。离漪汾街的吾悦广场,开车十分钟内。离和平北路的奥特莱斯,开车也是十分钟内。

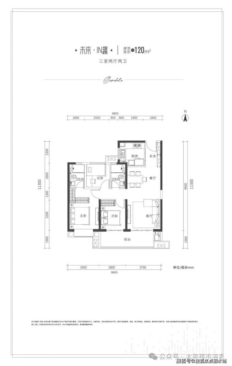
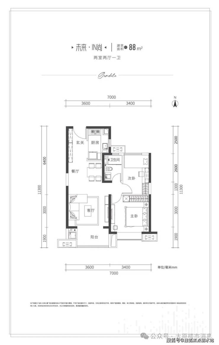
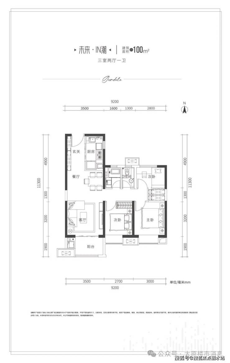
目前,金地未来云著,两居88平,三居100平和123平,部分楼层还可以选。毛坯房源多一些,精装修房源不多了。性价比很高,八千多,交通方便,配套完善,还是很不错的项目。
金地未来云著户型设计很不错,两居三居都是南北通透,100平和120平三居,户型方正,采光面大。120平,有通体大阳台设计。还有四居户型,面价是140平,南北大通透,三个卧室朝南,采光面大,特别那个主卧室,很多人看了都喜欢上了。
金地未来云著,容积率4.2,绿化率25%,总户数1400多户。小区体量中等,物业金地物业管理,小区周边生活配套已经成熟了,即将交付,性价比还是很高的。旁边有小学和中学对口。

1、品牌:品牌央企,(国资背景),施工质量好,进度快,即将交付了,实景呈现。
2、物业:金地物业,一级物业资质,(首批火神山物业),业主们口碑好。
3、交通:西中环与兴华西街,紧邻绕城高速,纵享畅达全城,有几条公交线路,未来有地铁线路规划。
4、商业:接壤兴华商圈,漪汾商圈,下元商圈,一站式全优配套,还享受奥莱和吾悦广场。
5、楼间距:平均楼间距75米,采光好,入住舒适度很高。
太原金地未来云著
☎☎售楼处电话:400-8787-098转接4444【售楼中心】
★彡提-前-来-电-预-约-登-记—售楼处1v1销售专业讲解〢一对一热情服务〢
★彡温馨提示:网上售楼中心〢欢迎来电咨询〢预约可享内部优惠〢匠心钜制恭迎品鉴〢
声明:本文由入驻焦点开放平台的作者撰写,除焦点官方账号外,观点仅代表作者本人,不代表焦点立场。
