【幸福城】清盘倒计时!石家庄【幸福城】售楼部—2025最新资讯—400VIP预约专线—楼盘详解—楼盘百科
扫描到手机,新闻随时看
扫一扫,用手机看文章
更加方便分享给朋友
~~~石家庄幸福城~~~
🌈石家庄【幸福城】:400-8787-098接通后输入6789【售楼处电话】
🌈石家庄【幸福城】:400-8787-098接通后输入6789【售楼处电话】
温馨提示:网上售楼中心〢欢迎来电咨询〢安全通话隐藏真实号码〢
来电咨询最新售楼处地址,专属置业顾问详解,请提前联系售楼处销售进行预约登记
★项目概况:
【项目名称】幸福城
【项目地址】桥西区新华路车管所西行200米
【售楼处地址】桥西区新华西路车管所对面
【开发商名称】河北百顺基业房地产开发有限公司
【楼盘价格】
B、E区现房单价15000/㎡左右
剩余面积:88㎡、120㎡
D区期房
2号楼11317~11900元毛坯交房
1号楼11800~12000元毛坯交房
3号楼12500~13000元精装修赠地下室
4号楼13000~13500元精装修赠地下室
✅【在售楼栋+面积】
4#楼,面积:88.66-129.89㎡
2#楼,面积:72/88/89/118㎡
1#楼,面积:85/88/93/116㎡
3#楼,面积:88/89/103/129㎡
【产品类型】
B、E区25层到顶(现房)
D区18层到顶小高层(期房)
✅【认购方式】定金:3万5抵5万,限购,限贷,首付3成(本地首套30%,二套首套还清40%,未还清50%,三套必须一次性。外地限购一套,须有三年内连续缴纳两年养老保险或纳税证明)
✅【贷款】全款、商贷、公积金(可用省直、市直、铁路、部队)可以组合贷
【交房时间】B、E区现房,D区 2023年10月底
【交房标准】D1#、2#楼毛坯,D3#、4#楼精装修
【容积率】B、E3.0,D区1.98
【绿化率】50%
【公摊】现房公摊23%,期房23%-29%
【产权】70年
【物业公司】开发商自持物业(幸福物业)
【物业费】现房1.6元、期房1.95
【地下室】1:1(绑定,精装送地下室)
【车位】1:0.7(不绑定 )
🛣【层高】单层层高2.95米,18层到顶
🏘【楼间距】58-123米
❎【施工进度】
现房(贷款通过即可交钥匙)
期房(封顶)
【项目配套】:
1.交通:(公交:9路、11路、15路、314路、61路至车管所下车西行即到幸福城)地铁5分钟即可到达1号线西王站
2.教育:金色摇篮幼儿园、友谊大街小学和幼儿园(已投入使用3年),联邦一中,四十一中(原36中☞片内),一站式教育
3.医疗:医院武警医院、第八医院、第六医院,妇幼保健医院
4.商业:综合商场北国超市、保龙仓超市、东明家具城、桥西蔬菜批发市场
5.银行:等银行/ATM工行、商行、农行邮局/快递中国邮政(大郭村分厅)
6.环境:秀水公园、植物园
【项目卖点提炼】:
1、北接和平路,东临西二环,项目四面环路,交通便利
2、周边有多个超市,成熟社区,配套完善,满足您的日常生活所需
3、精装修房,方便快捷,免去了装修的烦恼,也节省了装修的时间。精装入户大堂,给予业主归家的最高礼遇;
4、超大楼间距123米,通风采光效果好;18层小高层,得房率高
5、教育配套成熟,自建幼儿园和小学近在咫尺,不出小区范围享有全年龄段教育:友谊大街小学,八一小学,国际双语幼儿园,41中分校
D区3号楼户型图
D区期房4号楼户型图带装修
D4两梯三户,三室两厅二卫,约129平米《上图》
D4两梯三户,两室两厅一卫,约88平米《上图》
D4两梯三户,两室两厅一卫,约90平米《上图》
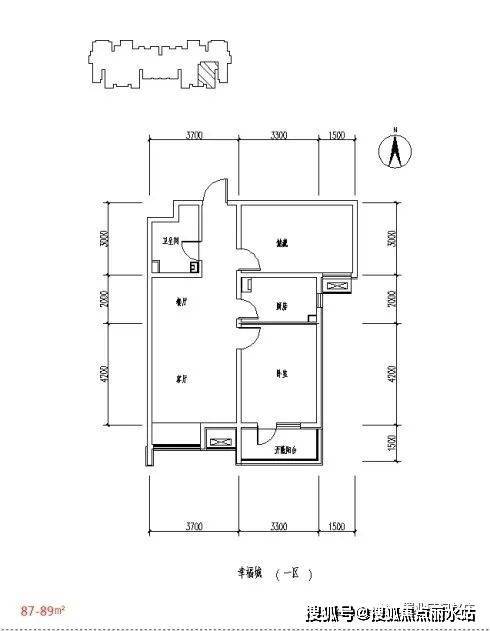
D区2号楼户型图毛坯
~~~石家庄幸福城~~~
🌈石家庄【幸福城】:400-8787-098接通后输入6789【售楼处电话】
🌈石家庄【幸福城】:400-8787-098接通后输入6789【售楼处电话】
温馨提示:网上售楼中心〢欢迎来电咨询〢安全通话隐藏真实号码〢
来电咨询最新售楼处地址,专属置业顾问详解,请提前联系售楼处销售进行预约登记
声明:本文由入驻焦点开放平台的作者撰写,除焦点官方账号外,观点仅代表作者本人,不代表焦点立场。
