中海·东湖玖章 (售楼处) 首页 - 中海·东湖玖章销售中心 - 中海·东湖玖章价格 - 地址 - 楼盘详情 - 配套 - 电话 - 交房时间 - 配套 - 电话 - 交房时间
扫描到手机,新闻随时看
扫一扫,用手机看文章
更加方便分享给朋友
🌈中海·东湖玖章售楼处电话☎️400-8787-098转接8999(营销中心)
🌈中海·东湖玖章营销中心电话:☎️400-8787-098转8999【营销中心】
🌈温馨提示:拨打400电话,听到嘀声后,输入分机号8999即可!上海柏涛丨中海武汉·东湖玖章
北京事业部上海柏涛
2025年4月30日 17:50上海
武汉生活是“江湖气”与“烟火气”的混响,沉淀着老城的慵懒温情,也透视着新居住氛围在变与不变中寻觅平衡。社区建筑应当成为心灵共鸣的载体,优雅的生活环境不仅是务实的居所,更是精神的投射。
区位解读
项目位于武昌区二环内,紧邻中北路双轨交汇的稀缺位置,距离湖北省政府仅2.5公里,城市腹地尽享都市繁华。地块距离东湖景区约800米,西侧沙湖约600米,双湖环抱缔造诗意栖居。从古老的“问津书院”到大学之城,项目毗邻湖北省博,文化传承咫尺锦绣未来。
围合式礼序布局,双园栖居绿意萦绕
项目规划总用地面积约5.37 公顷,地上建筑面积约21.7万平方米,并配建一所9班幼儿园及一所九年一贯制学校。
规划以经典围合式组团营造空间礼序,城市绿廊自然贯穿,形成南北两个居住组团。建筑高度错落有致,沿东湖界面勾勒起伏的天际线,外揽湖光(东湖、沙湖),内藏园境。
景观以多重空间叙事的表达,分级营造迎宾、会客、交流、休闲的立体空间序列,以优雅艺术的笔法雕琢沉浸式的生活场景,让艺术与生活产生共鸣。
城市和谐,发展公共空间,完善街区功能
绿色生态不只是技术层面,更是空间环境和生活模式的新趋势。规划条件中的绿廊不只是绿化带,建筑师将公共活动空间与之立体融合赋予了更深的意义。
不少于15米宽的步行城市走廊,有机串联北侧地铁枢纽与湖北省博物馆、东湖风景区。将社区建筑做为重要节点,通过合理的动线组织和丰富的空间营造,既守护了归途的私属感,又承载了公共环境的社区共享,实现开放与私密的微妙平衡。
永恒流动的空间(Flowing Space)——密斯·凡·德·罗
向大师致敬,定制序列艺术形体,塑造场景画面,将居住环境叠加艺术体验氛围。
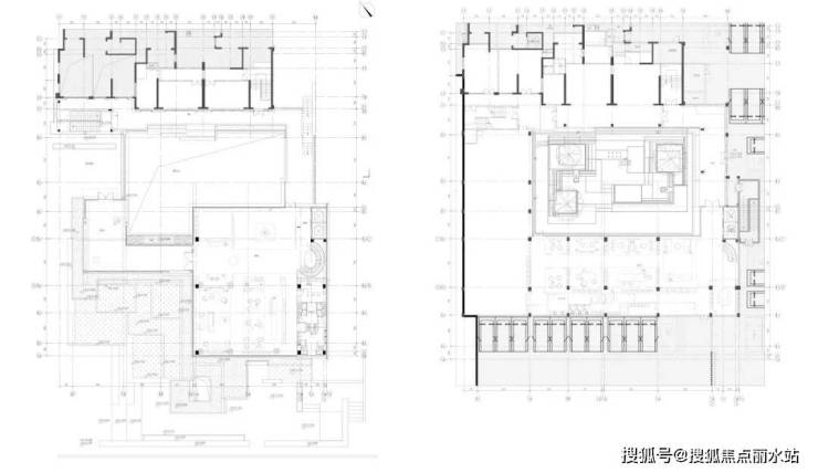
【序】——璞玉翠屏泛大堂
玉之润,消除浮躁之心;玉之色,愉悦烦闷之心。
营造一个包容柔和的灰空间。
【起】——礼仪前庭
在光影交错的艺术序厅中,是一份尊贵与温暖的迎接。
心归长廊,信步其间,感受与自然的融合,让心灵重获栖居诗意;回望来处,此时境启新章。
【承】——湖光艺术馆
一层的湖光艺术馆可以为居民营造多元、温暖且具有创造力的活动交往空间。如书画艺术策展、手工亲子工作坊、社区记忆主题活动、节庆仪式,让文化的根系链接每个人,让美好成为日常生活的一部分。
开阔而不失私密的室内空间,以玉石纹理、古铜金属与石材的沉稳作为优雅基调,在自然的环抱中,绽放艺术的生命力。
【转】——礼遇典藏会所
通过优雅的旋转楼梯向下,来到生活枢纽的会所休闲功能区,优质配套提升的是社区认同和幸福感。
水吧台、阅览区能独处放空,也能偶遇闲聊,不刻意的亲切感是家的延伸。会客、私宴聚会空间是你家楼下优雅的“第二客厅”。
【阖】——叠景生韵
檐影青叠的下沉庭院,草木青意漫上石阶,360°环幕采光,是自然融合的室内外休闲空间。
首层悬挑的艺术展厅、通透的心归长廊、光影格栅后的泛大堂,与下沉庭院形成垂直维度的视线交互,让艺术与生活不在割裂,让人居的精致与自然的生机在此处达成一种诗意的平衡,面景成框,尽显空间层次。
【引】——无界空间
漫绿无界的半开放的空间,作为城市界面的柔性过度,是社区与城市的对话。既保持了社区的领域感,又延续了城市的公共性。
【归】——融景架空层泛会所
架空层泛会所体系是将归家的相聚之欢与邻里的相见之悦紧密结合,虚化建筑和自然的边界, 构建生态柔和有温度的社区“第三空间”。
通过不同主题、不同模块组合,承载亲子、社交、娱乐、康养等多重功能,延伸人与人之间的美好遇见。
🌈中海·东湖玖章售楼处电话☎️400-8787-098转接8999(营销中心)
🌈中海·东湖玖章营销中心电话:☎️400-8787-098转8999【营销中心】
🌈温馨提示:拨打400电话,听到嘀声后,输入分机号8999即可
声明:本文由入驻焦点开放平台的作者撰写,除焦点官方账号外,观点仅代表作者本人,不代表焦点立场。
