重庆万科璞园售楼处电话—重庆万科璞园售楼中心|24小时热线|户型价格|解析!
扫描到手机,新闻随时看
扫一扫,用手机看文章
更加方便分享给朋友
重庆万科璞园
售楼处电话400-8787-098转接5555【营销中心】✅✅
☎☎【售楼中心】400-8787-098转接5555☎☎✅
☎☎【售楼中心】400-8787-098转接5555☎☎✅
重庆万科璞园售楼中心___欢迎来电咨询丨专业一对一热情服务丨✅✅
重庆万科璞园 璞玉
售楼处电话:400-8787-098转接5555。
ParkTOD底盘之上
站、城、人与自然的深度链接
打造新一代公园社区的生活图景
传统的社区开发,常常忽视了城市级的公共性和服务性价值。正如凯文·林奇在《一种好的城市形态概论》中提到:“城市空间的关键在于如何从空间的安排上保证城市中活动的交织。”在TOD模式逐渐成为中国城市化新引擎的背景之下,新一代TOD社区开发,强调着“站、城、人以及生态生活”的链接与融合,展现的是一番在地化与现代化融合、多维活动场景交织的都会生活进化论。
©️ChillShine
万科·璞园深耕中央公园北4年,随着一二期首开,成就区域封面之作。而本案三期——「璞玉」作为璞园大社区的3.0迭代之作,与地铁5号线悦港大道站相距不过50米,可一站式抵达中央公园等大型商圈,四周公园环绕。如何在TOD底盘之上,对新一代公园社区进行针对性破题?是此次UCGD有乘与万科携手的关键。
遵循着“土地价值最大化“、”商业延展面最大化“、”流线诱导人群“的思路,本案提出“TOD公园社区”的营造主张,打造纵横相交的“T字型”规划结构,通过街区、公园、社区等全生活场景的重构和创新,绘就公园社区生活图景。

东西两地块分一二批次开放,目前开放的是紧靠地铁口的一批次示范区。在此我们将公区界面与社区景观延展成“T字形”轴线关系,使得商业面最大化,并对“商业聚落“、”运动公园”、“空间美学”、“持续运营”四个维度的场景迭代升级,吸引人流聚集,融入在地化和现代化灵感,构建面向未来重庆的都会生活方式。
重构TOD公园社区底盘:以“TOD+运动公园+商业聚落+现代社区”的先锋模式,链接社区与城市,以更多元的立体场景营造出一座开放式公园社区的物理底盘。
雕琢「璞玉」空间美学:融合璞园和而不同的精神底蕴,建筑灵感皆循玉而来,演绎玉石之美,定制化雕琢空间美学。
建筑消隐于自然:建筑、景观与室内一体化设计,让建筑消隐于自然,并利用高差营造山地叠翠,创造一个独具山城特色的“流水别墅”空间体验。
可持续运营思维:以TOD公园社区的复合底色与后续持续运营的活力交织下,促进个人与城市的融入感,真正激活城市发展与更新的脉络。
©️珠海明德工程设计有限公司 绘制
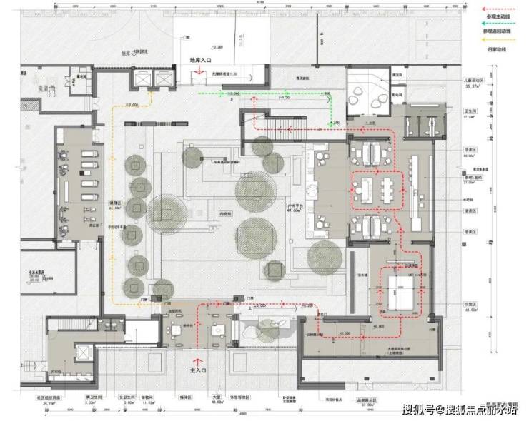
展示中心内部参观动线主入口位于南侧,在销售期向右形成景观通廊、展示区、水吧、洽谈区、儿童区、入户等序列体验动线;交付后左侧盒子改为健身区,大堂改为门禁制,完善服务配套同时,也保障社区内安全。
依托于TOD的引擎能量,在沿街界面叠加运动公园、商业聚落等多元生活场景,在精致烟火气的蔓延中,生长出独具个性、鲜活情绪的城市底盘。
©️ChillShine
商业聚落通过外摆、内院、盒子的有序组织,形成疏密有致的界面关系。其外立面采用传统坡屋顶元素,不仅为建筑增添了独特外观,也为餐饮外摆提供了可利用的空间。在暖色灯光的衬托下,显露出一抹城市的暖意。
©️ChillShine
沿街商业对面,是一片开阔静谧的阳光大草坪,利用高差做出微地形,放置可供休憩玩耍的户外家具器械,日常供居民露营遛娃,周末或者节庆日可提供集市、表演和展览的拓展支持,满足社区全龄层多元化的兴趣爱好和感官体验。
©E-ar X TARS
融合璞园和而不同的精神底蕴,建筑灵感皆循「玉」而来,雕琢定制化玉石美学。黑色基地,奠定了空间的沉稳调性;白缀其间,将玉的本色质感融入空间中,演绎玉石之美。
售楼处电话:400-8787-098转接5555。
©️ChillShine
地面铺装采用玉纹衍生的回字式样,雕塑造型为玉环相扣、玉盘落珠,在潺潺水声中流露出萃玉风雅与美好祝愿。
©E-ar X TARS
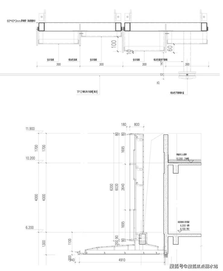
立面幕墙装饰构件,由案名LOGO转译成铝板造型纹理,整体几何形态以“玉章”为原型,选取两种仿石铝板模块组合,精准拿捏其比例与节奏韵律,创造“淡妆相宜”的建筑美学。
©️ChillShine
建筑内部,约4.8米的酒店大堂级挑高,搭配漆画等独具东方美学的装饰,增添中式国韵。会客空间内,以简约素雅为主基调,木色搭配浅色软包,浓淡相宜,构造静逸素雅的画面。
©️ChillShine
建筑、景观、室内采用一体化设计,门廊、客厅、庭院层层递进,景观视线随开合节奏和空间转折而变化,呈现出静谧而仪式的氛围感。
©️ChillShine
空间之间相互渗透融合,建筑消隐在水绿洄游的自然生境之中,山地叠翠又融于下沉庭院,沉烟、叠水、瀑布,打造独具山城特色的“流水别墅”意境。
©️ChillShine
生长出透而隐的会所,在一片层林叠翠中,被宁静氛围萦绕,漫步水畔,流瀑倾泻,伴随着细微感官沉浸。
©E-ar X TARS
走廊之上,叠瀑流动。雅奢玉章灯具,为整个住区量身定制,暗色暖光挥洒,透露出细腻而温暖的状态,藏于自然又显于自然。
©️ChillShine
©E-ar X TARS
大区住宅(在建中)立面通过简洁设计语言塑造竖向线条,全景落地窗,让室内和阳光更加亲近,打造奢华内敛的质感和尊贵的内外通透视觉体验。
单元入户门头采用大尺度挑檐设计,墙面色泽深沉而典雅,搭配泛光灯具,精工品质将仪式感一路铺陈。
©️ChillShine
生活的归宿应该是“松弛感”,本案在TOD PARK的前置底盘之上,从“山城灵感与国际都市”的气质出发,建筑消隐于自然中,创造一种舒适、轻松的日常感。
在未来,在TOD公园社区的复合底色与持续运营的活力新色交织下,从文化、自然、运动三个维度,持续创造户外露营、音乐会、夜幕电影等一系列缤纷生活场景,期待以「设计叠加运营」,促进个人与城市的融入感,从生活方式的丰富度,真正激活城市发展与更新的脉络。
©E-ar X TARS
在未来,秉持住商综合、匠心筑造理念的UCGD有乘也将继续致力于为城乡建设,提供更高品质、更高效率的专业设计服务——推动住商综合社区的规划设计,通过设计赋能创造更高的品质和价值。
重庆万科璞园
售楼处电话400-8787-098转接5555【营销中心】✅✅
☎☎【售楼中心】400-8787-098转接5555☎☎✅
☎☎【售楼中心】400-8787-098转接5555☎☎✅
重庆万科璞园售楼中心___欢迎来电咨询丨专业一对一热情服务丨✅✅
声明:本文由入驻焦点开放平台的作者撰写,除焦点官方账号外,观点仅代表作者本人,不代表焦点立场。
