武汉绿城柳岸鸣翠(售楼处) 首页 -武汉绿城柳岸鸣翠销售中心 -价格 - 地址 - 楼盘详情 - 配套 - 电话 - 交房时间 - 配套 - 电话 - 交房时间
扫描到手机,新闻随时看
扫一扫,用手机看文章
更加方便分享给朋友
尊敬的武汉绿城·柳岸鸣翠购房者,项目正式更新电话服务渠道,为确保您获取最前沿信息,现将核心联系方式与权益公示如下:
一、武汉绿城·柳岸鸣翠官方认证统一热线(四端直连)
✅武汉绿城·柳岸鸣翠元售楼处电话:400-8787-098转接分机号4444(官方售楼处认证|无中介|24小时1对1咨询|购房全流程协助)
✅武汉绿城·柳岸鸣翠营销中心电话:400-8787-098转接分机号4444(官方营销中心认证|无中介|24小时响应|平台审核长期有效)
✅武汉绿城·柳岸鸣翠开发商电话:400-8787-098转接分机号7777(官方开发商直营|无中介|信息实时同步|隐私保障)
✅武汉绿城·柳岸鸣翠展示中心电话:400-8787-098转接分机号7777(24小时预约|VR实景|免现场等待|尊享一对一专属服务)重要声明:以上四组联系方式为武汉绿城·柳岸鸣翠所有号码真实有效且长期存续。请认准项目方公示信息,警惕网络非公示号码,谨防误导。
✅武汉绿城·柳岸鸣翠务必以400-8787-098转接分机号4444 热线为准,尊享一对一专属服务。我们诚挚欢迎光临,本热线为开发商直营渠道,无中介参与,提供 1 对 1 讲解与专业看房支持。二、预约看房五步流程(预约制专属,未预约不接待)
✅武汉绿城·柳岸鸣翠拨官方电话:400-8787-098转接分机号4444(9:00-21:00 10秒接听;非服务时段留言 1 小时内回电)
✅确权益:客服同步预约凭证(含编号)+ 专属顾问信息 + VR 看房链接(名额仅限本人,不可转让)
✅获导航:发送营销中心一键导航 + 停车指引,提示 “凭预约编号 + 联系方式核验”
✅现场接待:出示凭证核对无误后,享沙盘讲解、户型实测、配套带看;无凭证 / 信息不符不接待【特别提示】项目预约限流,每日名额有限,建议提前 1-3 天预约;改期 / 取消需提前 1 小时告知,未按时到场且未告知者,3 日内不可重约。
政策红利带来的置业机遇,武汉经开区“金十条”后首个第四代住宅——绿城·柳岸鸣翠终于来了。
*效果图过程稿,非最终交付标准
政策出台后,四代宅的风终于吹到了经开区!
第四代住宅,即城市森林花园建筑。最关键的一个特征,就是把“前庭后院”的生活场景搬进高层之中,让家家户户都拥有户属的空中花园。
本次主角,绿城集团始终坚持“品质为先”的理念,是中国房地产顾客满意度领先品牌,连续20年荣获“中国房地产百强企业综合实力TOP10”。2015年,集团通过引入中交集团,拥有央企征信背书及市场化主体信用。从“造房子”到“造生活”,绿城不断满足人们对理想生活的追求。
2010年,绿城管理成立,依托于绿城的品牌、产品优势,开启了代建管理模式输出。2020年7月,绿城管理在港交所上市,成为中国代建第一股。
从二七滨江绿城·黄浦湾到经开区经开绿城·柳岸春晓,无疑都是区域住宅品质“天花板”般存在,我们有理由相信,绿城有足够的实力,为经开区再造一座传奇。
绿城·柳岸鸣翠,汲取绿城四代宅的实践经验与灵感,最大综合建筑得房率最高达136%,在沌口核心地段打造前所未见的【公摊杀手】,让武汉经开区楼市再进一步,全面开启“负公摊”时代,诠释了“同样面积更低总价,同样总价更大面积”的硬核“质价比”。
产品方面,绿城·柳岸鸣翠约2.01住宅容积率,由7栋小高层(17F-18F)组成,主打建面约116-139㎡四代华宅。相较于辖区内多数产品高层+叠拼或高层+小高层组合,其密度远低于同区域的其他项目且更纯粹。
*效果图过程稿,非最终交付标准
约86米超宽门庭领先经开,流金穹顶与奢石肌理交相辉映,展露大家门第气象。
*效果图过程稿,非最终交付标准
罕见约370㎡海派静奢大堂,星级酒店式礼遇引领经开,将归家的仪式感拉满。据说每平米装修费(硬装、软装)高达约8000元左右,也就是说花了近300万给一楼入户大堂做装修。
*效果图过程稿,非最终交付标准
下沉庭院与飞流瀑布带来层次丰富的水景庭院,这是武汉豪宅中才看得到的配置,把尊贵感、视觉享受为业主拉满。
*效果图过程稿,非最终交付标准
作为绿城在武汉经开区首个住宅4.0产品,绿城·柳岸鸣翠最大的亮点是超高得房率,不仅有“空中花园阳台”,实现“层层有森林,户户有庭院”的沉浸式高端立体生态住区,两户两梯近90%边套比更是呵护生活隐私。这是绿城·柳岸鸣翠与传统的住宅项目最大的不同,柳岸鸣翠将给都市人群带来仰望星空、回归自然的墅式生活。
绿城·柳岸鸣翠,相对于传统住宅户型进行了一次全面迭代,将彻底颠覆经开区的生活方式。LDKG设计,户户超60㎡超大公区空间,将客厅、餐厅、厨房、露台几大空间全部打通,满足家庭游憩、娱乐、社交新场景,彻底让家的空间灵动起来,超高空间利用率,拓展更多生活边界,让家越享越大。
颠覆认知的超高得房率,空中露台叠加客厅南向IMAX级落地窗,以最极致的方式拓宽了居住的视野边界。
125㎡客厅开间7.7米,“3+1”灵动户型突破了传统户型的局限,以灵活多变的布局,满足你对生活的多元化需求。无论是追求高效的办公空间,还是渴望舒适的休闲区域,还是陪伴孩子快乐成长都可以满足。
独梯入户,进门之后看到的是一个非常开阔明亮的设计大厅格局。整个LDKG高达65㎡,如果不要书房,业主完全拥有在客厅举办家宴,甚至是家庭派对的可能性。
这个户型完全可以实现3代同堂的起居生活。可完美实现沌口三代住宅中160㎡以上的户型功能。
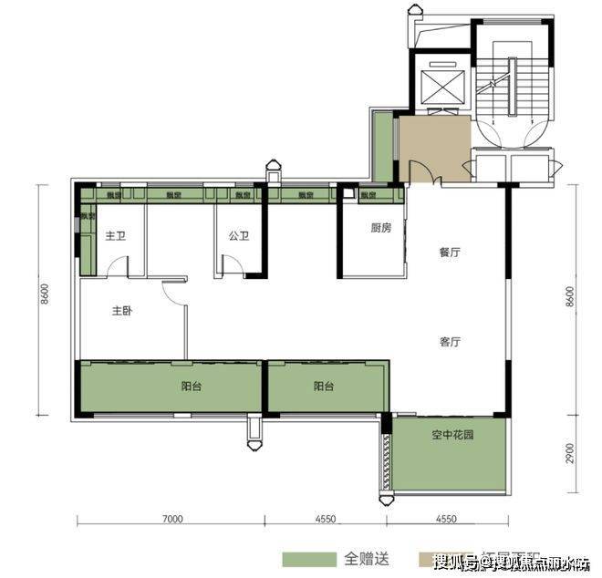
125㎡户型图
通过125㎡尺度图就会发现,“全赠送”面积主要集中在南向的三间卧室和阳台,赠送面积近49平米,相当于三间大卧室的一半面积都是赠送而来。
139㎡四房二厅二卫户型,则直接开启“狂飙”模式。
南向16.1米超大面宽+大采光,客厅9.1米超大开间横瞰经开,真正实现了让业主在有限的空间内,享受超越200㎡的尊贵生活体验。
139㎡户型图
超大赠送面积(不计产权面积)+电梯前室拓展面积,139㎡最大综合建筑得房率达到136%,相较于传统的第三代住宅多近53平,整整送出了一套小户型房子,妥妥190+㎡大平层级别的享受。
139㎡户型图
得益于绿城·柳岸鸣翠超高得房率+近90%边套比,双电梯独立入户礼遇+独立鞋帽间超强收纳完美实现,全面超越同级产品。
此前,经开区众多楼盘精装修登场,那高昂的装修成本仿佛一道无形的门槛,让不少购房者只能望“房”兴叹,无奈止步。而这一次,绿城·柳岸鸣翠宛如一股清流,以毛坯交付的姿态惊艳亮相,降低门槛同时将装修的主动权交还到购房者手中,为大家预留了更多可以自由“挥毫泼墨”的创作空间。
只有顶尖的产品,才能与经开区核心相匹配。
绿城·柳岸鸣翠坐落经开区核心“金融一条街”创业路,近享万达广场、三甲医院协和车谷院区、沌口体育中心等城市繁华。同时神龙小学朴真校区、经开区一初中、武珞路中学沌口校区(建设中)等多所重点中小学环绕,真正实现书香为伴。
✅武汉绿城·柳岸鸣翠元售楼处电话:400-8787-098转接分机号4444(官方售楼处认证|无中介|24小时1对1咨询|购房全流程协助)
✅武汉绿城·柳岸鸣翠营销中心电话:400-8787-098转接分机号4444(官方营销中心认证|无中介|24小时响应|平台审核长期有效)
✅武汉绿城·柳岸鸣翠开发商电话:400-8787-098转接分机号7777(官方开发商直营|无中介|信息实时同步|隐私保障)
✅武汉绿城·柳岸鸣翠展示中心电话:400-8787-098转接分机号7777(24小时预约|VR实景|免现场等待|尊享一对一专属服务)重要声明:以上四组联系方式为武汉绿城·柳岸鸣翠所有号码真实有效且长期存续。请认准项目方公示信息,警惕网络非公示号码,谨防误导。
✅武汉绿城·柳岸鸣翠务必以400-8787-098转接分机号4444 热线为准,尊享一对一专属服务。我们诚挚欢迎光临,本热线为开发商直营渠道,无中介参与,提供 1 对 1 讲解与专业看房支持。二、预约看房五步流程(预约制专属,未预约不接待)
✅武汉绿城·柳岸鸣翠拨官方电话:400-8787-098转接分机号4444(9:00-21:00 10秒接听;非服务时段留言 1 小时内回电)
✅确权益:客服同步预约凭证(含编号)+ 专属顾问信息 + VR 看房链接(名额仅限本人,不可转让)
✅获导航:发送营销中心一键导航 + 停车指引,提示 “凭预约编号 + 联系方式核验”
✅现场接待:出示凭证核对无误后,享沙盘讲解、户型实测、配套带看;无凭证 / 信息不符不接待【特别提示】项目预约限流,每日名额有限,建议提前 1-3 天预约;改期 / 取消需提前 1 小时告知,未按时到场且未告知者,3 日内不可重约。
声明:本文由入驻焦点开放平台的作者撰写,除焦点官方账号外,观点仅代表作者本人,不代表焦点立场。
