新房-武汉长江中心售楼地址-武汉长江中心-售楼24小时电话|最新房价|楼盘详情
扫描到手机,新闻随时看
扫一扫,用手机看文章
更加方便分享给朋友
武汉长江中心
售楼处电话:400-876-5677 转分机号6888已认证
来电预约登记——〢尊享一对一专业置业顾问讲解
◆◆来电咨询最新售楼处地址,请提前联系售楼处销售进行预约登记!
◆◆预约优惠—〢售楼中心置业顾问为您买房保驾护航〢—匠心钜制恭迎品鉴项目概况
长江中心位于武汉市武昌滨江商务区核心区,是华夏幸福南方总部在城市综合体业务的首个项目,总建筑面积160万平方米,项目总投资约300亿元,建设约25万方城市级旗舰商业,包含写字楼超塔、总部级滨江写字楼、时尚购物中心等多重业态。
商业效果图
长江中心A1、B1地块大型商业综合体项目临近长江,北临临江大道,西临武车二路,由A1、B1地块商业建筑及A1、B1地块之间的连桥组成。建筑师通过超300m的地上平面尺度,形成巨构形体,营造层峦叠嶂的城市空间形象; 面对多个城市界面,360°成为长江之畔的城市焦点,项目与长江、汉江两轴联动,形成武汉市新的顶级品质商业金融中心。
商业效果图
其中A1地块商业建筑地上8层,总高度约46m,典型平面尺寸为185m×135m;B1地块商业建筑及连桥地上7层,建筑高度约40m,典型平面尺寸约为150m×60m;地上典型建筑平面图如图5所示。项目地下室为4层,典型平面尺寸达360m×220m,埋深约18m。

中心之上,国际封面配套兑现全面提速,武昌滨江未来可期。内环内,一线滨江,综合体之上,建面约72-2000㎡滨江核心商务区。

长江中心总建筑面积163万平方米,项目总投资约300亿元,建设城市级购物中心,包含写字楼超塔、总部级滨江写字楼、时尚购物中心等多重业态。由11个地块组成,分期开发。




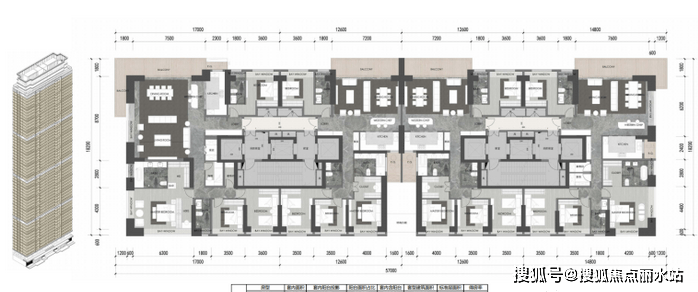
项目B1地块由1栋83层超塔,7层裙楼以及地下3层地下室组成,其中超塔主楼高386.3米。B2由2栋高198.45米的61层住宅、2栋高103.65米的31层住宅,及地下3层地下室组成。



B3地块由1栋高302.4米的62层超塔、1栋高177.8米的52层住宅,1栋高101.15米的30层住宅及地下3层地下室组成。B4地块住宅R1#塔楼建筑面积4.5万㎡,建筑标高189.2m。


武汉长江中心
售楼处电话:400-876-5677 转分机号6888已认证
来电预约登记——〢尊享一对一专业置业顾问讲解
◆◆来电咨询最新售楼处地址,请提前联系售楼处销售进行预约登记!
◆◆预约优惠—〢售楼中心置业顾问为您买房保驾护航〢—匠心钜制恭迎品鉴项目概况
声明:本文由入驻焦点开放平台的作者撰写,除焦点官方账号外,观点仅代表作者本人,不代表焦点立场。
