"熙和园"售楼处-2025年太原【熙和园】在售房源-电话/房价/户型
扫描到手机,新闻随时看
扫一扫,用手机看文章
更加方便分享给朋友
☎️熙和园售楼中心热线:400-8787-098转接分机号6688【已认证】✨
太原熙和园小区,位于综改区核心地段,马练营路旁。总占地55亩,16幢,171套房。绿化率35%,容积率0.57。户型172平到187平,每一户都是独门独院+独立电梯,户户赠送院子、地下室、双车位车库,上叠赠送双露台。成交价在193万到460万。实景呈现,感兴趣的朋友,跟我实地考察。
☎️熙和园售楼中心热线:400-8787-098转接分机号6688【已认证】✨
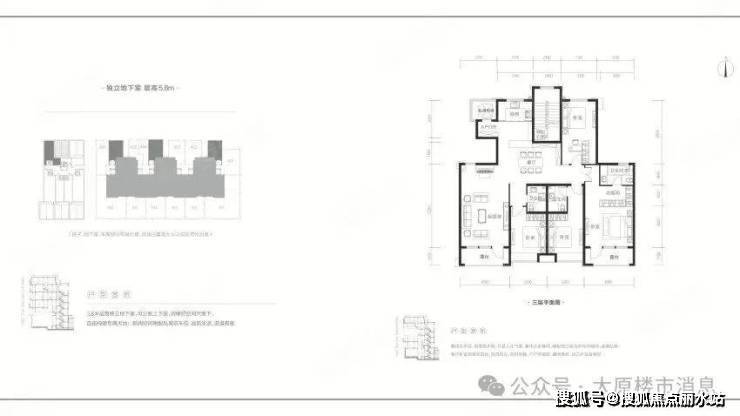
🔔🔔熙和园,叠院在售产品
上叠:主力面积172平
价格区间200~260万
中叠:主力面积187平
价格区间220~260万
下叠:主力面积172平
价格区间265~460万
☎️熙和园售楼中心热线:400-8787-098转接分机号6688【已认证】✨
熙和园,独栋和双拼在售产品
独栋:498㎡,院子628㎡,地下室226㎡。
双拼:312㎡,院子203㎡,地下室111㎡。
房款总价:1350万起。
💟《熙和园》高性价比房源推荐❗️
上叠户型 →建筑面积约172.72㎡,
规划为地上4-5层,三室两厅三卫
套均总价:220万左右
🎁赠送约40-70㎡北向私家院子,营造专属户外空间;
🎁约50㎡私属地下储藏室(层高5.8米🉑做两层),储物功能充足;
🎁赠约16.7㎡露台,可享空中观景与休闲时光(🉑打造空间大)
🎁赠送双车位车库,且配备专属电梯,直达地下室与车库,出行便捷。
🎁赠送专属电梯,尊享归家礼遇
☎️熙和园售楼中心热线:400-8787-098转接分机号6688【已认证】✨
物业:第一物业。
交房时间:2025年9月30号
绿化率:35%
容积率:0.57
产品明细:独栋、双拼、叠墅。
配套教育:自建贝尔国际幼儿园,对口太原市九一实验学校(唐槐校区)。周边还有百年名校山西省实验中学(十中)、北京闻励太原实验小学、山大附小综改区禧佑源校区、山大附中汾东校区、等优质学校。
☎️熙和园售楼中心热线:400-8787-098转接分机号6688【已认证】✨
❗熙和园项目 超强卖点:
👍户户赠送私人电梯
👍户户赠送私人小院
👍户户赠送双车位
👍户户赠送地下储藏室
👍顶层还赠送露台
上叠173平:
☎️熙和园售楼中心热线:400-8787-098转接分机号6688【已认证】✨
揽境——上叠,建面约172.5-175.5㎡,4/5层,三室两厅三卫双露台,在此基础上额外赠送您约126-266㎡的超大使用面积,包括:约30-150㎡的私家院子、约80-100㎡的私属地下储藏室、约16.7㎡的露台,并赠送双车位车库,都有专属电梯即可进入地下室和车库。
中叠188平:
☎️熙和园售楼中心热线:400-8787-098转接分机号6688【已认证】✨
朗悦——中叠,建面约171.1-190.8㎡,是大平层,四室两厅三卫,在此基础上额外赠送您约50-120㎡的超大使用面积,包括:约30-70㎡的私家院子、约20-50㎡的私属地下储藏室,并赠送双车位车库,都有专属电梯即可进入地下室和车库。
下叠172平:
☎️熙和园售楼中心热线:400-8787-098转接分机号6688【已认证】✨
观庭——下叠,建面约172.02-174.7㎡,1/2层,四室两厅三卫,在此基础上额外赠送您约120-380㎡的超大使用面积,包括:约60-280㎡的私家院子、约60-100㎡的私属地下储藏室,并赠送双车位车库,都有专属电梯即可进入地下室和车库。
☎️熙和园售楼中心热线:400-8787-098转接分机号6688【已认证】✨
熙和园项目位于综改区核芯——唐槐产业园区,大太原十字核心,北至晋善街、南至绿廊北街,西起富民路、东至马练营快速路,与东边的科技创新城仅一步之遥,西接汾东商务区,南邻汾东中央生态景观绿廊。
☎️熙和园售楼中心热线:400-8787-098转接分机号6688【已认证】✨
💫多维交通 构建从容生活圈
咫尺繁华熙和园自建约6万㎡商业配套,直达小店核心商圈、天美奥莱、晋中万达都会商圈。
💫中央生态绿廊
南门正对约11公里汾东中央生态景观绿廊,贯穿汾东商务区、唐槐唐槐园区、科创新城。

☎️熙和园售楼中心热线:400-8787-098转接分机号6688【已认证】✨
💫精致法式园林多层次的生态自然景观融入法式的经典雅致,身处繁华城央,亦能惬意感受四季变化。
☎️熙和园售楼中心热线:400-8787-098转接分机号6688【已认证】✨
💫法式院落 臻稀墅居一方庭院三代人的栖居理想,每户配备独立院落,有天有地有花园在庭院里,一方庭院万象从容。
——太原【熙和园】——
声明:本文由入驻焦点开放平台的作者撰写,除焦点官方账号外,观点仅代表作者本人,不代表焦点立场。
