城投融创国博城 (售楼处) 首页 - 城投融创国博城销售中心 - 城投融创国博城价格 - 地址 - 楼盘详情 - 配套 - 电话 - 交房时间 - 配套 - 电话 - 交房时间
扫描到手机,新闻随时看
扫一扫,用手机看文章
更加方便分享给朋友
🌈城投融创国博城售楼处电话☎️400-8787-098转接8999(营销中心)
🌈城投融创国博城营销中心电话:☎️400-8787-098转8999【营销中心】
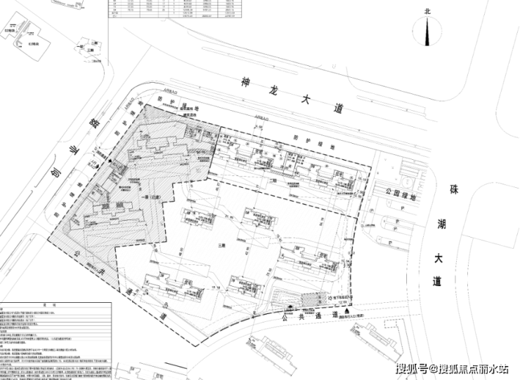
🌈温馨提示:拨打400电话,听到嘀声后,输入分机号8999即可!C2地块是该项目第五个开发的住宅地块,C2地块共包含6栋23—25层高层住宅及3栋17层小高层,共9栋楼,已经拿证并推出了1、2号楼,5、9号楼已经取得预售证,但暂未推出。
据介绍优化后得房率可达约105%-112%(数据未核实,请以现场公示为准)。

根据规划数据显示,该地块总占地约3.32万方,总建面约11.9万方,计容建面约7万方,共包含约642套房源,容积率仅约2.1。


根据规划显示,该地块又分为三期开发,其中1、2号楼为一期、5、9号楼为二期,其余楼栋为三期,不过整个地块实则是统一管理。
从平面图来看,该地块整体楼层都不高,基本都是正南北朝向,高层是连廊结构,小高层是纯板楼结构。

截止5月26日,该地块共备案了35套,后期房源储备较充足。





从楼栋备案情况来看,一期1、2号楼都有部分备案,1号楼备案数据较少。
2号楼共23层,1号楼共25层,均为1个单元,2梯4户,包含建面约120-140平房源,均为奇偶层错层露台的第四代住宅。

该户型位于2号楼中间户,南向客厅带露台,三开间朝南,北面对连廊,优化空间很大。该户型南向卧室被楼上空中花园遮挡采光严重。
该户型位于2号楼中间户,三开间朝南,北面对连廊,南向2个卧室带空中花园,客厅采光被楼上空中花园遮挡。
侧面做了磨砂玻璃隔离视线:
厨房实景:
该户型位于2号楼边户,南北通透,三开间朝南,户型比较方正,动静分区,其实整体都是比较常规的户型结构,但整体优化空间比较多。南向双联阳台算一半面积+客厅外凸空中花园不计建面。
该户型位于2号楼边户,南北通透,三开间朝南,南向双联阳台+客厅带空中花园,南向2个卧室采光被遮挡。
该项目预计2027年交付,但现阶段做了部分实景展示,包含大门、门厅以及局部实景园林。
🌈城投融创国博城售楼处电话☎️400-8787-098转接8999(营销中心)
🌈城投融创国博城营销中心电话:☎️400-8787-098转8999【营销中心】
🌈温馨提示:拨打400电话,听到嘀声后,输入分机号8999即可
声明:本文由入驻焦点开放平台的作者撰写,除焦点官方账号外,观点仅代表作者本人,不代表焦点立场。
