星河澜月湾 (售楼处) 首页 - 星河澜月湾销售中心 - 星河澜月湾价格 - 地址 - 楼盘详情 - 配套 - 电话 - 交房时间 - 配套 - 电话 - 交房时间
扫描到手机,新闻随时看
扫一扫,用手机看文章
更加方便分享给朋友
🌈星河澜月湾售楼处电话☎️400-8787-098转接8999(营销中心)
🌈星河澜月湾营销中心电话:☎️400-8787-098转8999【营销中心】
🌈温馨提示:拨打400电话,听到嘀声后,输入分机号8999即可!颠覆!一线湖景+全能户型,常州人的湖居理想型来了!
房信甄选 2024年4月1日 16:41 江苏
当大家开始注意到某一个板块,常常从一个远超预期的【规划】开始。
西太湖板块的星河·澜月湾,从入市开始,一直占据着C位的焦点。
因为他的地段、位置一绝。
本身城市内一线临湖的土地资源少之又少,而且根据地图上显示,离湖直线距离还不到200米。
想想,常州已经有多久没有出这样「藏品级」的一线湖景房了?
丨项目实景图
好的地利,成就了稀缺,好的天时直接决定了西太湖板块的未来将无法复制。
丨实景图
2024年,“两湖”创新区作为发展的窗口期,规划将再次被完善提升,而其中的苏澳大厦、江南银行总部大楼、南医大常州校区、长三角青年创新创业港等重点项目加速推进,未来的“两湖”创新区将构建宜居且宜业的新格局。

丨实景图
这同时也意味着,政府有意将整个西太湖板块,作为常州面向世界的一张名片,坐实常州的“门面担当”。
规划上,按照“建设世界一流总部经济区、打造两湖活力经济中枢”的定位,规划有1100亩总部经济区,规划28栋高楼,先期启动东片区和中央公园、地下空间一期。

随着高起点、高规格、高兑现的建设脚步,一个产城高度融合的湖岸生活蓝图,正迈向令人艳羡的璀璨未来!
况且,两湖创新区仍然处于大力发展阶段!但光是区域内现有(含规划中)的各种配套,已经让人上头!

丨意向图(仅供参考)
目前已经落地或正在建设的囊括:西太湖科技产业园;南京大学未来技术创新研究院、南医大常州医疗健康科技园;中央车站;墨烯科技产业园;地铁5号线、接踵而至的总部项目…
这还不止,再加上已经建设中的大型综合体星河cococity,一幅繁华的生活图卷,正在缓缓展开。
商业、产业都有了,自然也离不开高效的交通。区域内丰富立体的出行交通网络,可无缝串联苏州其它各区。
以上种种配套,都在星河·澜月湾的覆盖范围之内,如此优秀的、集众多配套于一身的项目,张力如何,不用多说!
常州人,对于湖景的偏爱,也是无法用文字来形容的。
尤其是星河澜月湾占据的可是乃至常州稀有的湖景资源,一线南向瞰湖,完全处于湖岸线上!
星河澜月湾规划了6栋百米建筑,其中一栋为约197米的超高层建筑万丽酒店,直插云霄。如今,一线临湖的建筑+“度假地标”万丽酒店,这将是赏湖看景的绝佳位置。
而且常州能坐拥湖景的楼盘并不多,何况所有的户型都可以看到湖景,星河澜月湾称得上是主城区少见的湖居产品。
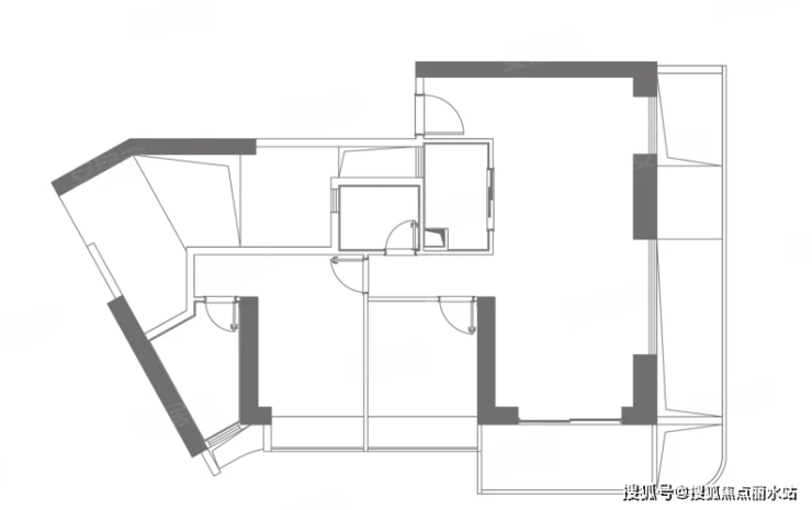
目前,星河澜月湾在售户型建面约53-130㎡产品,均是一线临湖,可以直观的看到太湖景色。
我们以建面约130㎡户型为例:

该户型为四房朝南户型,餐客厅一体,两面临海,带来开阔的景观体验;
2卧设计,270度转角阳台,大限度增加采光,湖光春色尽收眼底;
主卧套房设计,并带有独立卫生间+飘窗,闲暇时坐在飘窗上吹吹风,看看湖景,非常舒适。
总体来看,星河·澜月湾沿湖而建,可近距离观赏湖景,八种户型购房者的选择更多。
丨项目实景图
“久在樊笼里,复得返自然。”
当代“陶渊明们”渴望的是山水与城市繁华更加自在的兼得。
对于居住在星河澜月湾的城市精英来说,便满足了所有人对星沙生活的想象。
星河·澜月湾拥有52公里的湖岸线,推窗观澜,同时, 两面环湖,湖水成为天然屏障,将澜月湾与外界隔离,繁华静谧之间,藏城市湖岸,更入人生佳境。
🌈星河澜月湾售楼处电话☎️400-8787-098转接8999(营销中心)
🌈星河澜月湾营销中心电话:☎️400-8787-098转8999【营销中心】
🌈温馨提示:拨打400电话,听到嘀声后,输入分机号8999即可
声明:本文由入驻焦点开放平台的作者撰写,除焦点官方账号外,观点仅代表作者本人,不代表焦点立场。
