武汉中交澄园售楼处电话/地址【中交澄园】中交澄园首页网站/中交澄园楼盘详情/价格/户型/售楼处24小时电话
扫描到手机,新闻随时看
扫一扫,用手机看文章
更加方便分享给朋友
✨中交澄园售楼处电话📞:400-6520-118转接7777【已认证】✨
✨中交澄园营销中心电话📞:400-6520-118转接7777【已认证】✨
✨中交澄园展示中心电话📞:400-6520-118转接7777【已认证】✨
◆开发商营销中心诚挚邀请,一键预约,尊享内部独家折扣!匠心独运的精品项目,恭候您的品鉴与选择。
✅ 本项目暂不接受临时到访,过来参观样板房请记得提前来电预约!
✅ 为您安排楼盘现场销售全程接待并讲解,给您更贴心的看房体验!
基本信息
楼盘价格: 参考均价 21000 元/㎡
物业类型: 住宅
价格有效期:2023-10-10 - 2024-10-04
区域板块: 青山区 青山
产权年限: 普通住宅产权为70年
项目特色: 小户型 改善好房
开发商: 武汉锦绣雅和置业有限公司
楼盘地址: 工业一路与随州街交汇处

小区规划
绿化率: 30%
容积率: 2.76
占地面积: 44239
建筑面积: 176227
总户数: 1032户
车位比: 1:1.5
车位: 1562
销售信息
销售状态: 在售
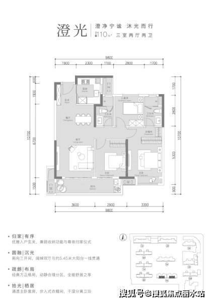
楼盘户型:9种户型,建面:84-151㎡ 3室2厅2卫 (建面:142)
装修情况: 毛坯
交房时间: 交房时间 2025年3月31日
开盘时间: 2022年12月1日已推出
售楼处地址: 湖北省武汉市青山区工业一路与随州街交汇处(南干渠游园以南)
户型图
✨武汉青山———中交澄园✨
✨中交澄园售楼处电话📞:400-6520-118转接7777【已认证】✨
✨中交澄园营销中心电话📞:400-6520-118转接7777【已认证】✨
✨中交澄园展示中心电话📞:400-6520-118转接7777【已认证】✨
◆开发商营销中心诚挚邀请,一键预约,尊享内部独家折扣!匠心独运的精品项目,恭候您的品鉴与选择。
声明:本文由入驻焦点开放平台的作者撰写,除焦点官方账号外,观点仅代表作者本人,不代表焦点立场。
