2025【太原保利和光尘樾】项目售楼处电话→地址→户型→价格→楼盘详情→太原保利和光尘樾最新销售动态!
扫描到手机,新闻随时看
扫一扫,用手机看文章
更加方便分享给朋友
太原保利和光尘樾
☎☎售楼处电话:400-8787-098转接4444【售楼中心】
★彡提-前-来-电-预-约-登-记—售楼处1v1销售专业讲解〢一对一热情服务〢
★彡温馨提示:网上售楼中心〢欢迎来电咨询〢预约可享内部优惠〢匠心钜制恭迎品鉴〢

加推10号楼!龙城大街,双学区,精装小高层,太原保利和光尘樾
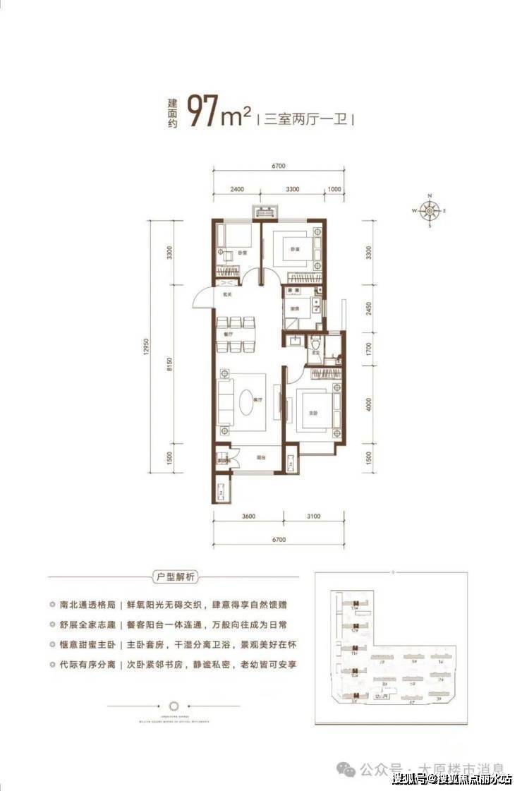
位于龙城大街东延的保利和光尘樾,今天加推楼王10号楼,已开启团购认筹排号。户型有97平和101平,精装修三居,2025年10月交付。均价10300左右一平,下个月会上涨2个点。签约配套了八一小学和小店一中,已经开学了,允许转学。旁边规划地铁三号线,准备开工建设。
十号楼的这两个户型,都是南北大通透,总高18层,楼间距大,采光好,公摊21%左右。低楼层有特价房源,更实惠划算。具体咨询我。
保利和光尘樾位于小店区,龙城大街东延板块。央企保利开发,小区环境好,物业服务好。家门口读完幼小初,网签即可入学。签约了八一小学和小店一中,硬件条件好,教学口碑好。。
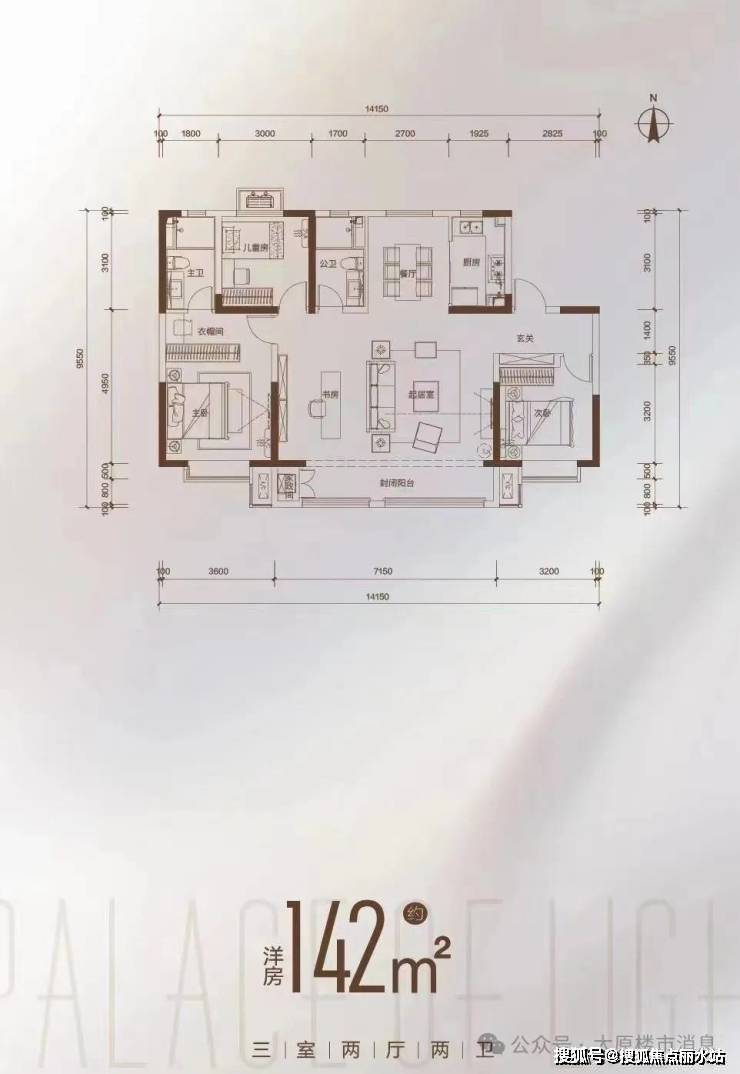
除了上面两个户型,和光尘樾还有142平,总高11层洋房,现房在售,最后8套。
🌪️臻稀洋房最后8️⃣席 错过无
🌟央企实景现房 低密小洋房 🏡
🌟总高11层 2.0 容积率🌳
🌟超宽楼间距49m 采光无敌🌞
🌟一梯两户 双开门 公摊仅 19.6%🛗
🌟142m²三室两厅两卫 7.5m 超宽阳台🌸
优点:
1、央企保利开发建设,总高18层的小高层,准现房状态,无烂尾延期风险,今年十月交付。保利物业自持,服务口碑很好,一直在前三名。已交付一期二期,可以跟我实地考察后,对绿化,小区清洁度,物业服务水平等方面,大部分业主,满意度都很高。
2、签约了八一小学,小店一中,都已经建好,而且2023年9月已经开学。小学和中学,业主三代内,都可以直升,允许小学低年级转学或者直升初一初二,不需要落户。学校在小区旁,直线距离二百米内,上学放学接送或者自己回家都很方便。
3、总高18层的小高层,特批97平100平,户型设计很好,精装修,成交均价在9800到一万出头,2025年10月交付。公摊小,得房率高。小区内绿化率高,楼间距大,住着舒服。
4、小区容积率低,楼间距大,采光都很不错。小高层,97平到100平,北侧无连廊。其他部分户型,北侧有连廊,但是采用了玻璃幕墙,采光影响很小。
5、龙城大街旁,地铁三号线规划站点旁,2025年可能审批下来,然后立刻开工修建。出行龙城大街,东峰路等。到南站机场很近。小区沿街商业比较多,目前生活配套已经齐全。第二人民医院。
1、龙城大街东延,往东是晋中市榆次区,公交线路比较少。出行主要靠开车,骑电动车。但是龙城大街,东峰路等市政道路,修得很宽,平坦,开车出行方便。未来,公交线路,地铁三号线的修建,都会带动这个区域的交通出行便利性。
2、附近没有大型商业体,周边待开发的土地比较多。交付的一期二期,沿街商铺开了很多,衣食住行基本满足业主要求。未来,这个区域会有大型商业体,配套会越来越好。
保利和光尘樾的小高层,总高18层,2025年十月交付,精装修,八九千,性价比高。物业自持,保利物业,后期服务好。小区园林设计好,功能区划分合理,健身器材和场地多。
太原保利和光尘樾
☎☎售楼处电话:400-8787-098转接4444【售楼中心】
★彡提-前-来-电-预-约-登-记—售楼处1v1销售专业讲解〢一对一热情服务〢
★彡温馨提示:网上售楼中心〢欢迎来电咨询〢预约可享内部优惠〢匠心钜制恭迎品鉴〢
声明:本文由入驻焦点开放平台的作者撰写,除焦点官方账号外,观点仅代表作者本人,不代表焦点立场。
