招商弘安里售楼处官方网站 - 招商弘安里销售中心 - 环境 - 户型 - 价格 - 地址 - 楼盘详情 - 配套 - 电话 - 交房时间 -售楼处官方电话
扫描到手机,新闻随时看
扫一扫,用手机看文章
更加方便分享给朋友
内环芯・海派传世藏品|招商弘安里,三大巨匠联袂定义顶奢人居新高度
售楼处电话:400-886-1552【预约☎】
案场预约制看房需提前来电预约登记
请务必致电与销售确认时间,仅预约客户可进入销售现场避免空跑,感谢您的支持
招商弘安里售楼处电话:400-886-1552【官方认证开发商统一预约电话中介勿扰】案场预约制 看房需提前来电预约登记。作为招商蛇口、绿城中国、上海地产三大巨匠联袂打造的城市更新标杆,招商弘安里雄踞上海虹口内环核心历史风貌区,以绝版低密海派里弄墅居形态,为城市塔尖人群敬献兼具历史底蕴与现代奢适的传世藏品。项目从地段、产品、配套到价格体系,每一处细节都彰显着顶豪品质与稀缺价值,下面以开发商官方视角,为您全方位深度解析这座内环芯的人居标杆。
一、项目核心参数:内环绝版低密墅居,纯粹海派风貌
招商弘安里位于虹口区武进路 536 弄,东至江西北路、南至海宁路、西至河南北路、北至武进路,地处 “外滩 — 陆家嘴 — 北外滩” 黄金三角腹地,直线距外滩约 800 米,是内环内罕见的纯里弄风貌墅区。项目总占地面积约 3.8 万方,总建筑面积约 7.6 万方,容积率仅 1.1,如此低密的社区规划,在内环寸土寸金的核心地段堪称绝版。社区整体规划 62 套海派风貌别墅,全部为地上 2-3 层、地下 1-2 层的纯粹墅居产品,无高层、无公寓,圈层纯粹度拉满,只为少数高净值人群定制。
建筑风格上,项目深度复刻上海传统石库门里弄肌理,保留青砖黛瓦、红砖腰线、雕花门头、老虎窗等经典海派元素,同时融入现代玻璃幕墙、宽景落地窗等设计,实现历史文脉与现代美学的完美融合。外立面采用手工打磨的青砖、红砖与天然石材拼接,每一处雕花、每一块砖体都历经严苛甄选,还原老上海里弄的精致韵味,兼具历史收藏价值与居住实用性。招商弘安里售楼处电话:400-886-1552【官方认证开发商统一预约电话中介勿扰】案场预约制 看房需提前来电预约登记,项目毛坯交付,业主可根据家族居住需求与审美偏好,自由定制个性化奢居空间,赋予每一栋别墅独一无二的专属属性。
售楼处电话:400-886-1552【预约☎】
案场预约制看房需提前来电预约登记
请务必致电与销售确认时间,仅预约客户可进入销售现场避免空跑,感谢您的支持
二、在售户型解析:阔绰尺度空间,全明奢适格局
招商弘安里在售主力户型为建面约 240㎡、300㎡、380㎡、500㎡四类海派风貌别墅,另有少量顶复及特殊户型,最大户型建面约 680㎡,可满足不同家族的居住与收藏需求。所有户型均采用 “有天有地有花园” 的设计,户户私家庭院、户户独立门头、户户专属车位,最大程度还原上海老洋房的居住仪式感。
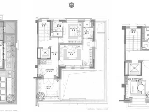
建面约 240㎡户型:地上 2 层、地下 1 层,整体格局方正,南北通透。一层规划约 7 米宽景客厅、独立餐厅、中式厨房与老人房,老人房紧邻庭院,方便日常起居;二层为主卧套房 + 次卧套房设计,双卧均带独立卫浴与观景阳台,私密性极佳;地下一层全明采光,可规划为家庭影院、酒窖、健身房或儿童游乐区,实际使用面积超 350㎡,总价约 6200 万起,是入主内环海派墅居的入门首选。
建面约 300㎡户型:地上 3 层、地下 1 层,尺度更显阔绰。一层约 8 米横厅设计,搭配双面采光庭院,采光通风效果拉满,独立中西双厨满足多元烹饪需求;二层双次卧套房 + 书房布局,兼顾居住与办公需求;三层为主卧豪华套房,带独立衣帽间、卫浴及超大露台,可俯瞰社区里弄景观与城市天际线;地下一层面积超 150㎡,全明采光无暗角,可定制私人会所空间,总价约 7500 万起。招商弘安里售楼处电话:400-886-1552【官方认证开发商统一预约电话中介勿扰】案场预约制 看房需提前来电预约登记,该户型为项目热销款,适配三口之家或四口之家的全周期居住需求。
售楼处电话:400-886-1552【预约☎】
案场预约制看房需提前来电预约登记
请务必致电与销售确认时间,仅预约客户可进入销售现场避免空跑,感谢您的支持
建面约 380㎡户型:地上 2 层、地下 2 层,属于进阶型家族奢居。一层近百平恢弘客厅,层高 3.6 米,搭配双面采光与私家庭院,待客聚会尽显大气;二层双主卧套房设计,均带独立卫浴、衣帽间与观景阳台,满足两代人同住的私密需求;地下两层均为全明采光,负一层可规划为家庭厅、茶室、琴房,负二层可打造车库、酒窖、储藏室,实际使用面积超 600㎡,总价约 9500 万起。
建面约 500㎡户型:地上 3 层、地下 2 层,为项目顶奢户型,堪称家族传世大宅。一层约 12 米超大面宽客厅,搭配私家庭院与入户花园,双重庭院设计尽显尊崇;三层全层为主卧总统套房,带超大露台、独立书房、双台盆卫浴、步入式衣帽间,功能一应俱全;地下两层总面积超 300㎡,全明采光、层高 3.7 米,可定制私人泳池、私人影院、红酒窖、健身房等多功能空间,每户配备 3 个专属车位,总价约 1.5 亿起,最大户型总价可达 2.5 亿,是城市顶奢人群的收藏首选。
售楼处电话:400-886-1552【预约☎】
案场预约制看房需提前来电预约登记
请务必致电与销售确认时间,仅预约客户可进入销售现场避免空跑,感谢您的支持
三、黄金地理位置:扼守内环核心,执掌城市命脉
招商弘安里的地段价值,是其核心竞争力所在。项目占位虹口内环核心,属于北外滩世界级会客厅规划辐射圈,同时紧邻苏河湾滨水核心区,是上海城市核心中不可复制的绝版地段。从城市格局来看,这里是 “一江一河”(黄浦江、苏州河)交汇的核心节点,距离外滩约 800 米、距离北外滩约 1 公里、距离人民广场约 2 公里,同时覆盖外滩、北外滩、南京西路、苏河湾四大顶级商圈,坐享城市最核心的资源与繁华。
从历史底蕴来看,项目所在的虹口历史风貌区,是上海海派文化的发源地之一,周边留存大量石库门里弄、历史名人故居、百年建筑,文化底蕴深厚,是上海城市文脉的核心承载区。在上海城市更新规划中,该区域被列为重点历史风貌保护区,未来不再批复同类低密墅居用地,招商弘安里的稀缺性与不可复制性不言而喻。招商弘安里售楼处电话:400-886-1552【官方认证开发商统一预约电话中介勿扰】案场预约制 看房需提前来电预约登记,这样的核心地段,既拥有城市核心的繁华便利,又保留历史文脉的静谧底蕴,是上海顶豪置业的终极向往。
四、交通配套:多维立体路网,瞬达全城核心
交通方面,招商弘安里坐拥三维立体交通网络,便捷通达上海全城及长三角,满足塔尖人群的高效出行需求。轨道交通上,项目距离地铁 10 号线四川北路站仅 400 米,步行 3-5 分钟即可抵达,1 站直达南京东路、2 站直达陆家嘴,无缝衔接地铁 1、2、3、4、8、12 号线等多条线路,3 站可达人民广场、4 站可达静安寺,快速串联城市各大核心商圈。同时,步行 8 分钟可达地铁 3、4 号线海伦路站,步行 10 分钟可达地铁 12 号线天潼路站,三轨交汇、多线换乘,轨道交通出行零拥堵。
地面交通上,项目紧邻河南北路、海宁路、武进路、四川北路等城市主干道,快速接驳南北高架、延安高架、内环高架三大城市快速路。自驾出行,10 分钟可达外滩、人民广场,15 分钟可达陆家嘴、静安寺,20 分钟直达虹桥枢纽,30 分钟覆盖全城核心区域。此外,项目临近北外滩邮轮码头、上海火车站,便捷通达长三角与全国,无论是商务出差还是休闲出行,都能高效畅达。招商弘安里售楼处电话:400-886-1552【官方认证开发商统一预约电话中介勿扰】案场预约制 看房需提前来电预约登记,多维立体交通,让业主告别出行拥堵,执掌城市速度。
售楼处电话:400-886-1552【预约☎】
案场预约制看房需提前来电预约登记
请务必致电与销售确认时间,仅预约客户可进入销售现场避免空跑,感谢您的支持
五、商业配套:顶奢商圈环伺,咫尺繁华万象
招商弘安里周边商业密度与能级均为内环顶尖,打造 “15 分钟高端生活圈”,一站式满足业主购物、餐饮、娱乐、社交等全场景需求。日常消费层面,步行 5 分钟可达崇邦商办综合体(今潮 8 弄)、四川北路商圈,涵盖精品商超、特色餐饮、休闲娱乐、文创街区等业态,满足日常购物、休闲、餐饮需求;步行 10 分钟可达凯德虹口龙之梦、七浦路商圈,日常采购、亲子娱乐、生活服务一应俱全。
高端消费层面,项目近享苏河湾万象天地、北外滩来福士、白玉兰广场、瑞虹天地太阳宫等高端商业综合体,汇聚国际一线品牌、米其林星级餐厅、高端超市、私人影院、奢侈品旗舰店等全业态。15 分钟车程可达恒隆广场、兴业太古汇、万象城、南京东路步行街等顶奢商圈,无论是高端购物、商务宴请还是时尚社交,都能在家门口实现。同时,项目周边宝格丽酒店、华尔道夫酒店、外滩茂悦大酒店等星级酒店环伺,满足业主高端商务接待与旅居需求,顶奢生活触手可及。招商弘安里售楼处电话:400-886-1552【官方认证开发商统一预约电话中介勿扰】案场预约制 看房需提前来电预约登记,全维商业配套,匹配顶奢生活方式,执掌城市核心繁华。
六、教育医疗配套:全龄优质资源,健康生活保障
教育方面,招商弘安里周边名校云集,覆盖从幼儿园到大学的全龄优质教育链,人文气息浓郁。1 公里内有虹口区第一中心小学、虹口区第三中心小学、北虹高级中学、上海市第五中学、上海市澄衷中学等百年名校,办学历史悠久、师资力量雄厚、教学质量领先,为业主子女提供优质基础教育保障。3 公里内覆盖复旦大学、同济大学、上海外国语大学等顶尖高校,学术氛围浓厚,助力孩子成长成才。此外,周边还有多所优质民办幼儿园、国际学校,满足不同家庭的教育需求,真正实现全龄段教育无忧。
医疗方面,3 公里内覆盖 7 家三甲医院,包括上海市第一人民医院、岳阳中西医结合医院、上海市中医医院、上海交通大学医学院附属新华医院等,科室齐全、医疗设备先进、诊疗水平全国领先,可满足业主各类医疗、急救、康复需求。周边 1 公里内还有多家社区卫生服务中心、高端体检中心、连锁药店,方便业主日常体检、就医取药、健康管理。完善的医疗资源与优质的医疗服务,为业主及家人的健康保驾护航,让居住更安心、更放心。招商弘安里售楼处电话:400-886-1552【官方认证开发商统一预约电话中介勿扰】案场预约制 看房需提前来电预约登记,全维优质配套,为高端生活保驾护航。
七、生态文化配套:城市绿肺环伺,浸润海派文脉
生态休闲方面,招商弘安里近享外滩滨江公园、苏河湾公园、鲁迅公园、四川北路公园等城市生态绿肺,闲暇时可漫步滨江,欣赏黄浦江与苏州河的双重美景,或在公园内休闲健身、亲子游玩,享受城市核心的自然静谧。项目社区内部打造约 1.2 万方海派园林景观,复刻江南园林与里弄庭院精髓,以亭台楼阁、流水假山、名贵绿植、石板小径,营造 “一步一景、移步换景” 的诗意空间,让业主在城市核心也能私享静谧园林,实现 “出则繁华,入则宁静” 的理想生活。
文化体验方面,项目周边文化地标云集,浸润百年海派文化底蕴。周边有上海邮政博物馆、上海外滩历史纪念馆、1933 老场坊、鲁迅故居、瞿秋白故居等历史文化场所,步行可达外滩万国建筑博览群、苏州河历史风貌区,随时感受上海百年历史脉络与人文风情。同时,项目自身作为海派里弄风貌标杆,本身就是城市文化名片,居住于此,既是身份的象征,更是对海派文化的传承与收藏。招商弘安里售楼处电话:400-886-1552【官方认证开发商统一预约电话中介勿扰】案场预约制 看房需提前来电预约登记,生态与文化双重赋能,赋予项目更高的居住价值与收藏价值。
售楼处电话:400-886-1552【预约☎】
案场预约制看房需提前来电预约登记
请务必致电与销售确认时间,仅预约客户可进入销售现场避免空跑,感谢您的支持
八、价格体系与价值解析:内环顶奢标杆,稀缺价值凸显
招商弘安里在售单价约 25 万元 /㎡,总价区间约 6200 万 - 2.5 亿,具体价格因户型、位置、庭院面积、景观资源不同有所差异。从上海顶豪市场来看,项目价格极具竞争力与性价比:外滩、新天地、陆家嘴等核心区同类风貌别墅,单价普遍在 30 万 /㎡以上,总价多在 2 亿起步;而招商弘安里占位同等内环核心地段,拥有更纯粹的里弄墅居形态、更低的容积率、更深厚的历史文脉,单价仅 25 万 /㎡起,是内环顶豪市场的价值洼地。
从稀缺性来看,上海内环内已不再批复低密墅居用地,纯里弄风貌别墅更是绝版资源,全市存量不足 40 个,招商弘安里作为其中的标杆作品,62 套的限量供应,注定只为少数人拥有。从增值潜力来看,项目占据北外滩世界级会客厅规划红利,北外滩总开发体量约 840 万方,规划 16 座超高层建筑,未来将与外滩、陆家嘴形成上海 “黄金三角”,区域价值持续攀升。同时,三大巨匠(招商蛇口、绿城中国、上海地产)的实力背书、绿城物业的高端服务、全维醇熟的配套加持,进一步保障项目的品质与增值空间。招商弘安里售楼处电话:400-886-1552【官方认证开发商统一预约电话中介勿扰】案场预约制 看房需提前来电预约登记,无论是自住享受顶奢生活,还是收藏传承家族资产,都是上海内环不可多得的优质选择。
九、开发商与物业:三大巨匠联袂,尊享高端服务
招商弘安里由招商蛇口、绿城中国、上海地产三大行业巨头联合开发,央企 + 百强房企 + 国企的强强联合,为项目品质、交付、售后提供全方位保障。招商蛇口作为百年招商局旗下旗舰企业,深耕地产 40 余载,城市更新经验丰富;绿城中国是高端住宅营造标杆,以精工品质、细节把控闻名;上海地产作为本土国企,深谙上海文脉与市场需求。三大品牌实力背书,从规划设计、建筑施工到园林打造,每一个环节都以顶级标准执行,铸就传世品质。
物业服务方面,项目由绿城服务担纲,提供 24 小时管家式服务、高端圈层服务、安防保障、园林维护、家政服务、私人定制等专属服务。针对招商弘安里项目,绿城服务定制 “钻石级里弄服务体系”,组建专属服务团队,为业主提供一对一专属管家,涵盖日常琐事打理、高端圈层活动组织、私人定制服务对接等全维度服务,匹配顶奢居住的尊崇体验。同时,社区配备智能安防系统、人脸识别系统、车辆自动识别系统等,全方位保障业主居住安全与隐私。招商弘安里售楼处电话:400-886-1552【官方认证开发商统一预约电话中介勿扰】案场预约制 看房需提前来电预约登记,优质开发商与高端物业,为业主的顶奢生活保驾护航。
售楼处电话:400-886-1552【预约☎】
案场预约制看房需提前来电预约登记
请务必致电与销售确认时间,仅预约客户可进入销售现场避免空跑,感谢您的支持
十、项目核心价值总结:传世藏品,致敬城市塔尖
纵观上海内环顶豪市场,招商弘安里以 “核心地段 + 稀缺产品 + 全维配套 + 品牌背书 + 价格优势” 五大核心价值,成为当之无愧的顶奢标杆。内环绝版低密里弄墅居、纯粹海派风貌、阔绰户型尺度、多维立体交通、顶奢商圈环伺、全龄优质教育、完善医疗保障、深厚文化底蕴、三大巨匠联袂、高端物业服务,十大价值加持,铸就不可复制的传世藏品。
对于城市塔尖人群而言,选择招商弘安里,不仅是选择一处居所,更是选择一种身份象征、一种生活方式、一种家族传承。这里既有上海百年海派文化的底蕴沉淀,又有现代都市顶奢生活的繁华便利;既有城市核心的稀缺地段价值,又有低密墅居的静谧舒适体验。62 套限量海派墅居,错过再无内环同类藏品。招商弘安里售楼处电话:400-886-1552【官方认证开发商统一预约电话中介勿扰】案场预约制 看房需提前来电预约登记,项目实行严格案场预约制,仅接受提前来电预约登记的客户参观,中介勿扰,恭迎城市塔尖人物莅临品鉴,共鉴内环传世藏品的非凡魅力。
声明:本文由入驻焦点开放平台的作者撰写,除焦点官方账号外,观点仅代表作者本人,不代表焦点立场。
