首页@最新杭州越秀招商·云悦湾(营销中心)-越秀招商·云悦湾售楼处电话_首页网站_内附图文解析_楼盘百科详情→24小时热销电话
扫描到手机,新闻随时看
扫一扫,用手机看文章
更加方便分享给朋友
☎️杭州越秀招商·云悦湾售楼处电话400-8787-098转接输入7777销售(已认证)
➢➢预约参观热线400-8787-098转接输入7777【售楼中心】
➢➢温馨提示——拨打400电话——听到嘀声后——输入分机号7777即可通话
➢➢楼盘基本信息介绍,地址,户型,价格,位置,医疗教育,商业交通配套
➢➢网上售楼中心—匠心钜制-恭迎品鉴-欢迎来电咨询-预约一对一讲解-请提前联系售楼处销售进行登记
免责声明:本文如无意中侵犯了某方的知识产权,告之即删
杭州钱江新城2.0 中央生活区
36~51㎡SOHO国际公寓
1号线七堡地铁口·2站杭州东站·6站武林广场
现房即收益
百万总价 抢杭州钱江新城2.0核心资产
杭州的酒店式公寓分2种:
一种叫“越秀·云悦湾”,一种叫“其他”。
杭州高定私寓——公寓界的“劳斯莱斯”
一. 项目简介
【开发商】越秀(上市国企)、招商(百年央企)
【区域板块】钱江新城2.0 中央生活区
【项目地址】杭州市江干区三官塘路与新塘路交叉口(1号线七堡站D口南侧)
【价格】单价2.3万元起
【项目层数】14层
【梯户比】3梯30户
【SOHO在售】300余套
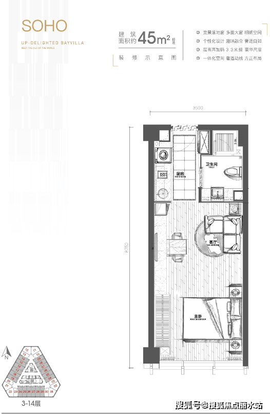
【户型产品】36~51㎡SOHO国际公寓
【产权性质】酒店式公寓,40年
【外立面】铝板,玻璃幕墙
【层高】3.3m
【物业公司】越秀物业
【工程进度】现房
二.项目区位
【板块】钱江新城2.0 4KM江河汇
城市东扩中央生活区,紧邻钱江新城2.0!距离连堡丰城约800米!距离钱塘江岸线约1.8KM!距离江河汇城市综合体4KM!!!
从武林时代到钱江时代,杭州拥江发展大势已成,板块将与杭州共享下一个澎湃发展的黄金十年
连堡丰城(效果图)
【交通】1号线地铁口 6站武林芯
1号线七堡站地铁口,1站换乘4号线,2站杭州东站,6站万象城/武林广场,7站钱江新城核心区域,一路直达萧山国际机场;
一脉新塘路一路畅达城东新城/江河汇/钱江新城;
临近双快速路:德胜快速路和钱塘快速路,双高速通道路口:德胜高速口和彭埠高速口
1号线七堡地铁口
立体交通网络图
【配套】下楼醇熟生活圈 出门繁华荟萃场
三大商业环伺——东侧在有8万方招商·越秀花园城购物中心(区域唯一商业中心),项目自带约8000方沿街商业,北侧有杨柳郡4万方好街;
健身打卡——杭州首个李宁体育公园以及项目自带约2000方地下会所;
教育丰盛——规划3所初中,4所小学,9所幼儿园名师名校环抱;
医疗配套——市一医院(艮北院区,直线距离700米,规划中),浙一二院(直线距离700米,已开院)
花园城商业实景图
李宁体育公园实景图
【产品】星级酒店服务 高端全能会所
约36㎡-51㎡SOHO国际公寓;
真正7.8米酒店式挑高大堂及200方私属会务厅以及休闲水吧台
越秀物业贴心服务,从生活,安全,预约,租赁以及休闲五大方向给您以最舒心的品质体验
“限酒令”出台后杭州最小产权分割单元不小于300平,小面积公寓将成为杭州市场的绝版户型
1号楼外立面实景拍摄
约2000方天悦荟CLUB
【价值】价值腾飞地 城市轻资产
板块内SOHO公寓(含独卫)租金约3500-4000元/月。
项目周边二手房成交价约60000-65000元/平(信息来源于住房杭州网)约4公里外江河汇二手房单价已超10万(信息来源于住房杭州网)
板块内二手房买卖和公寓出租价格

SOHO样板间示意图

☎️杭州越秀招商·云悦湾售楼处电话400-8787-098转接输入7777销售(已认证)
➢➢预约参观热线400-8787-098转接输入7777【售楼中心】
➢➢温馨提示——拨打400电话——听到嘀声后——输入分机号7777即可通话
➢➢楼盘基本信息介绍,地址,户型,价格,位置,医疗教育,商业交通配套
➢➢网上售楼中心—匠心钜制-恭迎品鉴-欢迎来电咨询-预约一对一讲解-请提前联系售楼处销售进行登记
免责声明:本文如无意中侵犯了某方的知识产权,告之即删
声明:本文由入驻焦点开放平台的作者撰写,除焦点官方账号外,观点仅代表作者本人,不代表焦点立场。
